Flat for sale 3+1 • 90 m² without real estateSchützenstr. 79, , Rhineland-Palatinate
Owner-occupied use starting from December 1, 2025; a well-maintained condominium on the first floor in a three-unit house with one garage and 2–3 car parking spaces, plus a building plot on the rear property.
Basement, ground floor, and partly the first floor (bathroom/hall/room renovated; upper floor with connection for a fireplace [2 flue ducts available]); windows with double glazing and sectional electric garage doors; new technical conduits in the basement and ground floor; various high-quality floor coverings (tiles/parquet); built-in wardrobe; heating provided by new Daikin dual heat pumps (2022); fenced; driveway with car parking possibilities for 2–3 spaces; no backlog of renovations! Only minor repair costs upon occupancy. Exclusive use of the enclosed rear garden area (access via a side path or through the garage).
When purchasing the apartment and the left-side garage, the fixed price is €240,000.
According to an appraisal, the apartment is valued at €270,000 (i.e. €3,000 per sqm) and the garage at €30,000 (electric sectional door €4,000). Therefore, financing between 80% and 100% is possible.
The house is located in the heart of 53474 Bad Neuenahr – Ahrweiler, in the third row of houses away from the Ahr river. All shops in the center of Ahrweiler are quickly accessible.
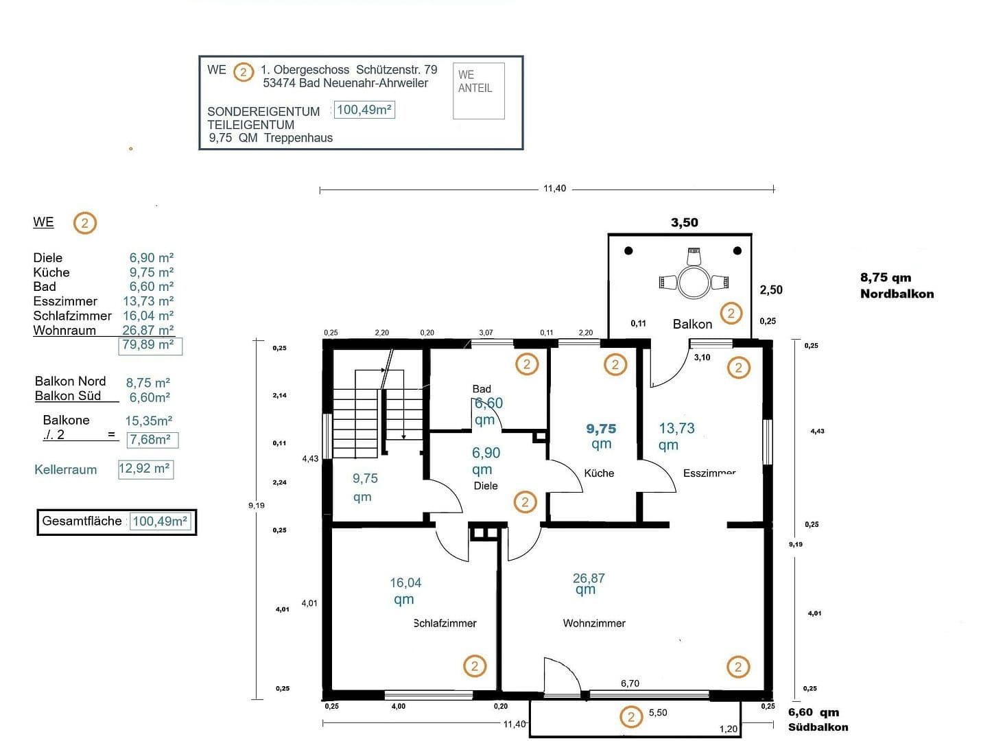
Apartment on the first floor with two balconies (facing south and north), vacant from November 30, 2025.
Parquet flooring (refinishable/able to be resealed), tiled floor/tiled wall, wood-paneled walls, built-in wardrobe/bedroom.
The garage is available immediately. Parking spaces will be set up on the property prior to sale.
Property characteristics
| Age | Over 5050 years | 
|---|---|
| Layout | 3+1 | 
| Listing ID | 960093 | 
| Usable area | 90 m² | 
| Condition | Good | 
|---|---|
| Floor | 1. floor out of 3 | 
| EPC | B - Very economical | 
| Price per unit | €2,433 / m2 | 
What does this listing have to offer?
| Balcony | |
| Garage | |
| MHD 5 minutes on foot | 
| Basement | |
| Parking | 
What you will find nearby
Still looking for the right one?
Set up a watchdog. You will receive a summary of your customized offers 1 time a day by email. With the Premium profile, you have 5 watchdogs at your fingertips and when something comes up, they notify you immediately.



















