
Office to rent • 75 m² without real estateLilienthalstraße 3d, , Brandenburg
We are looking for a new tenant for our well-maintained office unit with a total usable area of approximately 75 m² in Schönefeld-Waltersdorf, an attractive commercial location with a low business tax rate located south of Berlin. This space is ideal for companies looking to optimize costs. The unit can be taken over on short notice and is available for long-term use.
The premises are suitable for small companies, start-ups, service providers, or freelancers who value good accessibility and a business-friendly environment.
The property is located in the Waltersdorf commercial area (municipality of Schönefeld) – a dynamic economic location with excellent transport connections:
+ Direct proximity to the A113 / A117 and the Berliner Ring (A10)
+ Only a few minutes from BER Airport
+ Good accessibility from Berlin’s city center
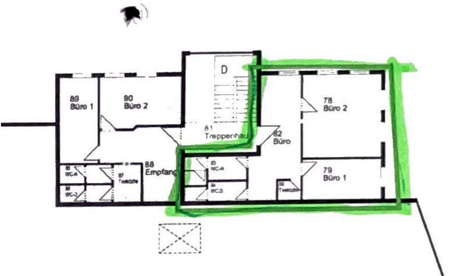
Layout:
+ 2 bright offices with flexible usage options
+ 1 common room
+ Kitchenette (tea kitchen)
+ 2 separate toilets
Features:
+ Well-maintained, functional condition
+ Air conditioning in the office and common room
+ Low-maintenance carpet flooring
+ Fiber-optic connection available
+ Large windows with sun protection
+ Ample power outlets and lighting
Car parking spaces are available in front of the building and can also be leased on a permanent basis upon request.
If you are interested, please feel free to contact us!
Imprint:
Vasto GmbH
Lilienthalstraße 3d
12529 Schönefeld
Property characteristics
| Floor | Ground floor |
|---|---|
| Land office | 75 m² |
| Listing ID | 960052 |
|---|---|
| Price per unit | €13 / m2 |
What does this listing have to offer?
| Parking |
| MHD 3 minutes on foot |
What you will find nearby
Still looking for the right one?
Set up a watchdog. You will receive a summary of your customized offers 1 time a day by email. With the Premium profile, you have 5 watchdogs at your fingertips and when something comes up, they notify you immediately.









