
Office to rent • 180 m² without real estateDettingerstr.1, , Baden-Württemberg
Dettingerstr.1, , Baden-WürttembergPublic transport 1 minute of walking • Lift • ParkingThe rental space is located on the first upper floor and can be accessed via the staircase or elevator. The rooms are bright due to the large number of windows and are suitable for offices, practices, training rooms, insurance companies, etc.
Downtown Kirchheim, Dettingerstr.1, access via Alleenstr. 54, first upper floor.
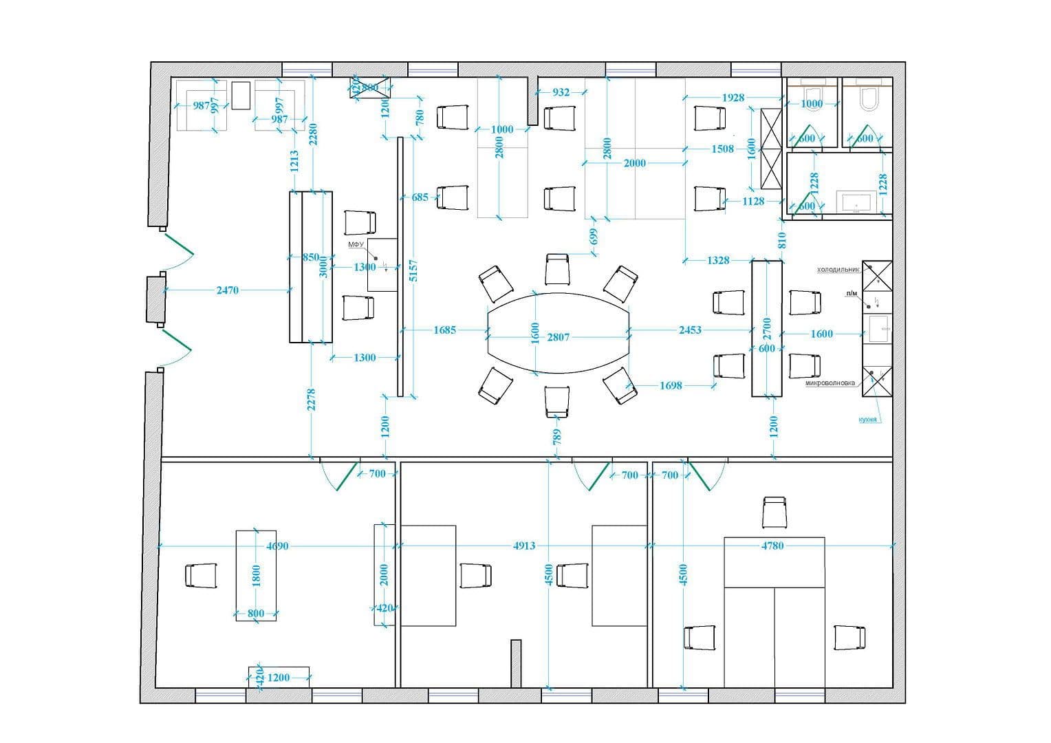
The property is in a partially finished condition; therefore, completion according to individual preferences is possible. The rental area of 180 sqm (blue on the floor plan) is expandable to 230 sqm (outlined in red).
Parking options:
We can offer 2-3 parking spaces (55€ net per parking space per month) for hire approximately 300 meters away.
Rental price for the office/practice area:
€9-11 per sqm depending on finishing preferences/owner’s contribution to finishing and lease duration.
Property characteristics
| Floor | 1. floor |
|---|---|
| Land office | 180 m² |
| Listing ID | 959828 |
|---|---|
| Price per unit | €10 / m2 |
What does this listing have to offer?
| Lift | |
| MHD 1 minute on foot |
| Parking |
What you will find nearby
Still looking for the right one?
Set up a watchdog. You will receive a summary of your customized offers 1 time a day by email. With the Premium profile, you have 5 watchdogs at your fingertips and when something comes up, they notify you immediately.






