
House to rent 6+kk • 160 m² without real estate, Bavaria
, BavariaPublic transport 3 minutes of walking • Parking • GarageVery beautiful single-family home with generous space!
On the ground floor, you enter through the front door into a large hallway with an open staircase leading to the upper floor. To the left is the cloakroom, and behind it a shower bathroom with a toilet and sink. Also to the left of the entrance is the kitchen, which features a door to the dining area and an opening to the very large living room with access to the south terrace. A west terrace is located at the rear, facing the garden. To the right of the hallway is the study.
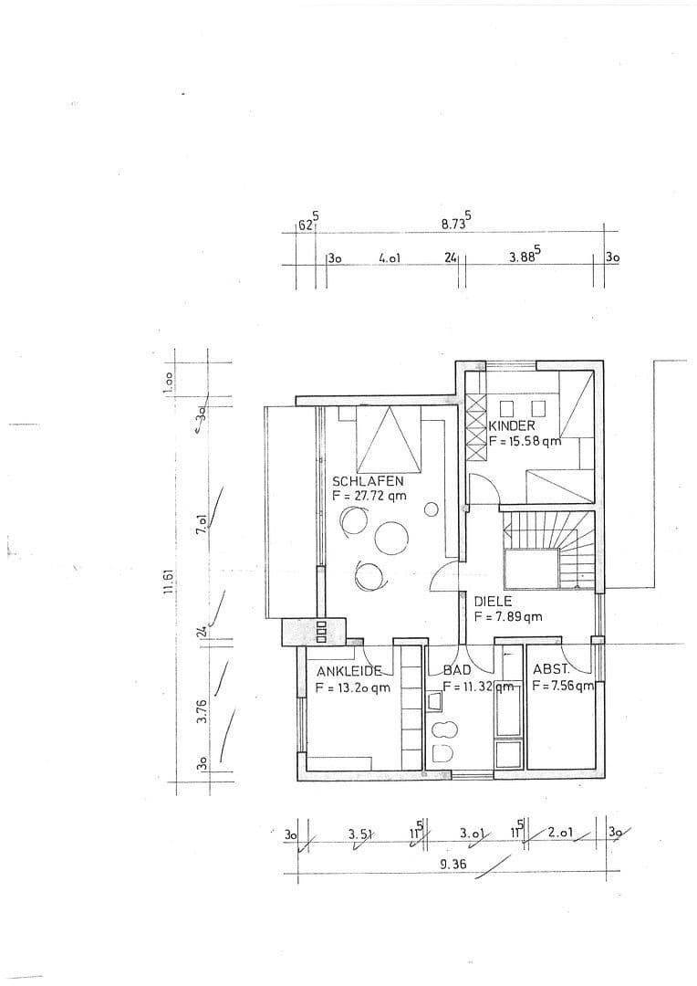
On the upper floor is the spacious master bedroom with an adjoining dressing room and access to the bathroom. The balcony is also accessible from the bedroom. The bathroom is very large, equipped with two sinks, a bathtub, and a toilet – all very well maintained. There is also a children’s room as well as a small (half) room on the upper floor.
In the basement, in addition to a large hobby room, there are two further cellar rooms, a laundry room, the boiler room, and another large hallway.
The double garage with an adjacent utility room offers an incredible amount of space! The utility room features daylight and access to the garden.
Lorenzen is a district of Lappersdorf – very nicely located.
The property is not situated at the end of the through road.
The shopping centers are still within walking distance, as is the bus stop.
The house has been renovated in recent months and is very well maintained.
The attic has been insulated, and the heating has been renewed (gas).
The floors have also been replaced (vinyl JOKA design floors and marble) and all the walls have been freshly painted.
The fireplace has been decommissioned – the electrical element has already been installed – providing warmth and light!
For non-smokers – no pets!
Rental via the Jobcenter is not desired.
Property characteristics
| Age | Over 5050 years |
|---|---|
| Layout | 6+kk |
| EPC | G - Extremely uneconomical |
| Land space | 766 m² |
| Price per unit | €12 / m2 |
| Condition | After reconstruction |
|---|---|
| Listing ID | 959796 |
| Usable area | 160 m² |
| Total floors | 2 |
What does this listing have to offer?
| Basement | |
| Parking | |
| Terrace |
| Garage | |
| MHD 3 minutes on foot |
What you will find nearby
Still looking for the right one?
Set up a watchdog. You will receive a summary of your customized offers 1 time a day by email. With the Premium profile, you have 5 watchdogs at your fingertips and when something comes up, they notify you immediately.





















