
Flat to rent 3+1 • 82 m² without real estate, Brandenburg
, BrandenburgPublic transport 2 minutes of walking • ParkingHere is the English translation:
This attractive property is a two-family house located in a quiet residential area directly on Trainierbahn, with one apartment on the ground floor and one on the upper floor. A garden is available to both rental parties and is accordingly divided. The ground floor apartment features a terrace.
The house has been built according to the latest energy standards and is equipped with underfloor heating (air-water heat pump as well as a PV system), electric roller shutters, and burglar-resistant, lockable windows. A wallbox can be installed upon request.
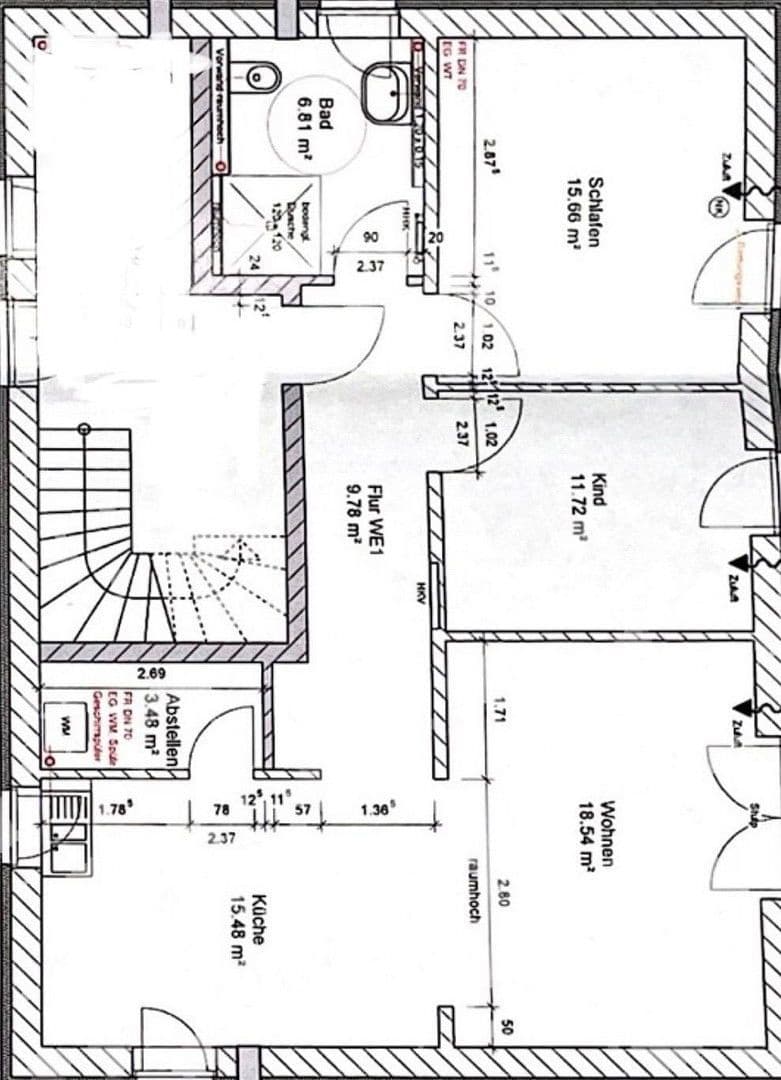
The apartment offers an open-plan living and dining area with a modern fitted kitchen and all the necessary appliances, as well as an adjacent storage/pantry room. A high-quality shower room with a window, along with a child's room and a bedroom, provide ample space for one or several residents. In addition, all rooms feature high-quality flooring (tiles with a wood look), LAN sockets in every room for flexible use, such as a home office setup, and lockable windows. A lockable shed completes the offering by providing additional storage space.
Hoppegarten is located in Brandenburg, right behind the Berlin city border, which offers a good combination of quiet living and proximity to Berlin.
The house is situated on a private street in a cul-de-sac directly on the Trainierbahn and is in a quiet residential area with a detached house character. A nature reserve borders the area. In the immediate vicinity, there is a restaurant, a veterinarian, and a plant market. Bus line 942 runs not far from the property. The Hoppegarten S-Bahn station can be reached by bicycle in 10 minutes. From there, you can take the S-Bahn to Alexanderplatz in 37 minutes or to the Ostkreuz S-Bahn station in 25 minutes.
The connection to the A10 motorway can be reached in about 10 minutes.
The Tesla factory is approximately a 20-minute drive away.
In addition, two supermarkets, a medical center, several hairdressers, kindergartens, as well as primary and secondary schools are located nearby.
Property characteristics
| Age | Over 5050 years |
|---|---|
| Condition | New-build |
| Listing ID | 959754 |
| Usable area | 82 m² |
| Available from | 29/10/2025 |
|---|---|
| Layout | 3+1 |
| EPC | A - Extremely economical |
| Price per unit | €23 / m2 |
What does this listing have to offer?
| Parking | |
| Terrace |
| MHD 2 minutes on foot |
What you will find nearby
Still looking for the right one?
Set up a watchdog. You will receive a summary of your customized offers 1 time a day by email. With the Premium profile, you have 5 watchdogs at your fingertips and when something comes up, they notify you immediately.











