House for sale 7+1 • 144 m² without real estateVogelherdstr. 15c, , Bavaria
Vogelherdstr. 15c, , BavariaPublic transport 3 minutes of walking • GarageThis vacant, solid end-terrace house offers approximately 144 m² of living area, versatile usage options, and is ideally suited for investors looking to rent it out or craftsmen with a vision.
Property Details:
- Condition: Vacant, in need of renovation
- Construction: Solid construction
- Year Built: 1965
- Ideal for a couple or family
Ground Floor: Entrance area, guest WC, kitchen, and living room with terrace
1st Floor: 3 bedrooms and a bathroom
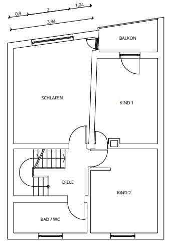
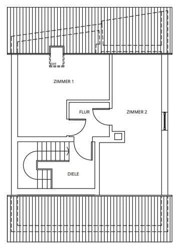
2nd Floor: 2 bedrooms
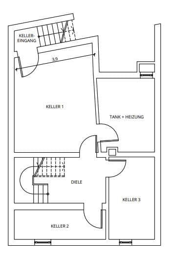
Basement: Various cellar rooms and a utility room
The building clearly requires refurbishment and renovation:
- Plumbing installations
- Interior finishing (floors, walls, ceilings)
This property is a true diamond in the rough for buyers with handyman skills or investors. With plenty of space, solid construction, and an attractive plot, it offers excellent potential for a profitable renovation and versatile usage – whether for personal use or rental.
The house is available immediately.
It is heated by an oil-fired central heating system.
The energy certificate is currently being prepared.
The sale is private and thus commission-free.
Broker inquiries are expressly not desired and will not be answered.
Property characteristics
| Age | Over 5050 years | 
|---|---|
| Condition | Very good | 
| Listing ID | 959738 | 
| Land space | 270 m² | 
| Price per unit | €2,424 / m2 | 
| Available from | 31/10/2025 | 
|---|---|
| Layout | 7+1 | 
| Usable area | 144 m² | 
| Total floors | 4 | 
What does this listing have to offer?
| Balcony | |
| Garage | |
| Terrace | 
| Basement | |
| MHD 3 minutes on foot | 
What you will find nearby
Still looking for the right one?
Set up a watchdog. You will receive a summary of your customized offers 1 time a day by email. With the Premium profile, you have 5 watchdogs at your fingertips and when something comes up, they notify you immediately.






























