
Flat for sale 2 bedroom • 51 m² without real estateM. D. Rettigové, Hradec Králové - Hradec Králové, Královéhradecký Region
Nabízím k prodeji světlý a útulný byt 2+1 o celkové ploše 51,6 m², který se nachází v panelovém domě v širším centru Hradce Králové. Dům prošel rekonstrukcí – má plastová okna a je zateplen.
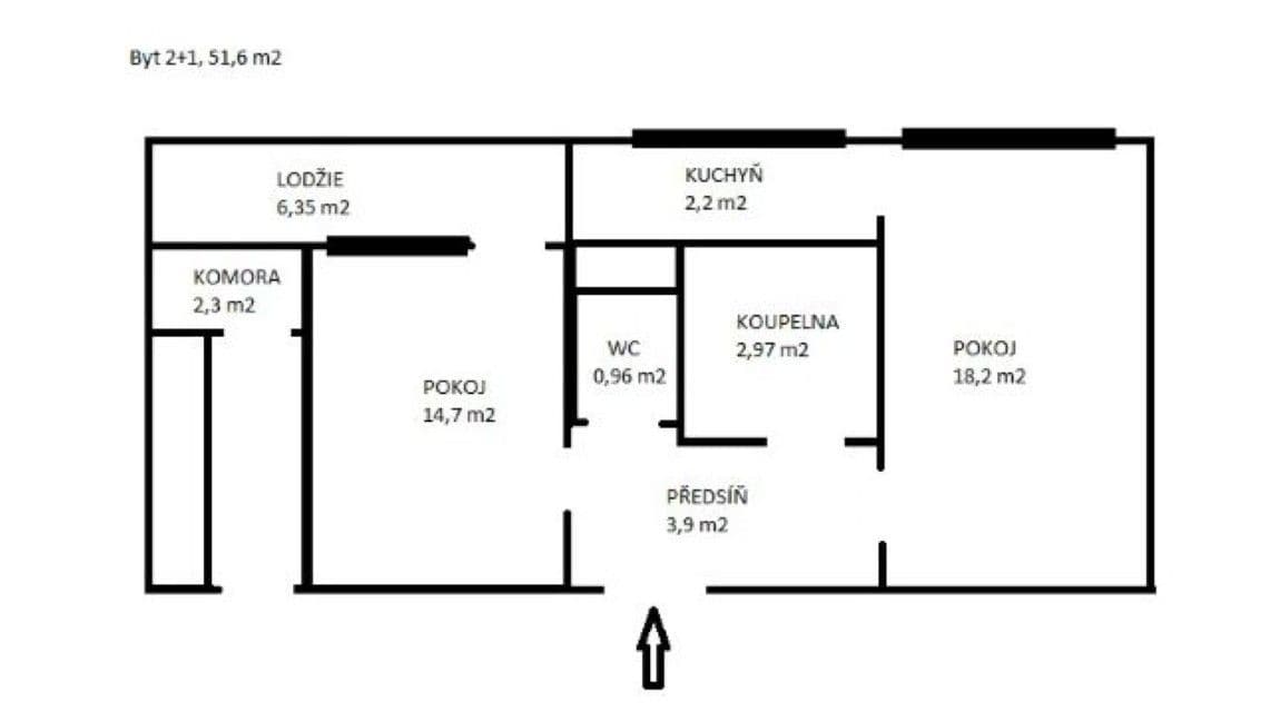
Byt je umístěn ve 4. patře (5. nadzemní podlaží) sedmipatrového domu s výtahem, který zajišťuje pohodlný přístup. V roce 2016 proběhla částečná rekonstrukce (koupelnové jádro, kuchyň). Dispozici tvoří prostorný obývací pokoj, kuchyň, ložnice, koupelna a samostatné WC. K bytu patří zasklená lodžie (6,3 m²) a sklep/komora (2 m²) umístěná v těsné blízkosti bytu.
Mezi hlavní přednosti patří osobní vlastnictví, které zaručuje přímý a transparentní prodej. Byt je pronajímán spolehlivým nájemníkům, kteří se o něj vzorně starají a platí vždy včas. Kupující tak může byt převzít s jistým měsíčním výnosem bez nutnosti hledat nové nájemníky. Nájemní smlouva je uzavřena do listopadu 2026, kopii rád poskytnu k nahlédnutí.
Po dohodě s nájemníky je možné řešit i předání bytu k vlastnímu užívání – jsou vstřícní a otevření dohodě.
Lokalita nabízí rychlé spojení do centra města a zároveň příjemné prostředí pro procházky podél vody, které dávají místu klidný a vyvážený charakter.
Pro více informací a domluvení prohlídky mne kontaktujte prostřednictvím zpráv.
I am offering for sale a bright and cozy 2+1 apartment with a total area of 51.6 m², located in a panel building in the broader center of Hradec Králové. The building has been renovated – it features plastic windows and is insulated.
The apartment is situated on the 4th floor (5th above-ground floor) of a seven-story building with an elevator, ensuring convenient access. A partial renovation took place in 2016 (bathroom core, kitchen). The layout comprises a spacious living room, kitchen, bedroom, bathroom, and a separate WC. The apartment also includes a glazed loggia (6.3 m²) and a cellar/storage room (2 m²) located in close proximity.
One of the main advantages is that it is privately owned, ensuring a direct and transparent sale. The apartment is rented to reliable tenants who take excellent care of it and always pay on time, meaning the buyer can take it over with a guaranteed monthly income without the need to find new tenants. The lease is valid until November 2026, and I am happy to provide a copy for review.
By agreement with the tenants, it is also possible to consider handing over the apartment for personal use – they are cooperative and open to such negotiations.
The location offers quick connections to the city center as well as a pleasant environment for walks along the water, giving the area a calm and balanced character.
For more information and to arrange a viewing, please contact me via messages
Property characteristics
| Available from | 28/10/2025 |
|---|---|
| Building construction | Precast concrete |
| Fully furnished | Partly |
| Listing ID | 959617 |
| EPC | G - Extremely uneconomical |
| Usable area | 51 m² |
| Condition | After reconstruction |
|---|---|
| Layout | 2 bedroom |
| Floor | 5. floor out of 8 |
| Ownership | Personal |
| Location | Busy area |
| Price per unit | CZK 84,314 / m2 |
Are you choosing a apartment?
Make sure you have all the important information!
What does this listing have to offer?
| Basement: 2 m² | |
| Loggia balcony: 6.3 m² |
| Lift |
What you will find nearby
Still looking for the right one?
Set up a watchdog. You will receive a summary of your customized offers 1 time a day by email. With the Premium profile, you have 5 watchdogs at your fingertips and when something comes up, they notify you immediately.

















