
Flat to rent 4+kk • 139 m² without real estateBečovská, Prague - Uhříněves
Interested?
Communicate all private owners and save CZK 24,000 on commissions.
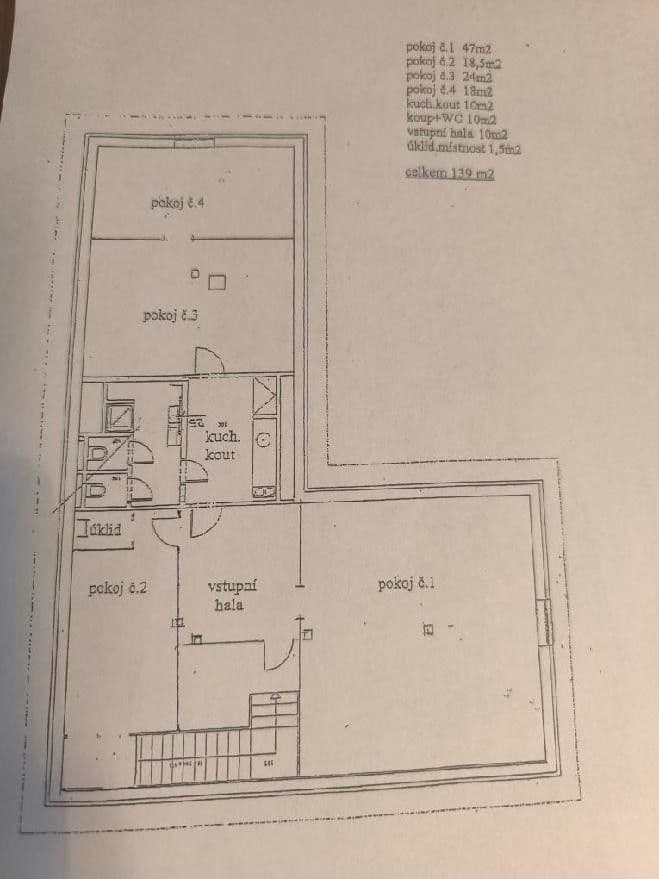
Nabízím k dlouhodobému pronájmu prostorný podkrovní byt 4+kk nacházející se ve druhém podlaží cihlové budovy se dvěma podlažími. 32 000,- za vše včetně včetně el.energie. V 1.podlaží se nachází obchod otevřený přes den. Budova se nachází na samostatném oploceném pozemku cca 1000m2. Byt o celkové rozloze 139 m² je částečně vybavený, je zde kuchyňská linka, myčka na nádobí, sporák, 2x WC, 2X umyvadlo, sprchový kout. Vytápění radiátory (elektrokotel, cena za el.energii již zahrnuta v nájemném), vodu ohřívá bojler. K bytu jsou k dispozici 2 parkovací stání před objektem na zpevněném povrchu. Byt nemá sklep, balkon ani lodžii.
Spojení MHD cca 5 min.pěšky na bus jedoucí na metro C Háje,
cca 10 min.pěšky na vlakové nádraží Uhříněves, vlakem 20 min do centra na Praha Hlavní nádraží.
Uhříněves nabízí dobrou občanskou vybavenost zahrnující
školy (ZŠ, MŠ), zdravotnická zařízení, poštu a služebnu Městské policie. Dále je zde základní obchodní infrastruktura s obchody a restauracemi, sportovní a volnočasové aktivity (včetně sportovních center a přírodních ploch), a domov pro seniory.
Cca 300 m od objektu se nachází Lidl.
K nastěhování ihned.
Property characteristics
| Available from | 28/10/2025 |
|---|---|
| Building construction | Brick |
| Fully furnished | Partly |
| Listing ID | 959581 |
| EPC | D - Less economical |
| Usable area | 139 m² |
| Condition | Very good |
|---|---|
| Layout | 4+kk |
| Floor | 2. floor out of 2 |
| Ownership | Personal |
| Location | Suburb |
| Price per unit | CZK 173 / m2 |
What does this listing have to offer?
| Parking |
What you will find nearby
Interested?
Communicate all private owners and save CZK 24,000 on commissions.
Still looking for the right one?
Set up a watchdog. You will receive a summary of your customized offers 1 time a day by email. With the Premium profile, you have 5 watchdogs at your fingertips and when something comes up, they notify you immediately.



















