
Plot for sale • 1016 m² without real estateVlnitá, Jílové u Prahy - Jílové u Prahy, Středočeský Region
Prodej atraktivního stavebního pozemku (1 016 m²) – Radlík, Jílové u Prahy
Nabízím k prodeji atraktivní stavební pozemek o rozloze 1 016 m² v osobním vlastnictví, nacházející se v klidné a žádané lokalitě Radlík – Jílové u Prahy. Pozemek představuje ideální příležitost k výstavbě rodinného domu nebo rekreačního objektu dle Vašich představ.
Díky své poloze, tvaru a rozloze nabízí pozemek dostatek prostoru pro kreativní architektonické řešení. Splňuje veškeré podmínky pro získání stavebního povolení.
Na pozemku dříve stála chata (již odstraněna). Aktuální fotografie zachycují současný stav – zarostlou, ale krásně založenou zahradu se vzrostlými porosty rododendronů, smrků a dvěma velkými ořechy. Na první pohled může působit jako džungle, ale skrývá velký potenciál a půvab staré zahrady.
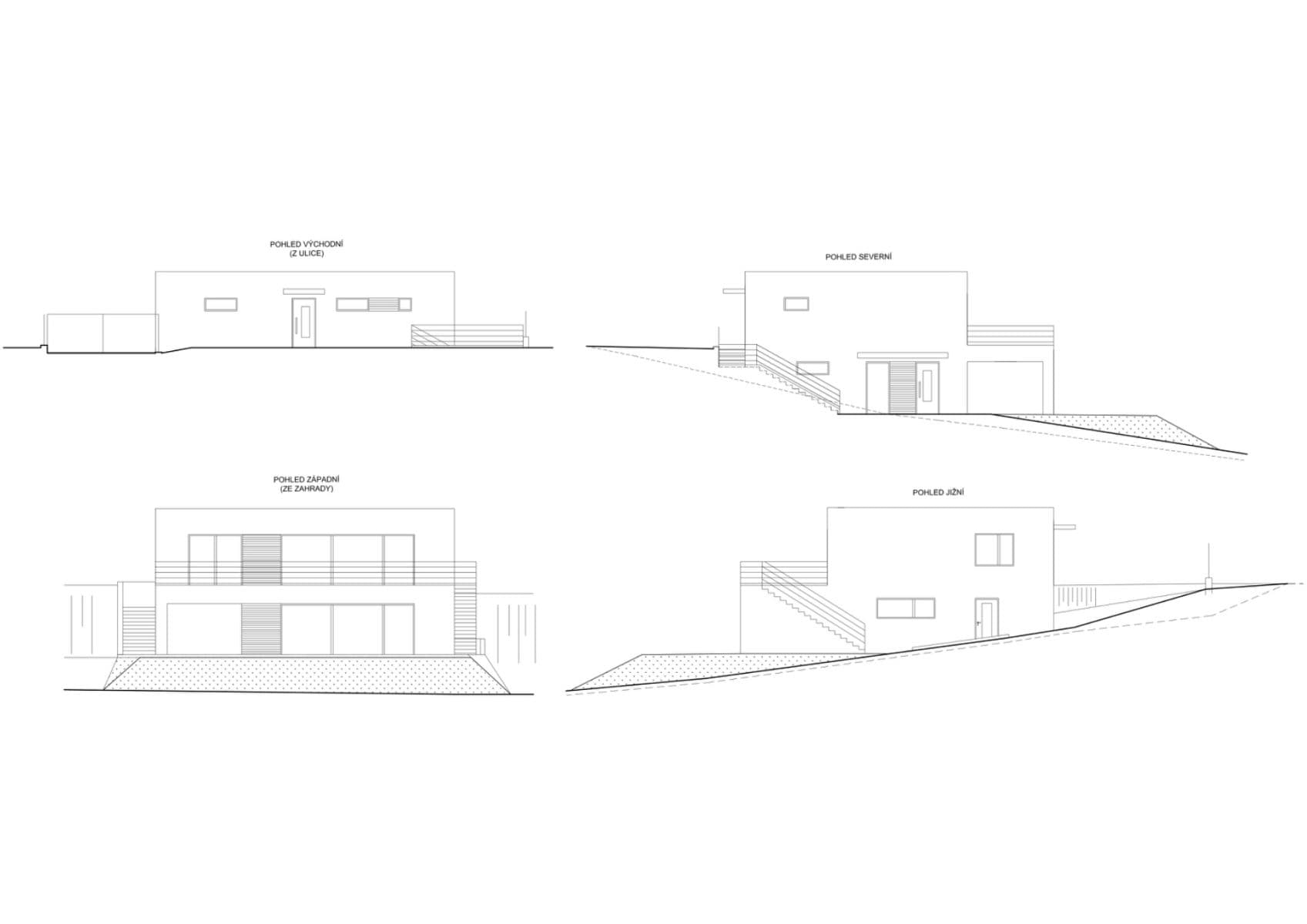
K inzerátu přikládám i náhledy architektonické studie, která ukazuje, jak by mohl být prostor v budoucnu využit.
Pro bližší informace a sjednání prohlídky mě prosím kontaktujte prostřednictvím zpráv na této platformě.
I am offering for sale an attractive building plot measuring 1016 m² in private ownership. The plot is located in a quiet area and represents an ideal opportunity to build a new family home or a recreational property according to your vision.
Thanks to its location and size, the plot offers room for creative planning of a construction project while fully meeting all the conditions for obtaining a building permit. For more information and to arrange a viewing, please contact me via messages on this platform.
The photos include old shots of a cottage that has now been demolished. Additional photos show the current state of an overgrown garden. At first glance, it looks like a jungle, but in reality, it is an old, beautifully landscaped garden with mature rhododendrons, spruces, and two large walnut trees. I am also attaching previews of a study I once commissioned, which gives an idea of what could be built here.
Property characteristics
| Available from | 28/10/2025 |
|---|---|
| Land type | Building |
| Land space | 1,016 m² |
| Listing ID | 959550 |
|---|---|
| Ownership | Personal |
| Price per unit | CZK 8,268 / m2 |
What you will find nearby
Still looking for the right one?
Set up a watchdog. You will receive a summary of your customized offers 1 time a day by email. With the Premium profile, you have 5 watchdogs at your fingertips and when something comes up, they notify you immediately.


















