House for sale • 337 m² without real estateUntergasse 17, , Hesse
Untergasse 17, , HessePublic transport 1 minute of walkingUnique Investment Opportunity with History and a Future
This listed residential building, dating from around 1765, tells a story – while also blending it with modern residential comfort. Between 2015 and 2023, the property was extensively renovated with great care: it was upgraded energetically, modernized technically, and fitted with a new gas central heating system.
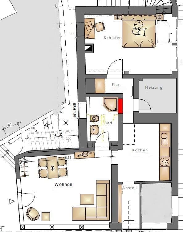
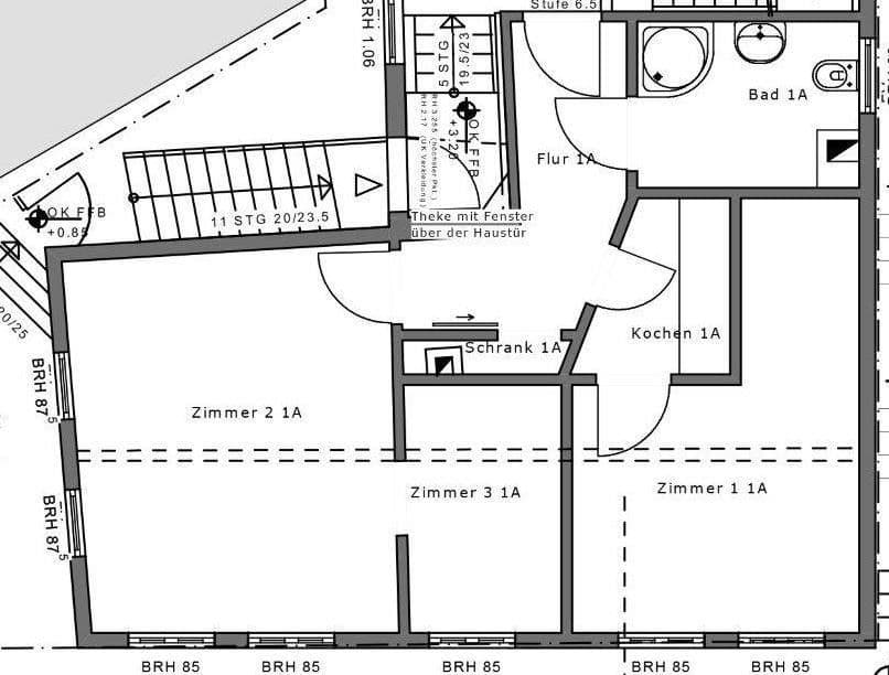
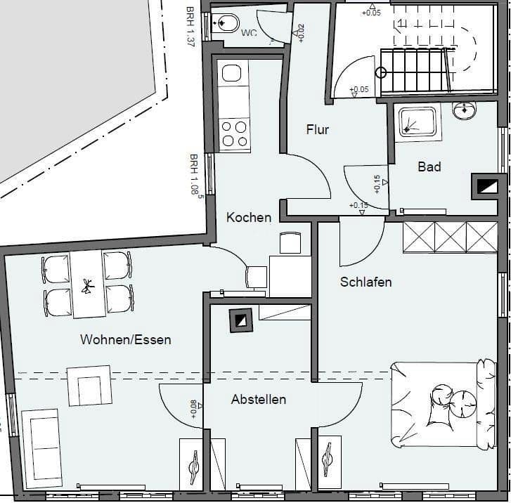
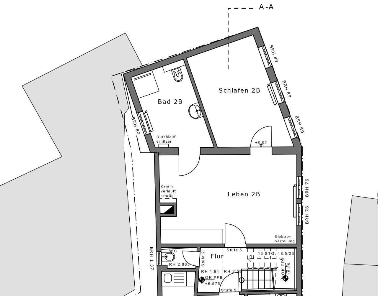
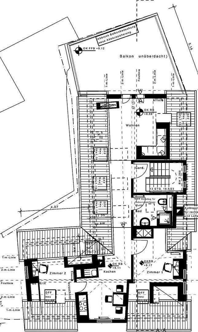
Today, the house comprises 6 residential units. The former commercial space on the ground floor will be transformed into attractive living space by September 2025. Each apartment features 2 to 3 rooms with a kitchen and bathroom; the top-floor apartment additionally delights with an approximately 25 m² rooftop terrace overlooking the old town. Four of the units are already modernized to a high standard, while two others leave room for individual design – an exciting plus for investors thanks to the tax advantages of the listed building depreciation (Denkmal-AfA).
The location couldn’t be better: right in the heart of Marburg’s historic old town, centrally situated and excellently connected. For over ten years, the building has been continuously fully rented – a clear sign of the object’s appeal.
Investing here means not only securing a piece of building history but also a solid return with growth potential, tax advantages, and the unmistakable charm of a unique property.
Property characteristics
| Age | Over 5050 years |
|---|---|
| Condition | After reconstruction |
| Usable area | 337 m² |
| Price per unit | €3,412 / m2 |
| Available from | 29/10/2025 |
|---|---|
| Listing ID | 959450 |
| Land space | 143 m² |
What does this listing have to offer?
| MHD 1 minute on foot |
What you will find nearby
Still looking for the right one?
Set up a watchdog. You will receive a summary of your customized offers 1 time a day by email. With the Premium profile, you have 5 watchdogs at your fingertips and when something comes up, they notify you immediately.














