Flat for sale 3+1 • 62 m² without real estateMauthausnerstraße 30 Enns Enns Oberösterreich 4470
Mauthausnerstraße 30 Enns Enns Oberösterreich 4470Public transport 4 minutes of walkingYour new home right at the castle park in Enns
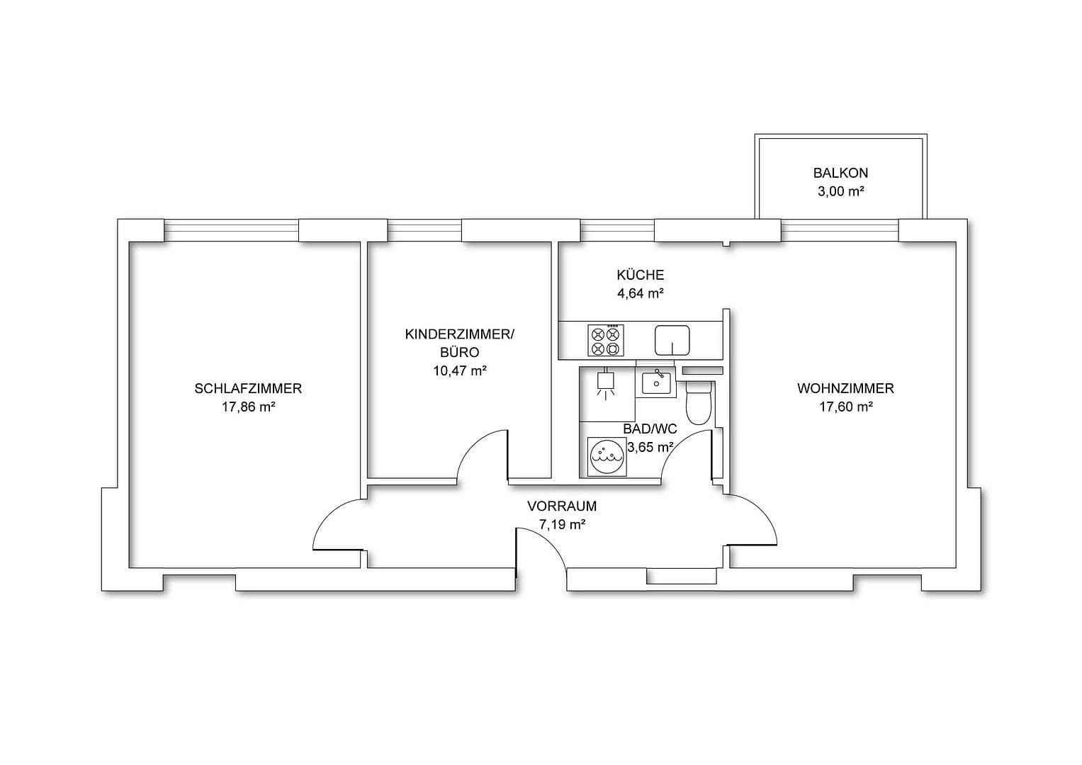
Apartment:
Living area: approx. 62 m² + balcony approx. 3 m²
Rooms: 3 rooms + kitchen, bathroom/WC, hallway
Bathroom: large-format tiles in travertine look, rain shower, wall-hung WC
Floor: 1st floor (upper level)
Condition: modern renovated – first occupancy
Heating: efficient gas heating
Windows: plastic, double glazed
Basement: large private storage unit, bicycle storage with external access
Parking: parking spaces in front of the building
Energy certificate: HWB 53.2 = Class C
Building & Common Areas:
Well-maintained residential complex in very good condition
Renovations on the building are continuously being carried out (no renovation planned)
Common areas: bicycle storage, laundry room, communal garden, playground
This charming 3-room apartment with approx. 62 m² of living space is located in the highly desirable central area of Enns, right at the idyllic castle park at Mauthausnerstraße 30. The combination of urban convenience and green relaxation right at your doorstep is hard to beat in Enns.
Connectivity/Surroundings:
• Enns main square is only a 5-minute walk away
• Local shops, pharmacy, doctors, and restaurants are in the immediate vicinity
• Schools and childcare facilities are also easily accessible
• The popular recreational area along the Ennslände is only a 7-minute walk away – perfect for sports or walks to unwind in nature.
• Excellent train connection, e.g., every 30 minutes direct to Linz Hbf
• Good motorway connection to the A1
Conclusion:
This apartment combines a prime central location directly at the castle park, high-quality renovation, and a bright, modern living ambiance in the heart of Enns. Whether as a new home or as a sustainable investment – here location, quality, and a sense of well-being come together perfectly. The excellent infrastructure makes it an attractive property for young families, couples, professionals, commuters, and investors.
Terms:
Purchase price: €189,000
Operating costs including reserves: €267.83 gross
Reserve funds: approx. €90,000
--
No commission, no broker fee (saving you approx. €6,800)
Interested? Then schedule a viewing appointment today!
0664 / 28 40 786
Info* To help you visualize the spaces, the apartment has been tastefully furnished. Please note that the furniture is not included in the purchase price and will be removed after the sale.
All information is provided without guarantee. Changes, printing errors, and mistakes reserved.
Property characteristics
| Age | Over 5050 years |
|---|---|
| Condition | After reconstruction |
| Floor | 1. floor |
| EPC | C - Economical |
| Price per unit | €3,048 / m2 |
| Available from | 02/11/2025 |
|---|---|
| Layout | 3+1 |
| Listing ID | 959359 |
| Usable area | 62 m² |
What does this listing have to offer?
| Balcony | |
| MHD 4 minutes on foot |
| Basement |
What you will find nearby
Still looking for the right one?
Set up a watchdog. You will receive a summary of your customized offers 1 time a day by email. With the Premium profile, you have 5 watchdogs at your fingertips and when something comes up, they notify you immediately.









