
Office to rent • 43 m² without real estateNový Zlíchov, Prague - Smíchov
Interested?
Communicate all private owners and save CZK 7,980 on commissions.
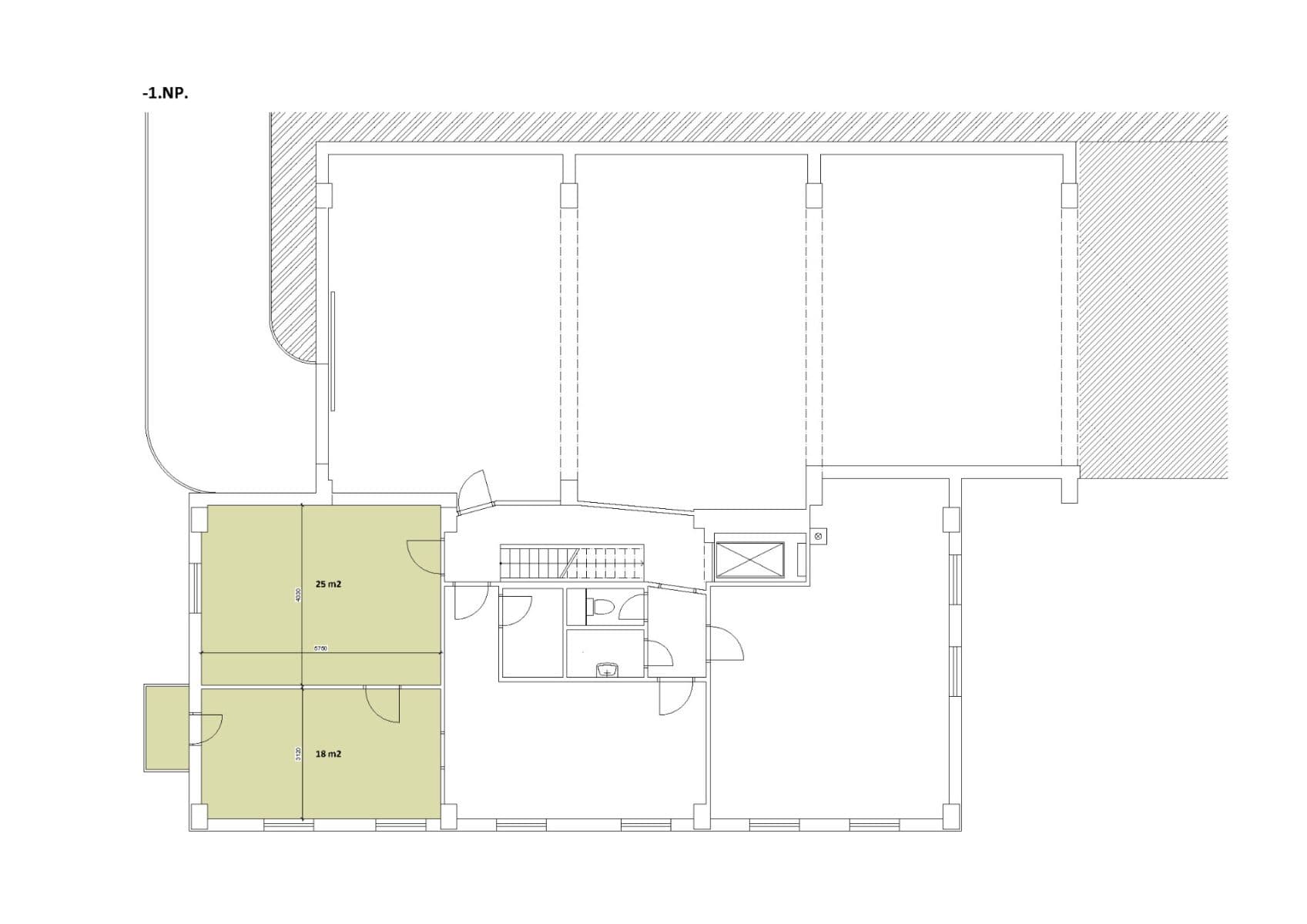
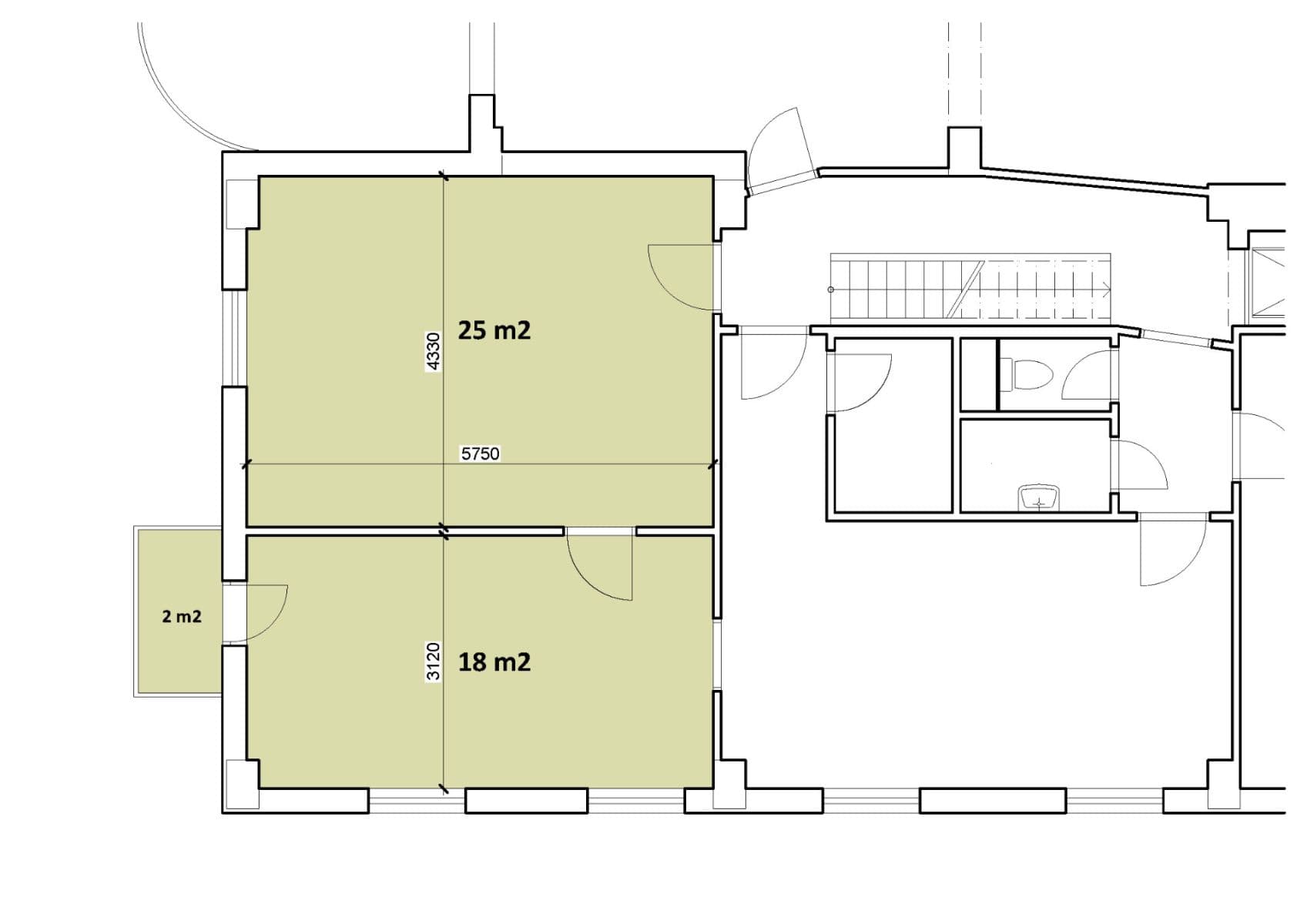
Nabízíme k pronájmu dvojkancelář o rozloze 43 m² (25 m2+18 m2), situovanou v prvním částečném suterénu cihlové budovy, která celkově čítá pět podlaží. Nemovitost je v dobrém stavu a představuje ideální základ pro podnikatelské využití či administrativní činnost. Prostor je nevybavený, což umožňuje přizpůsobit interiér přesně podle Vašich představ a potřeb. Budova disponuje výtahem, který zajišťuje snadnou dostupnost kanceláře a zvýší komfort každodenního provozu.
Před objektem je možnost parkování na ulici. Ulice je neprůjezdná a velice klidná.
Součástí nabídky je také malý balkon o ploše 2 m².
Zájemci mohou kontaktovat majitele prostřednictvím zpráv na komunikační platformě. Těším se na Vaše dotazy a zájem o prohlídku této atraktivní kancelářské nemovitosti.
Property characteristics
| Available from | 27/10/2025 |
|---|---|
| Building construction | Brick |
| Floor | Floors not specified |
| Location | Quiet area |
| Price per unit | CZK 186 / m2 |
| Condition | Good |
|---|---|
| Fully furnished | Unfurnished |
| Listing ID | 959254 |
| Land office | 43 m² |
What does this listing have to offer?
| Balcony: 2 m² | |
| Parking |
| Lift |
What you will find nearby
Interested?
Communicate all private owners and save CZK 7,980 on commissions.
Still looking for the right one?
Set up a watchdog. You will receive a summary of your customized offers 1 time a day by email. With the Premium profile, you have 5 watchdogs at your fingertips and when something comes up, they notify you immediately.







