
House for sale 5+1 • 175 m² without real estate, North Rhine-Westphalia
, North Rhine-WestphaliaPublic transport 2 minutes of walking • ParkingWonderful living in the Siebengebirge Nature Park near the quickly reachable federal city of Bonn – family-friendly and quietly situated – an excellent, attractive residential location – high leisure and recreational value – important infrastructure such as kindergartens, schools, doctors, pharmacies, supermarkets, etc., all within walking distance – with (good) connections to public transport and the motorway network.
In this location stands this free-standing, friendly single-family home, built in 1998 with solid construction, set in a purely residential area. The living and usable area, totaling 270 m², includes 5 rooms (including the converted attic) spread over 4 floors, plus a fully finished basement. The property also features a spacious outdoor area with a terrace and a fully covered, inviting entrance area that is truly unique.
The outdoor area is arranged as follows:
- A slightly elevated entrance area with a separate attic roof.
- A pathway secured by two wooden gates leads around the house to a generously sized terrace.
- A large, uniquely designed terrace with a southwest exposure.
- The terrace is connected to a large lawn, bordered with attractive mixed planting.
- On the entrance side, behind a parking space, there is a covered shelter for bicycles and other equipment, followed by a utility shed.
- The flooring in the entrance area, as well as the pathway around the house, the bicycle parking area, and the terrace, is laid with terracotta-colored concrete slabs.
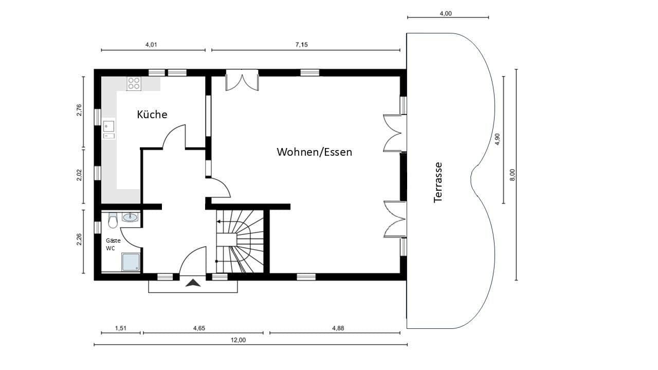
The house is accessed via a spacious entrance area/hall on the ground floor, which impresses with its light-filled open living and dining area, resulting in a bright, friendly atmosphere. The modern kitchen is equipped with a dining area. Also on this floor are a guest WC and a cloakroom.
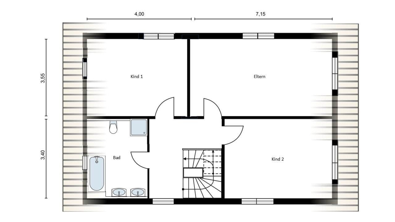
On the upper floor, there are two children’s rooms, a master bedroom, and a bathroom.
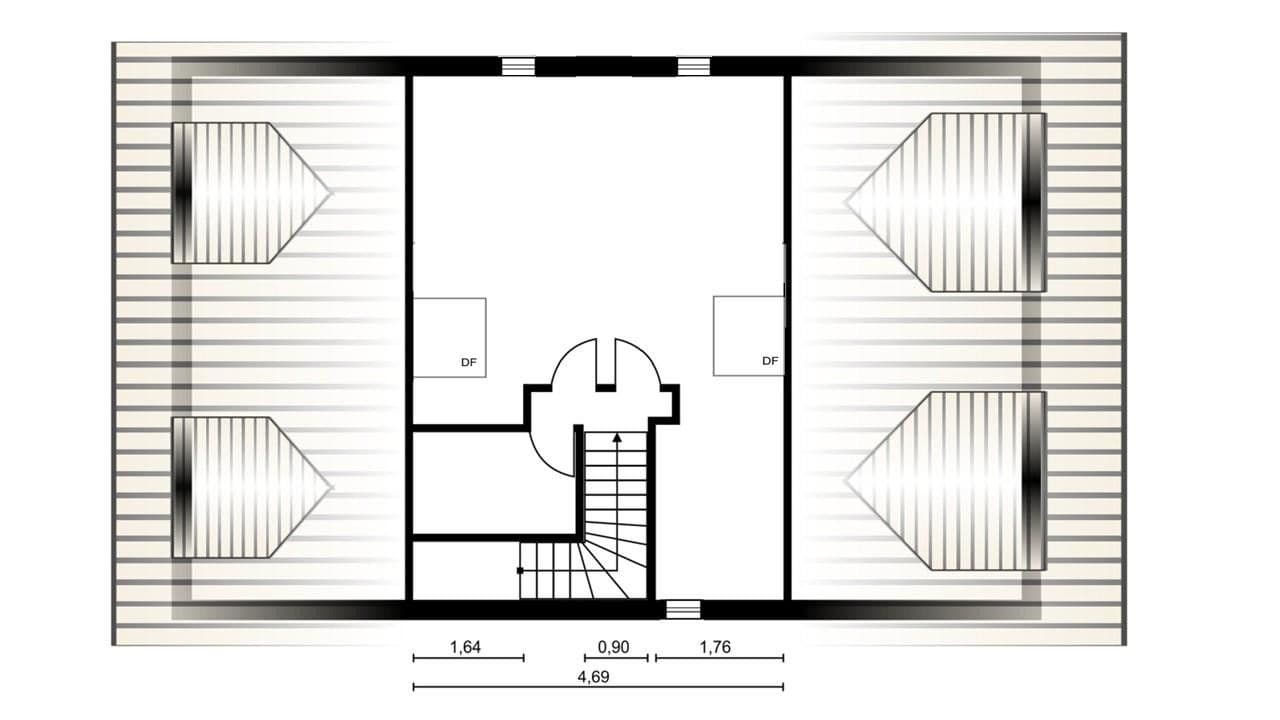
The bright and spacious, finished attic is highlighted by two large built-in Velux roof windows that offer a magnificent view of the surrounding area.
The basement is divided into four rooms: a spacious hobby room, a laundry room, a utility room for building connections, and a small workshop.
This house offers everything a family needs to feel comfortable – in a location that convinces both today and in the future. It is a place where children can grow up and adults can feel at home.
Excellent location at the edge of the Siebengebirge with good public transport connections and high leisure and recreational value.
The Siebengebirge, with its forests, renowned sights, cozy eateries, and recreational facilities, can be explored on foot or by mountain bike via numerous hiking trails.
A dreamy tennis center (outdoor courts and an indoor hall) with views extending to Cologne is reachable on foot in just a few minutes.
Horse paddocks and riding stables are located in the nearby area.
Good infrastructure is available within walking distance in the village – primary school, kindergartens, churches, pharmacies, doctors, dentists, physiotherapy, hairdressers, REWE. Additional shopping facilities for everyday needs (drugstores, discount stores, supermarkets, hardware stores) can be found in the nearby towns of Oberpleis and Dollendorf.
The nearest high school in Oberpleis is accessible by bus in just a few minutes.
Bus stops are easily accessible on foot.
Distance to the nearest motorway ramp (A3 Siebengebirge): 5 km
Distance to motorway ramp A 59 in Oberdollendorf: 6 km
Distance to the nearest train station (Niederdollendorf): 5.5 km
Distance to Bonn city center: 15 km
White wooden entrance door
White wooden interior doors
White wooden windows
Velux roof windows
High-quality fine stone terracotta tiles in the entrance, WC, and kitchen
Solid hardwood parquet in the living room and upper floor
Wooden floorboards in the attic
Fitted kitchen with Miele appliances
High-quality, robust, heat- and scratch-resistant as well as water- and acid-resistant ceramic countertops
A serving hatch to the living/dining area equipped with a large glass window
Guest WC with shower on the ground floor
Bathroom with two washbasins, a bathtub, and a shower on the upper floor
Attic with two solid wood doors and two large Velux roof windows
(including fixed window sections in the lower part) with electric shutters
Energy-efficient gas central heating system with a water storage unit installed in 2013
160-liter hot water storage, renewed in 2025
Built-in shutters on the ground floor
External rolling shutters on the upper floor
Laundry chute in the stairwell from the upper floor to the basement
Small intermediate landing in the staircase providing storage space for suitcases, etc.
For arranging viewing appointments, proof of financing from your bank is required.
Property characteristics
| Age | Over 5050 years | 
|---|---|
| Layout | 5+1 | 
| EPC | B - Very economical | 
| Land space | 512 m² | 
| Price per unit | €4,143 / m2 | 
| Condition | Good | 
|---|---|
| Listing ID | 959160 | 
| Usable area | 175 m² | 
| Total floors | 4 | 
What does this listing have to offer?
| Basement | |
| MHD 2 minutes on foot | 
| Parking | |
| Terrace | 
What you will find nearby
Still looking for the right one?
Set up a watchdog. You will receive a summary of your customized offers 1 time a day by email. With the Premium profile, you have 5 watchdogs at your fingertips and when something comes up, they notify you immediately.




























