
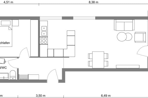
Flat for sale 2 bedroom • 58 m² without real estate, Baden-Württemberg
The beautiful 2-room apartment is located on the 2nd floor of a well-maintained multi-family house.
The apartment has been completely renovated. The hot water is provided by an oil central heating system.
Included with the apartment is a cellar room in the basement.
Energy
Energy consumption certificate
Energy rating: 119 kWh/(sqm*a)
Energy efficiency: Class D
Heating: Central heating with oil
Year of construction according to the energy certificate: 1973
All daily necessities stores are plentifully available within a radius of no more than one kilometer. Among these, for example, is a supermarket located about 190 meters away. Families with children can look forward to a well-accessible education and childcare offer. The nearest playground, kindergarten, and primary school are only about a 5-minute walk away.
Property condition: normal
Quality of equipment: Standard
With balcony
Fitted kitchen available
Private parking space
Bicycle storage room
Laundry room
Property characteristics
| Age | Over 5050 years |
|---|---|
| Condition | After reconstruction |
| Floor | 2. floor out of 4 |
| Usable area | 58 m² |
| Available from | 27/10/2025 |
|---|---|
| Layout | 2 bedroom |
| Listing ID | 959146 |
| Price per unit | €3,431 / m2 |
What does this listing have to offer?
| Balcony | |
| Parking |
| Basement | |
| MHD 3 minutes on foot |
What you will find nearby
Still looking for the right one?
Set up a watchdog. You will receive a summary of your customized offers 1 time a day by email. With the Premium profile, you have 5 watchdogs at your fingertips and when something comes up, they notify you immediately.
















