Flat for sale 3+1 • 71 m² without real estateLeipzig Südvorstadt Sachsen 04275
This charming, move-in ready 3-room apartment in a quiet back building combines modern living comfort with a pleasantly relaxed atmosphere – perfect for anyone looking to live both centrally and in a calm environment. The apartment was comprehensively modernized in 2021 and is in very good condition. All rooms are bright and feature windows, ensuring a friendly, open living atmosphere. The cork flooring is not only warm and comfortable underfoot but also emphasizes the nature-inspired living feel.
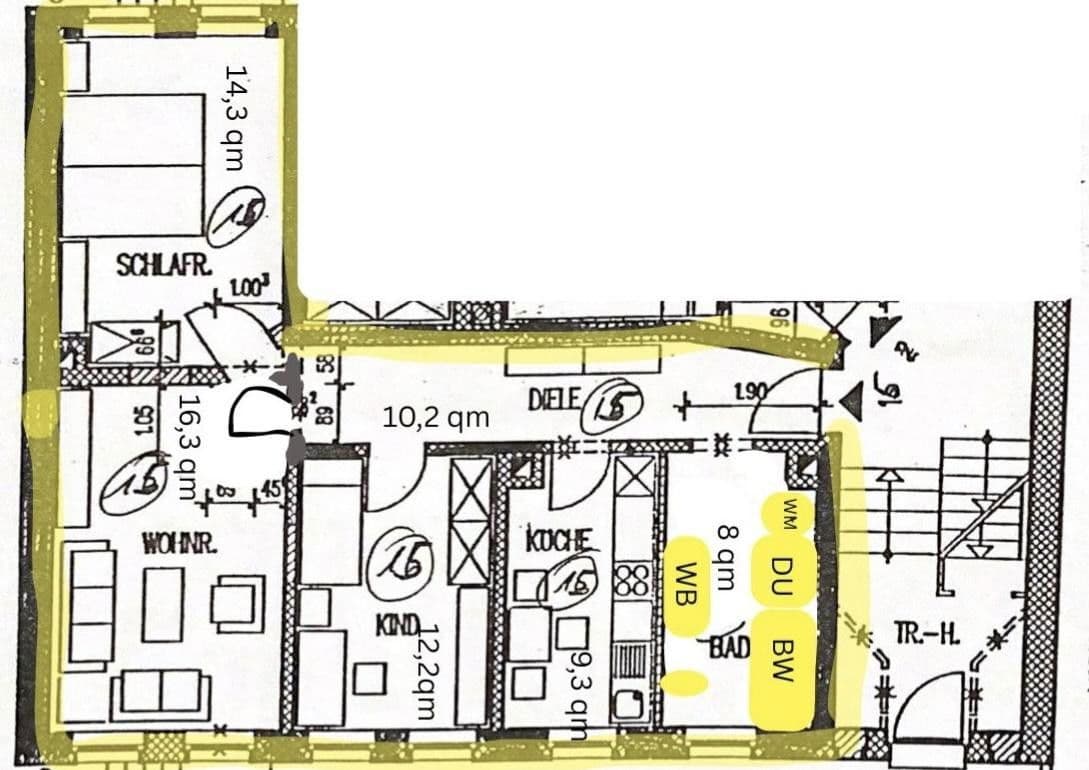
From the spacious hallway, you have direct access to the stylish bathroom, the kitchen, a versatile room (currently used as a children’s room), and the inviting living room. The bathroom impresses with a curbless shower and an additional bathtub – ideal for relaxed moments. The peacefully located bedroom is accessible via the living room, creating a clear separation of space. A special highlight is the communal garden, which serves as a green oasis in the middle of the back building – perfect for breathing fresh air, reading, or enjoying leisurely summer evenings.
The apartment is situated in the popular Leipzig Südvorstadt – a young, vibrant, and trendy neighborhood filled with numerous cafes, bars, restaurants, and small boutiques. The area is considered one of the most desirable residential locations in the city and particularly attracts students, creatives, and young families. Green spaces such as Clara Zetkin Park and Fockeberg are just a few minutes away, offering ample opportunities for sports, strolls, or relaxation amidst nature.
Thanks to the excellent transport connections, you are optimally networked: Bus lines 60 and 74, tram line 9, and the S-Bahn station “MDR” can be reached within a 3-minute walk. With the S-Bahn, you can reach Leipzig’s Central Station in only 5 minutes. Additionally, Karl Liebknecht Street ("KarLi") – the heart of the district with its diverse gastronomic and cultural offerings – is also just a 5-minute walk away. Südvorstadt combines an urban lifestyle with a high quality of life: a dynamic cultural scene, weekly markets, small shops, and a relaxed, cosmopolitan atmosphere make the district one of Leipzig’s most attractive places to live.
The kitchen was installed by IKEA in January 2025. Most of the electronic appliances are IKEA products (microwave, dishwasher, ceramic cooktop), while the oven is from the brand AEG.
Note: As the apartment will be available from November due to our relocation, a sale as soon as possible is anticipated in 2025. Please take this into consideration when making inquiries.
Property characteristics
| Age | Over 5050 years |
|---|---|
| Condition | After reconstruction |
| Listing ID | 958886 |
| Price per unit | €3,930 / m2 |
| Available from | 26/10/2025 |
|---|---|
| Layout | 3+1 |
| Usable area | 71 m² |
What does this listing have to offer?
| Basement |
| MHD 1 minute on foot |
What you will find nearby
Still looking for the right one?
Set up a watchdog. You will receive a summary of your customized offers 1 time a day by email. With the Premium profile, you have 5 watchdogs at your fingertips and when something comes up, they notify you immediately.











