
Flat to rent 2 bedroom • 44 m² without real estateOlgastr. 26 Bremen Östliche Vorstadt Bremen 28203
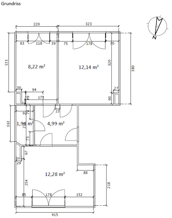
Olgastr. 26 Bremen Östliche Vorstadt Bremen 28203Public transport 3 minutes of walking • EquippedOnly move in with your suitcase.... Your new furnished luxury apartment has been completely refurbished and will be ready for occupancy from January 1, 2026. The apartment is located very centrally on Olgastr. in Fesenfeld. This 2-room apartment (44 m²) comes fully equipped with a new, high-quality kitchen including a stove, microwave/convection oven, dishwasher, refrigerator, pots, dishes, etc. From the kitchen you have direct access to the balcony and the small city garden. The bathroom has been completely renovated with a walk-in shower and stylish porcelain stoneware tiles. The living room is beautifully furnished with a couch, TV unit, small workspace, and a large flat-screen TV. The bedroom features a new king-size double bed with bedside tables, a wardrobe, and another flat-screen TV—a true oasis for relaxation. All built-ins and furniture have been selected with care and exclusively coordinated. Sonos speakers in every room provide the musical backdrop. A laundry room with a new washing machine completes the offer. A basement storage room also provides additional storage space as well as room to park 1-2 bicycles.
The apartment is located on the sought-after Olgastraße in the Fesenfeld district, part of the so-called "Viertel" in Bremen. This central location is characterized by its vibrant atmosphere, charming old buildings, and excellent infrastructure. In the immediate vicinity, you will find numerous cafes, restaurants, bars, and small boutiques that make the neighborhood a popular residential area for young professionals, creatives, and families. The city center, the wall gardens, and the Weser River are all within walking distance and invite you for walks and leisure activities.
The connection to public transport is excellent: several tram and bus lines ensure a fast connection to all parts of the city. Shopping opportunities for daily needs, schools, kindergartens, and medical facilities can also be found nearby.
Property characteristics
| Condition | Very good |
|---|---|
| Fully furnished | Fully furnished |
| Usable area | 44 m² |
| Layout | 2 bedroom |
|---|---|
| Listing ID | 958861 |
| Price per unit | €28 / m2 |
What does this listing have to offer?
| Balcony | |
| MHD 3 minutes on foot |
| Basement |
What you will find nearby
Still looking for the right one?
Set up a watchdog. You will receive a summary of your customized offers 1 time a day by email. With the Premium profile, you have 5 watchdogs at your fingertips and when something comes up, they notify you immediately.

























