House for sale 5+1 • 100 m² without real estateDuisburg Hochheide Nordrhein-Westfalen 47198
This charming property offers approximately 96 m² of living space and a total usable area of around 158.46 m², providing ample room for the whole family. Situated on a plot of about 121 m², the house impresses with a well-conceived layout, modern amenities, and an excellent condition.
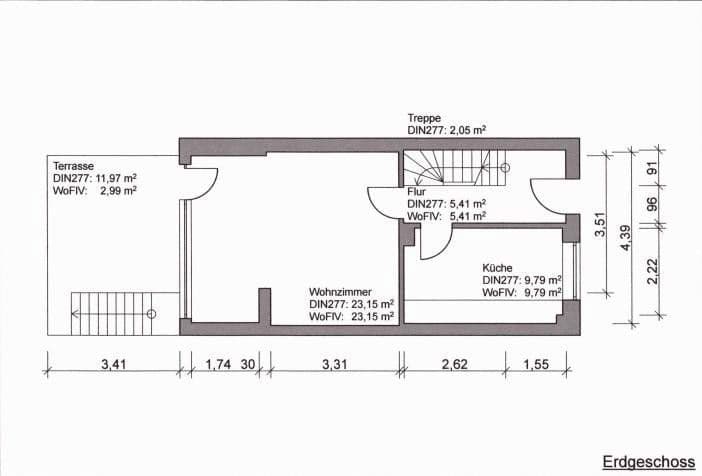
On the ground floor, you'll find a light-filled living and dining room with direct access to the garden. The large terrace invites you to spend relaxing hours outdoors. The open, modern kitchen blends harmoniously into the living area, creating an inviting atmosphere.
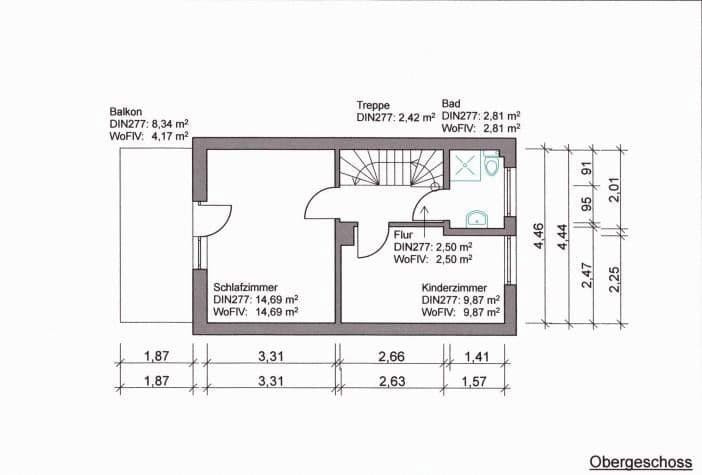
The upper floor features two bedrooms, one of which offers access to a balcony. This level is complemented by a daylight bathroom equipped with a shower, WC, and washbasin. In the attic, there are two additional fully functional bedrooms available, making a total of four bedrooms – ideal for families or for use as study and guest rooms.
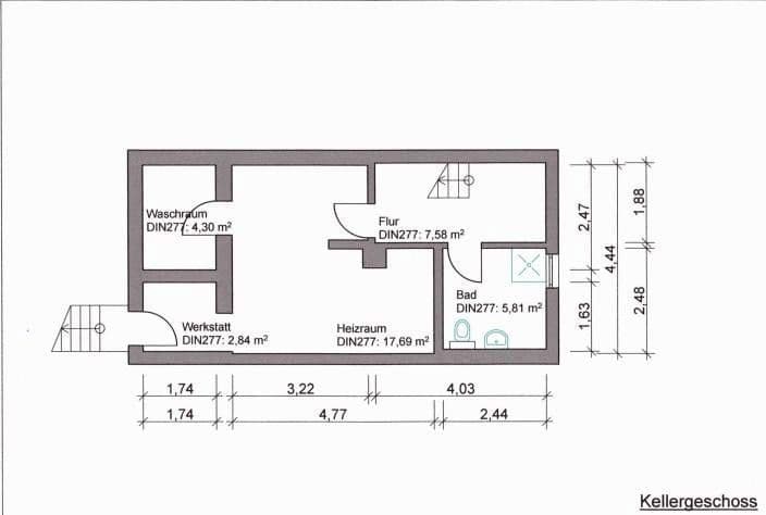
The basement rounds off the available space, housing an extra, very spacious bathroom with a shower, bathtub, WC, and washbasin, which was completely renovated in 2023.
The garden is designed to be low-maintenance and offers, in addition to the terrace, a practical tool shed that provides space for bins and garden tools.
The house was comprehensively modernized last year and presents itself in excellent condition, making it ready for move-in without the need for extensive renovations.
The property is located in a quiet area of Duisburg-Hochheide with good infrastructure. Shops, schools, and kindergartens are all within a few minutes’ reach. The nearby Üttelsheimer Lake invites you to enjoy walks, bike rides, and relaxation in nature. With quick access to the A40 and A42, Duisburg’s city centre as well as surrounding towns are easily reachable. Public transportation is also available in the immediate vicinity.
Property characteristics
| Age | Over 5050 years |
|---|---|
| Layout | 5+1 |
| Usable area | 100 m² |
| Total floors | 3 |
| Condition | After reconstruction |
|---|---|
| Listing ID | 958691 |
| Land space | 121 m² |
| Price per unit | €2,990 / m2 |
What does this listing have to offer?
| Balcony | |
| MHD 1 minute on foot |
| Basement | |
| Terrace |
What you will find nearby
Still looking for the right one?
Set up a watchdog. You will receive a summary of your customized offers 1 time a day by email. With the Premium profile, you have 5 watchdogs at your fingertips and when something comes up, they notify you immediately.














