House for sale 5+1 • 117 m² without real estate, Brandenburg
Move in & Feel at Home:
Family-friendly terraced house with a south garden and plenty of space
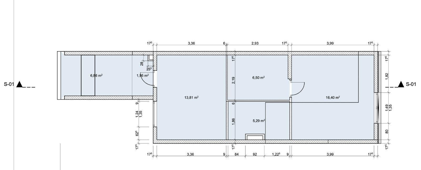
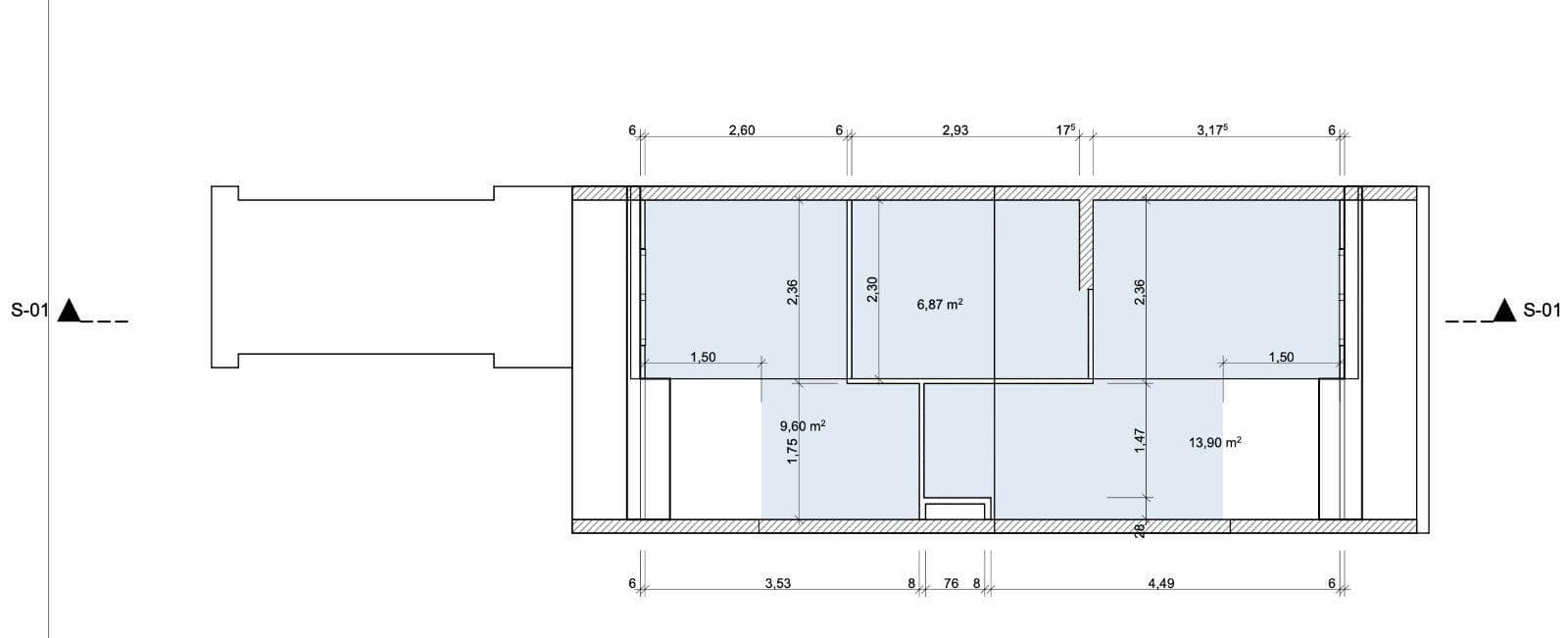
Welcome to your future home – a well-maintained terraced house with a thoughtful layout, spacious room distribution, and an ideal location. With approximately 117 m² of living space, this house offers everything that makes a family’s heart beat a little faster.
A total of five rooms, including four separate bedrooms or workspaces, provide ample retreat options and everyday flexibility. The house spans three floors and features two comfortable bathrooms – ideal for avoiding the morning rush. The open and practical layout creates a pleasant living atmosphere for all generations.
A special highlight awaits you outdoors: a south-facing terrace with an adjoining garden area offers many sunny hours in the greenery. Whether it’s a family brunch, an evening barbecue, or simply enjoying some peace and quiet, everyone will find their favorite spot here.
In the attic, additional storage space is available – perfect for hobbies, supplies, or seasonal items. A parking space right at the house guarantees a convenient arrival and the possibility of setting up an e-charging station for your electric vehicle.
The house was built in 1995 using solid, energy-efficient construction methods. Thanks to district heating, no heating system conversion is necessary, which positively impacts operating costs. The energy efficiency is rated in class A – a real plus for both the environment and your wallet.
The location impresses on every level: just a few minutes’ walk away are a bus stop and the train station, offering ideal connections to Berlin and the surrounding region. Schools of all types, shopping opportunities, and dining options are also quickly accessible.
Conclusion: A rare opportunity in a sought-after residential area, perfect for families who value space, comfort, and good infrastructure. Secure this attractive home with its garden, parking space, and plenty of potential for further development. I look forward to your inquiry and am happy to provide further information and arrange viewings!
Please send me your contact details, and I will get in touch with you immediately, preferably by phone.
Location Description
The house is located in a quiet, family-friendly residential area of Falkensee. The town is situated on the western outskirts of Berlin and is very popular. The well-kept neighborhood, with its abundance of green, offers ideal conditions for a relaxed, nature-oriented lifestyle, while you still benefit from being close to the capital.
Thanks to excellent public transport connections, you can reach Berlin-Spandau or the main train station of the capital in no time. Falkensee station is easily accessible by bicycle or bus, and a bus stop is also within walking distance. The nearby federal highway ensures a quick car connection to Berlin or the surrounding areas.
In the immediate vicinity, you will find numerous shopping opportunities, supermarkets, bakeries, pharmacies, as well as cozy cafés and restaurants. For families, the excellent accessibility of kindergartens, primary schools, and secondary schools – all of which enjoy an excellent reputation in the region – is particularly attractive.
There is also plenty available for recreation and leisure. Green spaces, walking paths, playgrounds, and the nearby Falkenhagener Lake invite outdoor activities and offer space for relaxation.
This location is ideal for people who wish to live near the city while also appreciating the peace and quality of life provided by an established, green environment.
Property characteristics
| Age | Over 5050 years |
|---|---|
| Layout | 5+1 |
| EPC | A - Extremely economical |
| Land space | 134 m² |
| Price per unit | €3,376 / m2 |
| Available from | 26/10/2025 |
|---|---|
| Listing ID | 958663 |
| Usable area | 117 m² |
| Total floors | 3 |
What does this listing have to offer?
| Parking |
| MHD 1 minute on foot |
What you will find nearby
Still looking for the right one?
Set up a watchdog. You will receive a summary of your customized offers 1 time a day by email. With the Premium profile, you have 5 watchdogs at your fingertips and when something comes up, they notify you immediately.























