
Flat for sale 2 bedroom • 80 m² without real estateBremen Neustadt Bremen 28201
Bremen Neustadt Bremen 28201Public transport 1 minute of walkingThis beautiful historic apartment is located on the first floor of an old Bremen terraced house in Bremen’s Neustadt, right next to the Werdersee.
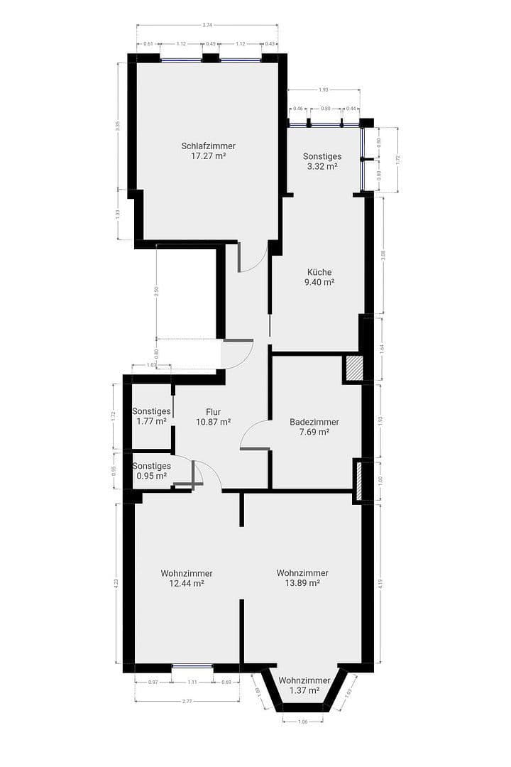
The apartment features two very spacious rooms, a large bathroom with a bathtub and shower, a kitchen complete with fitted appliances and an adjoining conservatory, two storage rooms, and a basement. The approximately 3.40-meter-high ceilings combined with the large windows make the spacious rooms pleasantly bright. The conservatory is a lovely retreat even on rainy days.
The apartment has not lost any of its historic charm. It impresses with features such as stucco ceilings, wooden paneled doors, terrazzo floors in the conservatory, and an old tiled stove. In the kitchen, living room, and bedroom, the original plank floors have already been refurbished and oiled.
The tiled stove is fully functional and can effectively heat the apartment for one to two days.
One of the highlights of the apartment, besides its location right next to the Werdersee, is certainly the cantilevered bay window that offers a view along the entire Buntentorsteinweg all the way to Leibnizplatz. In the rear bedroom, it’s even possible to sleep with the window open without being awakened by city noise, despite the central location.
Additional amenities include a washing machine connection in the bathroom and shutters on all the windows in both the living room and the bedroom. The front of the two rooms can be easily divided, thereby creating a third room.
The apartment is located in the charming district of Buntentor in the popular Bremen Neustadt.
It is situated in one of the best locations in the Neustadt – right next to the Werdersee, just before the Deichschart Bridge. A walk to the Werdersee, a morning swim, or a jogging round are all right at your doorstep. The tranquility of the Werdersee is especially noticeable in the conservatory and the bedroom.
The Rewe on Buntentorsteinweg and the Penny Buntentor are just as easily accessible as the Combi and Aldi on Volkmannstraße.
Tram line 4 runs directly to the city center and the main train station. Both the Viertel and the Flüsseviertel can be reached within minutes by bike.
For Werder fans, it is worth taking the route via Stadtwerder and the ferry at Café Sand on the way to the stadium.
The apartment was renovated three years ago. In the process, the following work was carried out:
• Installation of a new gas-fired individual heating system with a wireless thermostat
• Installation of a new fuse box with a residual-current device (the electrical wiring is three-core)
• New built-in kitchen featuring an induction stove, a separate chest-high oven, an extractor hood, and a fridge/freezer
• Sanding and lacquering of the plank floors in the kitchen, living room, and bedroom
• New switching program
• New vinyl flooring in the hallway
• Lowering the ceiling and installation of spotlights in the hallway, bathroom, and kitchen
The bathroom had already been renovated prior to these works.
Property characteristics
| Age | Over 5050 years |
|---|---|
| Layout | 2 bedroom |
| Listing ID | 958286 |
| Usable area | 80 m² |
| Condition | After reconstruction |
|---|---|
| Floor | 1. floor |
| EPC | F - Very uneconomical |
| Price per unit | €3,450 / m2 |
What does this listing have to offer?
| Basement |
| MHD 1 minute on foot |
What you will find nearby
Still looking for the right one?
Set up a watchdog. You will receive a summary of your customized offers 1 time a day by email. With the Premium profile, you have 5 watchdogs at your fingertips and when something comes up, they notify you immediately.









