
House for sale 5+1 • 119 m² without real estate, North Rhine-Westphalia
Celebrate Christmas in your new home!
+++ Listing images are real photos of the house +++
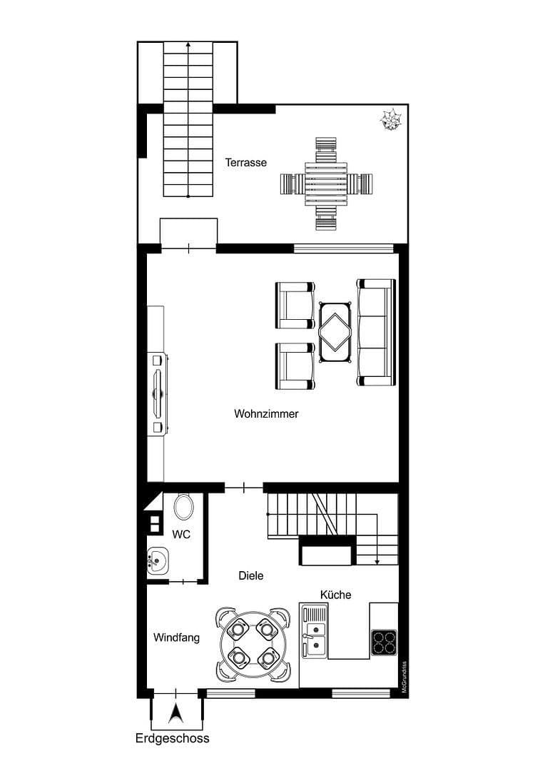
A spacious, light-filled terraced house with a large garden and garage in the popular area of Langenfeld Richrath.
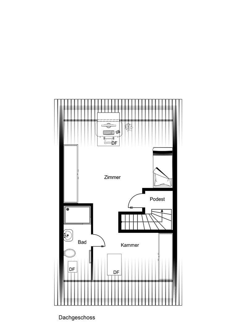
The house features 1 large living room with enough space for a dining area, 1 family kitchen, 2 bedrooms, 2 children's rooms / studies, 2 shower bathrooms, 1 toilet, 1 sun terrace, and 1 generous garden offering plenty of privacy.
- Family kitchen with a view of the front garden
- Flooring: oak parquet and tiles
- Windows from 2025
- White modern interior doors
- Bright guest WC on the ground floor
- Shower bathroom on the 1st floor
- En suite shower bathroom on the 2nd floor
- Spacious terrace in the garden
- Heating from 2025
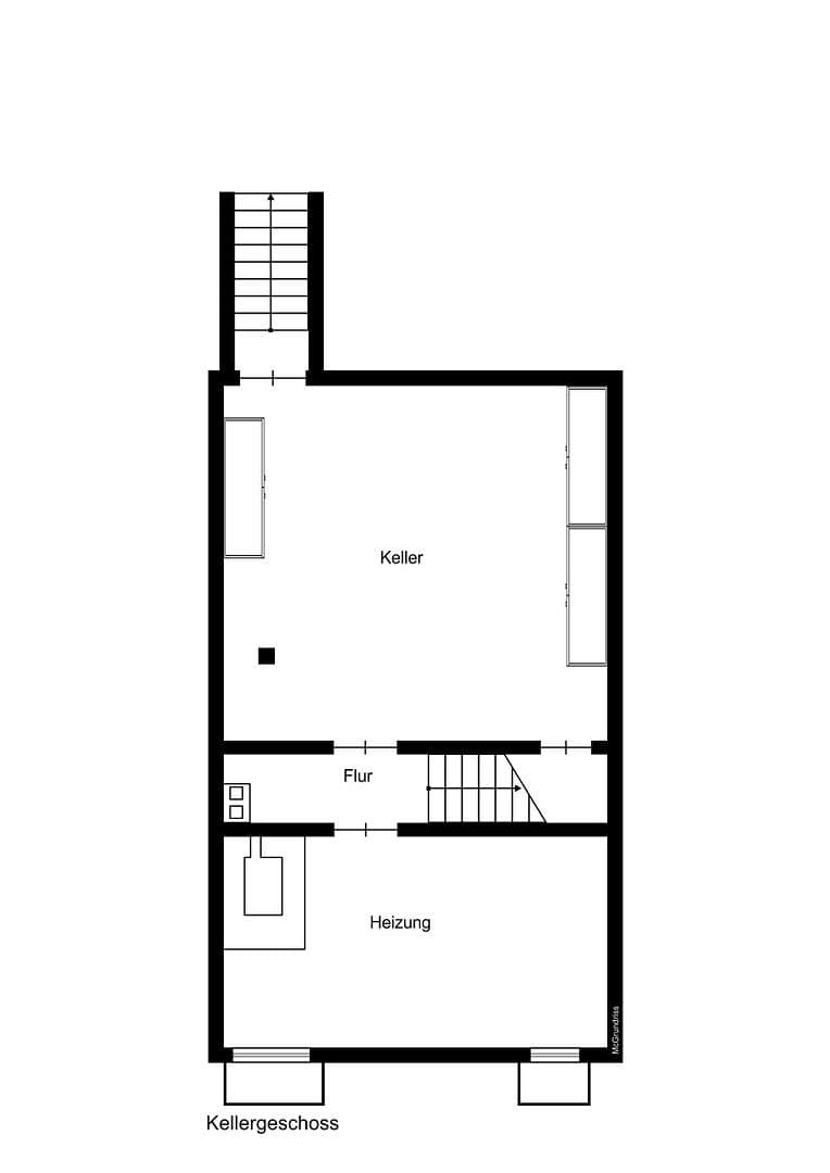
- 2 spacious cellar rooms, one with access to the garden
- 1 garage + 2 parking spaces in front of the garage
It’s just a 2-3 minute walk to the nearest primary school and daycare center. The next secondary school can be reached in 8-10 minutes.
A viewing is possible at short notice. Please feel free to arrange an appointment with us.
We are happy to provide you with further documents.
Langenfeld Richrath – Good transport links, supermarkets, doctors, pharmacies, schools, daycare centers (primary school and daycare within a 2-3 minute walk) and forests in the nearby area
Imprint
Bastian Schiemann
Max-Planck-Ring 14
40764 Langenfeld
Email: mail@schiemann-immobilien.de
Property characteristics
| Age | Over 5050 years |
|---|---|
| Condition | After reconstruction |
| Listing ID | 958221 |
| Usable area | 119 m² |
| Total floors | 3 |
| Available from | 25/10/2025 |
|---|---|
| Layout | 5+1 |
| EPC | E - Wasteful |
| Land space | 276 m² |
| Price per unit | €4,613 / m2 |
What does this listing have to offer?
| Basement | |
| Parking | |
| Terrace |
| Garage | |
| MHD 0 minutes on foot |
What you will find nearby
Still looking for the right one?
Set up a watchdog. You will receive a summary of your customized offers 1 time a day by email. With the Premium profile, you have 5 watchdogs at your fingertips and when something comes up, they notify you immediately.


















