
House for sale • 500 m² without real estateZum See 10-13, , Brandenburg
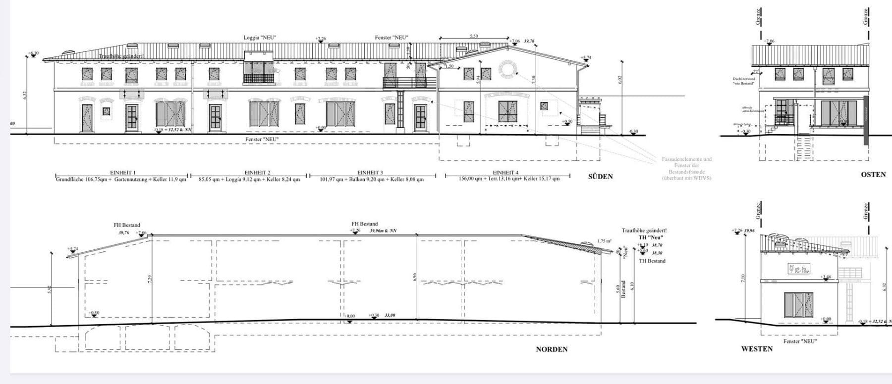
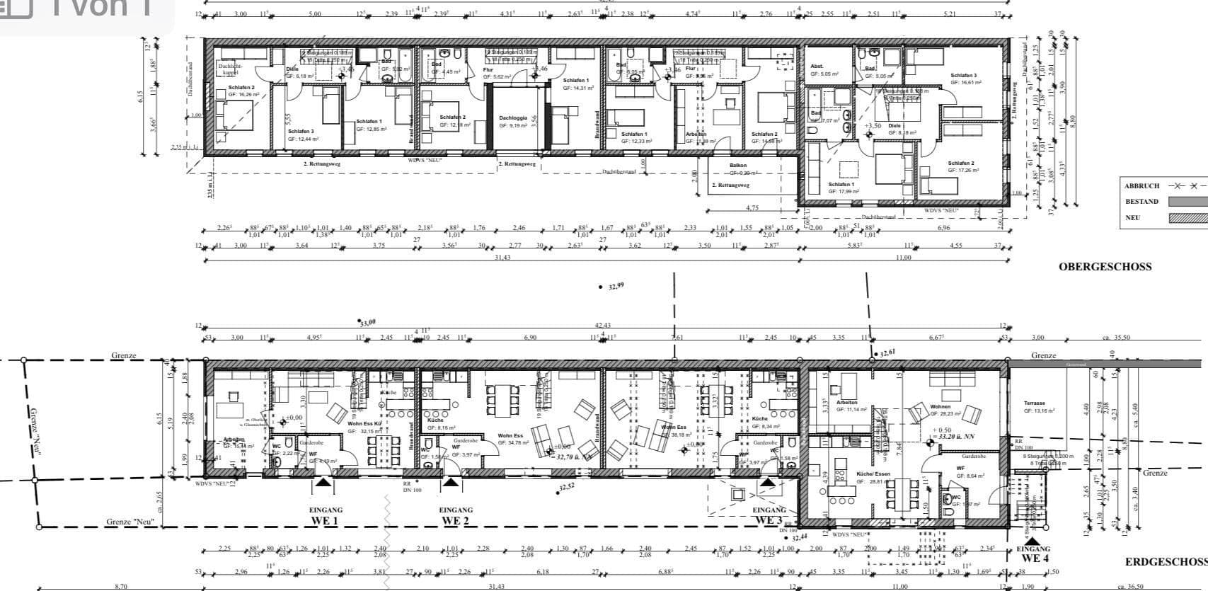
Zum See 10-13, , BrandenburgPublic transport 3 minutes of walking • ParkingThe remise was renovated in 2013 while preserving historic elements (for example, the original sloping ceilings). The apartments are designed like townhouses with head and end units. In addition to underfloor heating and parquet flooring, the staircases are finished in steel and wood. Furthermore, the property is insulated to modern standards.
Located in the center of Glindow, approximately 150 meters from Glindow Lake, all apartments either feature a small garden, a balcony, or a terrace. Additionally, each unit includes a guest WC.
Property characteristics
| Age | Over 5050 years |
|---|---|
| Floor | 2. floor out of 2 |
| Usable area | 500 m² |
| Price per unit | €2,900 / m2 |
| Condition | Good |
|---|---|
| Listing ID | 957925 |
| Land space | 700 m² |
What does this listing have to offer?
| Balcony | |
| Parking | |
| Terrace |
| Basement | |
| MHD 3 minutes on foot |
What you will find nearby
Still looking for the right one?
Set up a watchdog. You will receive a summary of your customized offers 1 time a day by email. With the Premium profile, you have 5 watchdogs at your fingertips and when something comes up, they notify you immediately.



















