Commercial property for sale • 28300 m² without real estateLützowstr. 1, , Mecklenburg-Vorpommern
Lützowstr. 1, , Mecklenburg-VorpommernPublic transport 10 minutes of walking • Lift • GarageThe former barracks area for sale comprises a variety of diversified building and hall complexes.
Location: 17153 Stavenhagen, Basepohl Industrial Area
The property ensemble is divided as follows:
Total area: 28,300 sqm of developable land!!! (Zoning Plan Area No. 17 of the City of Stavenhagen) (industrial building land)
The existing buildings are all in good condition and were comprehensively renovated by the federal government for several million euros in the mid/late ’90s (insulation, roofs, electrical systems).
Each building has its own plot and can be purchased individually.
The following buildings are currently for sale:
- A former administrative and accommodation building with a usable area of approximately 2,323 m², (Plot 13/55) + 1,647 sqm – 129,000 euros
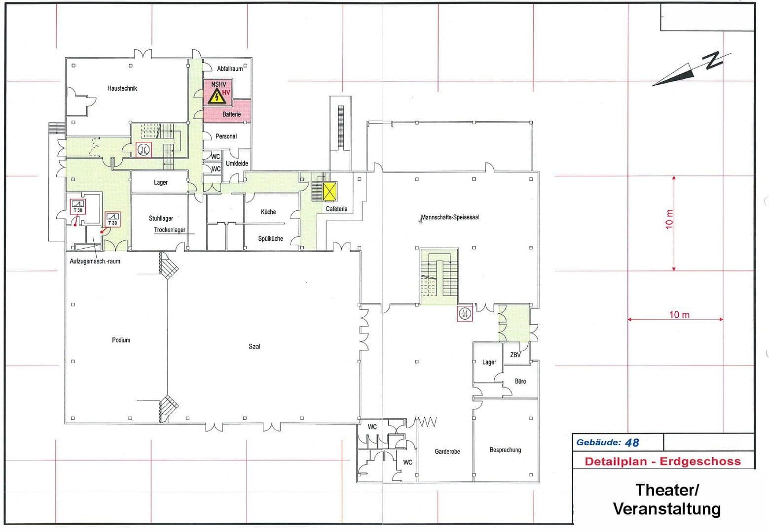
- A social and event building with a large hall (500 people) and a stage, common areas, as well as 2 kitchens with 2 dining establishments, an elevator and a total usable area of approximately 2,628 m², (Plot 13/47) + 8,402 sqm – 199,000 euros
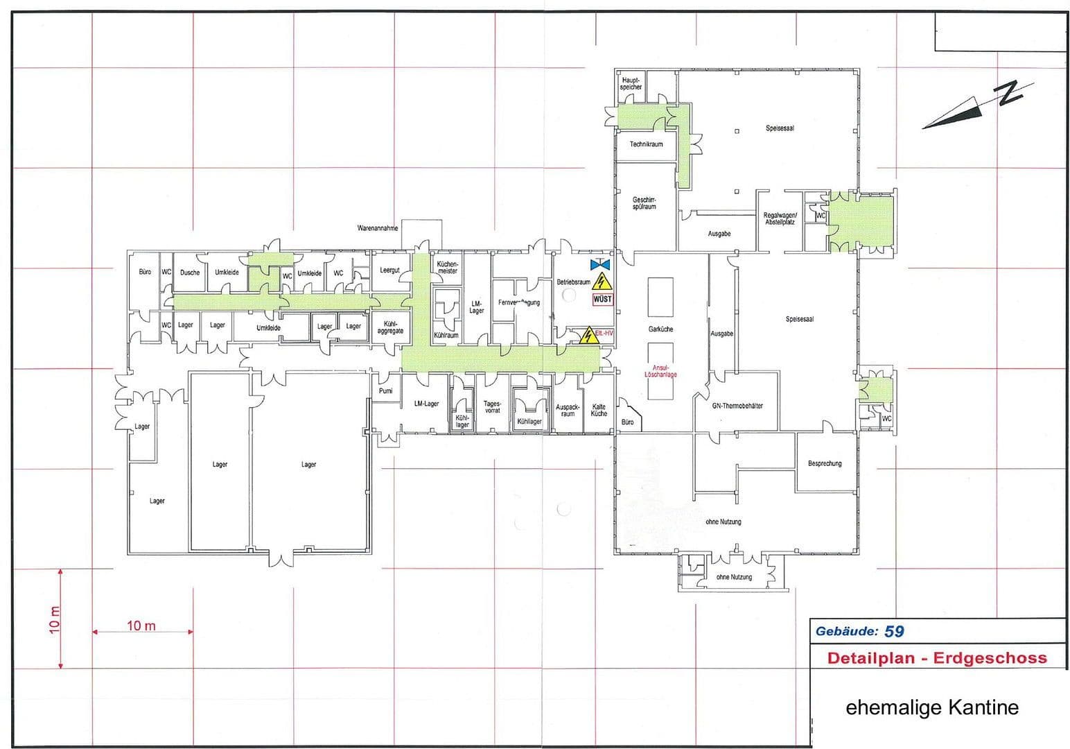
- An economic building with 2 dining halls, a large kitchen, storage, cooling, and sanitary rooms with a total usable area of approximately 2,470 m², including around 600 sqm of cold storage hall, (Plot 14/24) + 7,145 sqm – 249,000 euros
- A medical building with treatment and patient rooms with a total usable area of approximately 1,300 m², (Plot 13/60) + 3,991 sqm – 149,000 euros
- A former bunker with technical, office, accommodation, and sanitary rooms with approximately 265 m² of usable area, (Plot 13/52) + 1,236 sqm – 49,000 euros
- A former school building with a usable area of approximately 3,900 m², (Plot 13/58) + 3,654 sqm – 149,000 euros
- A paved parking area with a usable area of approximately 3,000 m², (Plot 13/56) + 4,587 sqm – 49,000 euros
The respective building complexes were constructed at different times between approximately 1970 and 1987 and were renovated or partially renovated between about 1996 and 1999. The construction was mostly carried out in reinforced concrete. The media and supply/disposal lines are largely no longer intact and would have to be newly developed/reactivated.
The former central heating system is also no longer usable. All buildings require repairs and modernization. An energy certificate is not required. The area consists of several individual plots. The purchase of partial areas is possible.
The town of Stavenhagen is a small town in the Mecklenburgische Seenplatte district, characterized by its variety of commercial and industrial establishments. The town, with approximately 5,500 inhabitants, is located about 25 km from Waren (Müritz) and about 32 km southeast of Neubrandenburg. Basepohl, a district of Stavenhagen, is situated at the “Great and Little Lake”, about 5 km north of Stavenhagen.
Shaped by its variety of commercial and industrial establishments, the district of Basepohl was especially well-known for two large barracks, even beyond the borders of Mecklenburg-Vorpommern.
The sales area is located in Zoning Plan Area No. 17 of the City of Stavenhagen, "Barracks Mecklenburgische Schweiz Southern Part."
One of the two barracks sections has already been fully developed into an industrial area.
Due to the good connection to the B 104 and the highway (A19+A20), the major cities of Berlin and Hamburg can be reached within less than 2 driving hours.
Zoning Plan Area No. 17 of the City of Stavenhagen "Barracks Mecklenburgische Schweiz Southern Part."
Property characteristics
| Available from | 30/10/2025 | 
|---|---|
| Listing ID | 957066 | 
| Land space | 28,300 m² | 
| Condition | Good | 
|---|---|
| Land non-residential space | 28,300 m² | 
| Price per unit | €0 / m2 | 
What does this listing have to offer?
| Wheelchair accessible | |
| Garage | |
| MHD 10 minutes on foot | 
| Basement | |
| Lift | |
| Terrace | 
What you will find nearby
Still looking for the right one?
Set up a watchdog. You will receive a summary of your customized offers 1 time a day by email. With the Premium profile, you have 5 watchdogs at your fingertips and when something comes up, they notify you immediately.
















































