
Flat to rent 3+1 • 98 m² without real estateBratislavská, Brno - Zábrdovice, Jihomoravský Region
Interested?
Communicate all private owners and save CZK 15,000 on commissions.
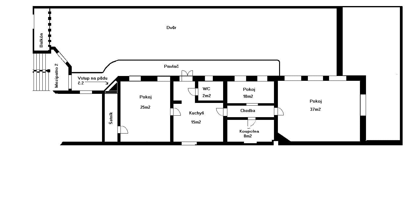
Nabízím k pronájmu nově rekonstruovaný 3+1 byt o rozloze 98 m², situovaný v cihlové budově. Tento prostorný byt je částečně vybavený, což umožní přizpůsobení dle vlastních představ. Byt se nachází v prvním mezipatře ze samostatným vchodem přes pavlač s výhledem do dvora.
Zvláštní předností této nemovitosti je prostorný balkón o rozloze 30 m², který nabízí ideální místo k relaxaci či posezení při příjemném počasí. Nemovitost je určena pouze pracujícím nebo studentům bez zvířat. V areálu nejsou řešeny parkovací možnosti, garáž, výtah ani bezbariérový přístup, což je třeba vzít v úvahu.
V případě zájmu mě oslovte prostřednictvím zpráv na této komunikační platformě.
Property characteristics
| Available from | 01/04/2026 |
|---|---|
| Building construction | Brick |
| Fully furnished | Partly |
| Heating | Gas boiler |
| Reconstruction | Interior |
| Usable area | 98 m² |
| Condition | Good |
|---|---|
| Layout | 3+1 |
| Floor | Ground floor |
| Listing ID | 956886 |
| Location | Centre |
| Price per unit | CZK 153 / m2 |
What does this listing have to offer?
| Balcony: 30 m² |
| MHD 3 minutes on foot |
What you will find nearby
Interested?
Communicate all private owners and save CZK 15,000 on commissions.
Still looking for the right one?
Set up a watchdog. You will receive a summary of your customized offers 1 time a day by email. With the Premium profile, you have 5 watchdogs at your fingertips and when something comes up, they notify you immediately.













