
Flat for sale 3+kk • 98 m² without real estateMünchen Maxvorstadt Bayern 80335
München Maxvorstadt Bayern 80335Public transport 4 minutes of walkingThe listed residential building in a prime location in Maxvorstadt dates back to 1897 and is in excellent condition. In 2002, the entire building was extensively renovated during the attic expansion and later received the facade award from the City of Munich.
What makes it truly unique is the incomparable old-building charm of the Neorenaissance style found in the entrance portal and staircase. Today, the multi-family house consists of 16 units and is nestled among a mix of historic neighboring buildings on one side and modern, high-quality residential architecture on the other.
Energetically, the building is in excellent shape. Both the windows and the roof have been replaced with high-quality materials, and the masonry in the ground floor has been insulated and damp-proofed against moisture. Equipped with central heating, the building has been connected to Munich’s district heating network since 2016. In 2023, the outdoor areas were extensively renovated, with the entire courtyard and access road being completely redesigned and landscaped, and the building’s/property’s drainage system renewed.
The quiet yet central location of the house in the highly sought-after Maxvorstadt is particularly appealing. The Mailingerstraße U-Bahn station is a 5-minute walk away, and all daily amenities—doctors, pharmacies, grocery stores, restaurants, schools, and more—are found in the immediate vicinity.
Every Friday, a weekly market featuring local and regional products takes place in the square surrounding the very characteristic St. Benno Church, inviting visitors to relax under the trees. The nearby Nymphenburgerstraße; Stiglmaierplatz with its traditional establishment and brewery; Königsplatz with its magnificent buildings; the Siegestor; and the Pinakotheken offering an unparalleled selection of art and culture are all just steps away. Maxvorstadt is one of the most architecturally and culturally significant districts of Munich.
Within a few minutes on foot, one can reach the Munich University of Applied Sciences as well as the German Heart Center. Also in the vicinity are the Technical University, Ludwig-Maximilians University, numerous headquarters of renowned companies, the Technopark Arnulfstraße, and all the Bavarian State Ministries, among others. Besides its historical significance, it is the dynamic blend of student bars, cafés, and bistros up to upscale dining that now characterizes life in Maxvorstadt.
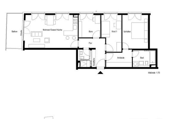
The 3.5-room apartment captivates with both its perfect layout and its high-quality finish that meets the highest living standards. After an extensive and lovingly executed complete renovation, the apartment’s highlight is the unique combination of its old-world charm and modern features, creating a truly unique and stylish living ambience.
Notable features include, among others, large-format Italian floor tiles made of porcelain, oiled solid oak parquet flooring, wall tiles in a marble look, a high-quality lighting concept with LED recessed spotlights, window sills made of white Carrara marble, a custom wood-crafted washbasin, brushed brass bathroom fittings, and much more.
From the moment you arrive, the spacious entrance area creates an expansive feeling that carries through all the rooms. The open-plan kitchen is equipped with a high-quality, elegant fitted kitchen including all appliances and offers plenty of space for a cozy dining area. The daylight bathroom in white marble style features a bathtub, a designer washbasin with vanity and base, brushed brass fittings, a dimmable LED mirror with various functions, and a large towel radiator. All living areas boast oak parquet flooring.
The apartment also features a balcony power plant (mini photovoltaic system) with a 600 kW capacity for exclusive use.
Completing the property is a separate, lockable, and dry cellar storage room of approximately 7 m², as well as a fixed parking space in the bicycle cellar. The inner courtyard garden not only offers pleasant opportunities to relax in the greenery but also features a communal barbecue area with a gas grill for general use.
Property characteristics
| Age | Over 5050 years |
|---|---|
| Condition | After reconstruction |
| Floor | 3. floor out of 4 |
| EPC | C - Economical |
| Price per unit | €14,184 / m2 |
| Available from | 25/10/2025 |
|---|---|
| Layout | 3+kk |
| Listing ID | 956812 |
| Usable area | 98 m² |
What does this listing have to offer?
| Basement |
| MHD 4 minutes on foot |
What you will find nearby
Still looking for the right one?
Set up a watchdog. You will receive a summary of your customized offers 1 time a day by email. With the Premium profile, you have 5 watchdogs at your fingertips and when something comes up, they notify you immediately.





















