House for sale • 239 m² without real estate, Baden-Württemberg
, Baden-WürttembergPublic transport 1 minute of walking • Parking • GarageFor owner-occupiers and investors:
In a quiet, sunny residential location in a quiet cul-de-sac, this well-maintained three-family house with modern heating, PV system, and solar panels is presented in the Friedrichshafen district of Ailingen. Built in 1969 with solid construction and fully basemented, this multifamily house offers a total living area of approximately 239 m² over three levels (ground floor, first floor, and attic).
Property layout:
Basement:
Heating and building technology, laundry room, various storage and utility rooms.
Ground floor: available from November
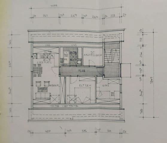
4 1/2-room apartment, comprising a large living/dining room with access to the balcony, a separate kitchen, hallway, master bedroom, child’s room 1, child’s room 2, daylight bathroom, guest WC, and a large, mostly covered balcony. Living area approx. 96 m².
First floor: rented
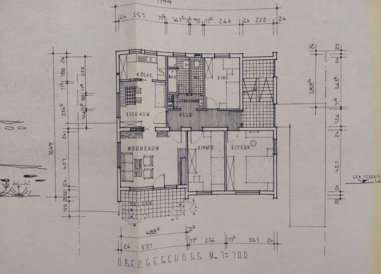
4 1/2-room apartment, comprising a large living/dining room with access to the balcony, a separate kitchen, hallway, master bedroom, child’s room 1, child’s room 2, daylight bathroom, guest WC, and a large modernized balcony. Living area approx. 96 m².
Attic: rented
3-room apartment, comprising a large living/dining room, separate kitchen, hallway, master bedroom, child’s room, daylight bathroom. Living area approx. 47 m².
Located in a splendid setting, the multifamily house with three separate apartments and a large garden is in a wonderful area. The building underwent extensive renovations between 2009 and 2016, including updates to floors, walls, ceilings, electrical systems, heating, and sanitary installations. The multifamily house consists of four floors with a magnificent view over Ailingen.
The apartments offer living areas ranging from 47 to 96 m². High-quality technology, a pleasant living climate, a practical layout in a sought-after location with several balconies, and a large, sunny garden are among the advantages of the apartments.
The state-recognized recreational resort of Ailingen, with around 7,900 inhabitants, is the largest district of Friedrichshafen and is located about 4 kilometers north of Friedrichshafen’s city center. The excellent infrastructure includes kindergartens, schools, doctors, a pharmacy, various types of shops, restaurants, hotels, a large wave outdoor pool, and much more. Additionally, there are farm shops offering regionally produced foods.
Public transport is well secured by several bus lines. You can reach Zeppelin, the exhibition center, and the university city of Friedrichshafen by car in just a few minutes. In addition, there is a well-developed network of cycle paths as well as countless walking trails.
Ailingen offers an extensive range of club activities, two museums, and various festivals, concerts, and events that contribute to a high quality of life.
From Friedrichshafen, all destinations can be reached easily and comfortably by train, airplane, or ship.
Multifamily house with 3 residential units:
- Solid construction
- Tiled floors
- Partially parquet floors
- 3 fitted kitchens
- Plastic windows with multiple glazing
- Central heating with solar (conversion to heat pump planned)
- Full basement
- 2 balconies, partly with lake and mountain views
- 1 garage
- 2 carport parking spaces on leased land
- 1 outdoor parking space
- Sunny garden plot
Thanks to the modern central heating system, solar system for hot water, and a PV system, both owners and tenants benefit from very low additional costs. Currently, a modern oil condensing boiler with solar support is installed, which can be replaced by a heat pump in the near future. The conversion to a heat pump can be arranged between the buyer and the seller.
If you have a serious purchase interest, we will be happy to provide you with further information. Please send us details about yourself as an interested buyer.
Property characteristics
| Age | Over 5050 years |
|---|---|
| Listing ID | 956616 |
| Usable area | 239 m² |
| Total floors | 3 |
| Condition | After reconstruction |
|---|---|
| EPC | C - Economical |
| Land space | 712 m² |
| Price per unit | €5,000 / m2 |
What does this listing have to offer?
| Balcony | |
| Basement | |
| Parking | |
| Terrace |
| Wheelchair accessible | |
| Garage | |
| MHD 1 minute on foot |
What you will find nearby
Still looking for the right one?
Set up a watchdog. You will receive a summary of your customized offers 1 time a day by email. With the Premium profile, you have 5 watchdogs at your fingertips and when something comes up, they notify you immediately.









































