House for sale 5+1 • 152 m² without real estate, Mecklenburg-Vorpommern
, Mecklenburg-VorpommernPublic transport 3 minutes of walking • ParkingCharming Single-Family House in the Green
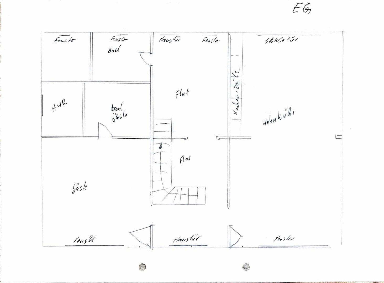
This partially renovated farmhouse provides a solid foundation for further expansion. With minimal effort, you can create a cozy home with rural charm and proximity to the Baltic Sea. With approximately 150 m² of living space and a 530 m² plot, this house offers plenty of room.
The house is currently in an ongoing renovation phase. Essential core work has already been completed, creating the basis for comfortable use.
Work completed so far:
- New gable roof with clay tiles – 2025
- 6 new roof windows – making the attic bright and friendly – 2025
- Entire attic fully renovated in 2024
- Electrical system renewed throughout the house – 2024
- Heating pipe renewed – 2024
- New screed on the ground floor – 2025
- Facade nearing completion
Whether as a family residence, holiday home, or everyday retreat, this house offers numerous possibilities and impresses with its attractive location.
This idyllic single-family house is located at Bartelshagen 1 in a quiet village near the Baltic Sea. The house combines charm with excellent transport links, making it the ideal home for families, nature lovers, or anyone seeking tranquility. The property stands out with its farmhouse character and offers plenty of space for individual living ideas. Surrounded by fields, meadows, and the crisp air of the Baltic coast, you can enjoy a relaxed country lifestyle with nature right at your doorstep.
Location advantages:
- Only about 17 minutes to the Baltic Sea
- Approximately 11 minutes to Ribnitz-Damgarten (schools, medical care, shopping facilities)
- Well connected to the A20 highway – ideal for commuters
- Close to the Vorpommersche Bodden Landscape National Park, a paradise for hikers
Property characteristics
| Age | Over 5050 years |
|---|---|
| Layout | 5+1 |
| Usable area | 152 m² |
| Total floors | 2 |
| Condition | Under construction |
|---|---|
| Listing ID | 956392 |
| Land space | 523 m² |
| Price per unit | €1,572 / m2 |
What does this listing have to offer?
| Parking |
| MHD 3 minutes on foot |
What you will find nearby
Still looking for the right one?
Set up a watchdog. You will receive a summary of your customized offers 1 time a day by email. With the Premium profile, you have 5 watchdogs at your fingertips and when something comes up, they notify you immediately.

















