House for sale 7+1 • 200 m² without real estate, Rhineland-Palatinate
, Rhineland-PalatinatePublic transport 3 minutes of walking • ParkingIn the traditional town center of Monsheim (district of Kriegsheim) you will encounter an exceptional residential property: a comprehensively renovated building within a charming open three-sided courtyard that combines modern living comfort with historic flair. The house was completely and qualitatively renovated from the ground up in 2001 and offers approximately 200 m² of living space.
Access to the house is provided through a spacious entrance hall from the enclosed courtyard—which is shared with two other parties—and you immediately see the 60 m² beautiful cross-vault, the heart of the house. This area is currently used as a kitchen-living space and provides access to the courtyard and the terrace overlooking the small garden beyond.
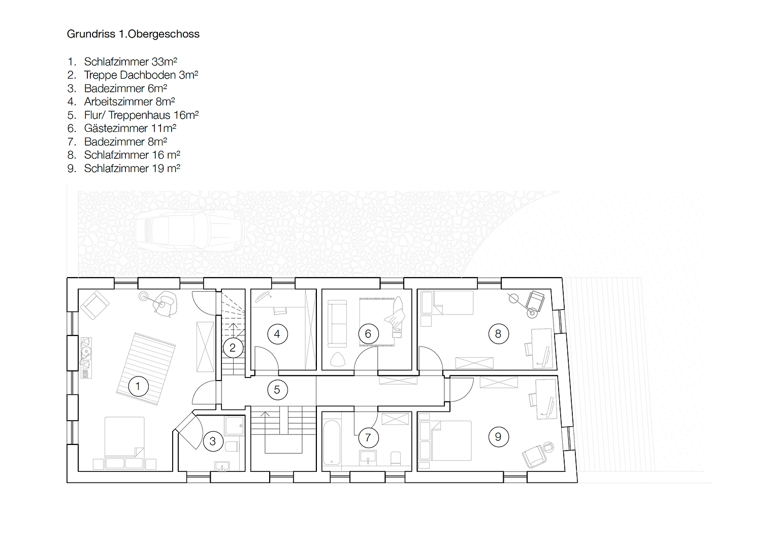
On the ground floor there is also a guest toilet with a shower, a storage room, and an additional room with a sauna. From the entrance hall, you can access the vaulted basement. A broad staircase leads to the upper floor, where there are two additional bathrooms, four rooms, and an office. The large attic still offers development potential. The gas heating system was renewed in 2020. On the upper floor, wooden floorboards were installed, while on the ground floor there are cement tiles; the cross-vault features underfloor heating and also includes a connection for a fireplace.
Located in sunny Rheinhessen, in the wine village of Monsheim/Kriegsheim.
Property characteristics
| Age | Over 5050 years |
|---|---|
| Layout | 7+1 |
| Usable area | 200 m² |
| Total floors | 2 |
| Condition | Good |
|---|---|
| Listing ID | 956140 |
| Land space | 300 m² |
| Price per unit | €2,225 / m2 |
What does this listing have to offer?
| Wheelchair accessible | |
| Parking | |
| Terrace |
| Basement | |
| MHD 3 minutes on foot |
What you will find nearby
Still looking for the right one?
Set up a watchdog. You will receive a summary of your customized offers 1 time a day by email. With the Premium profile, you have 5 watchdogs at your fingertips and when something comes up, they notify you immediately.
















