Commercial property to rent • 221 m² without real estateSchmidtstedter Str. 28 Erfurt Altstadt Thüringen 99084
Schmidtstedter Str. 28 Erfurt Altstadt Thüringen 99084Public transport 2 minutes of walkingThe commercial space is located on the ground floor of the front building of a residential and commercial complex.
Condition:
The space is currently not ready for occupancy and in need of renovation. The concept is that the design and furnishings will be carried out individually (at the tenant’s own expense). In return, a rent reduction during the first year of the lease is possible by arrangement.
Usage Options:
The space can be used as one large contiguous unit or, after appropriate conversion, divided into two separate units. The units already have their own entrances, allowing them to be used by different businesses.
A joint use by compatible businesses is conceivable, for example, through a combination of office spaces, treatment rooms, or class areas.
Due to the greater expense involved in a division, the space is preferably rented as a whole.
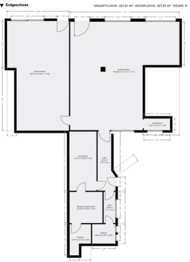
Layout:
The space features two entrances facing the street as well as a rear exit. The large partition wall in the main room can be removed if necessary. A shop window frontage on the street is possible. At the back, there is an ancillary area that offers storage and the opportunity to install sanitary facilities and a kitchenette.
Suitable Use:
Since the building also contains residential units, a quiet commercial use is preferred. Particularly suitable are office, practice, or service concepts such as hairdressing, cosmetics, or coaching. Gastronomy establishments or grocery retail are not desired due to delivery requirements and potential noise issues.
Viewing:
If you are interested and wish to view the property, please send an inquiry with the following details:
- Desired space size (number of units)
- Type of business
- Planned lease start date
The residential and commercial complex is located on Schmidtstedter Straße, in central Erfurt. The main train station and Anger 1 square are reachable on foot in just a few minutes. The location offers excellent connections to both local and long-distance public transport, as well as short distances to shops and city center amenities.
The choice remains with the tenant.
Property characteristics
| Age | Over 5050 years |
|---|---|
| Land non-residential space | 221 m² |
| Listing ID | 956134 |
|---|---|
| Price per unit | €9 / m2 |
What does this listing have to offer?
| MHD 2 minutes on foot |
What you will find nearby
Still looking for the right one?
Set up a watchdog. You will receive a summary of your customized offers 1 time a day by email. With the Premium profile, you have 5 watchdogs at your fingertips and when something comes up, they notify you immediately.




