
Flat to rent 3+1 • 78 m² without real estateBächelsgasse 5, , Hesse
Bächelsgasse 5, , HessePublic transport 2 minutes of walkingFor rent is a freshly renovated 3-room apartment located in the central old-town area of Bad Camberg. The apartment impresses with its modern layout and high-quality fittings.
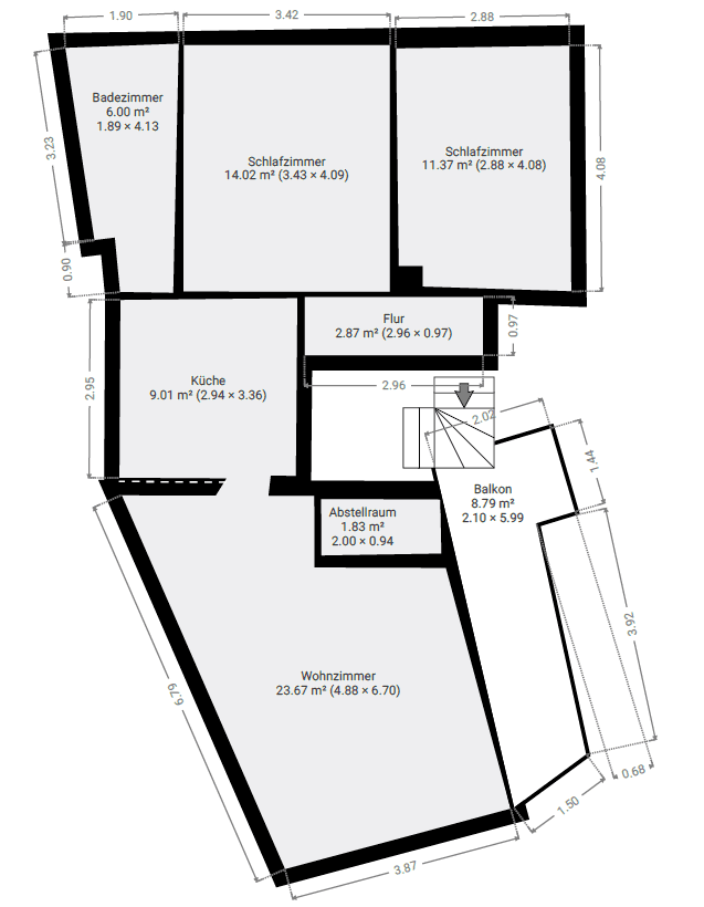
- Bright living area of approximately 78 m²
- New Nobilia fitted kitchen
- Open passage from the kitchen to the living room
- Bedroom with direct access to the bathroom
- Sunny balcony for relaxing
- Modern daylight bathroom
- All rooms feature brightness and an exquisitely refurbished hardwood floor
Freshly renovated – available for immediate move-in.
The apartment is situated in the historic old town of Bad Camberg. Shops, restaurants, doctors, schools, and public transportation are conveniently within walking distance.
- Nobilia fitted kitchen
- Hardwood floor
- Freshly renovated bathroom
Property characteristics
| Age | Over 5050 years |
|---|---|
| Condition | After reconstruction |
| Floor | 1. floor |
| Usable area | 78 m² |
| Available from | 26/10/2025 |
|---|---|
| Layout | 3+1 |
| Listing ID | 955868 |
| Price per unit | €12 / m2 |
What does this listing have to offer?
| Balcony |
| MHD 2 minutes on foot |
What you will find nearby
Still looking for the right one?
Set up a watchdog. You will receive a summary of your customized offers 1 time a day by email. With the Premium profile, you have 5 watchdogs at your fingertips and when something comes up, they notify you immediately.













