
Flat for sale 3+1 • 64 m² without real estateKollárova, Písek - Písek, Jihočeský Region
Kollárova, Písek - Písek, Jihočeský RegionPublic transport 3 minutes of walking • Partially equipped • Lift • Parking • Balcony 7.22 m² • Cellar 2.48 m²Žádáme RK aby nás nekontaktovaly s nabídkou k zastoupení.
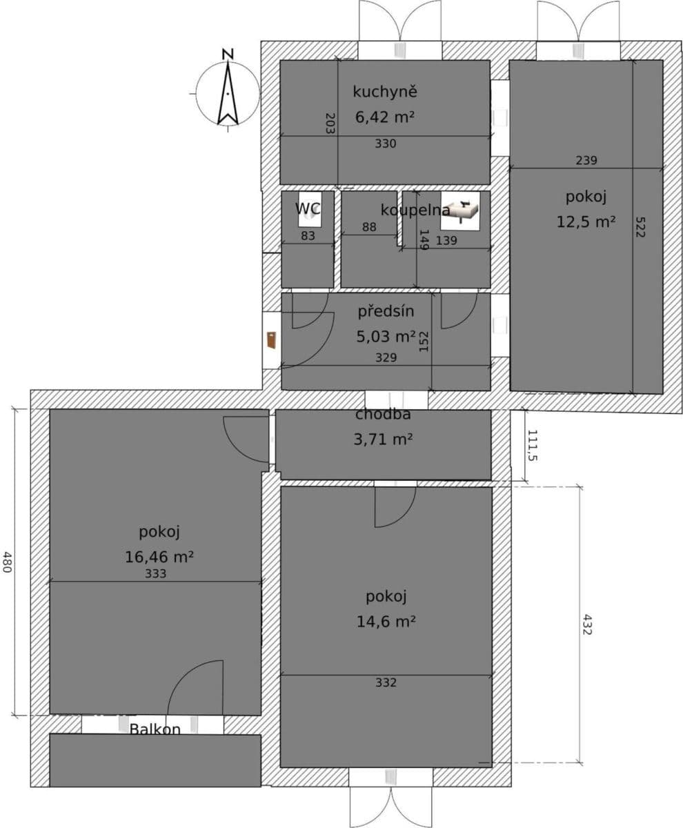
Jako přímý majitel nabízím k prodeji byt 3+1 o výměře 64 m² ve třetím patře cihlového domu s výtahem. Navenek nenápadný dům v Kollárově ulici je pečlivě udržovaný a v docházkové vzdálenosti od centra města a veškeré občanské vybavenosti. Kuchyň a obývací pokoj jsou situovány do ulice, ale oba pokoje mají výhled do vnitrobloku plného zeleně a na Píseckou věž.
Byt prošel kvalitní rekonstrukcí – má dvě ložnice, obývací pokoj, koupelnu, samostatné WC a kuchyň vyrobenou truhlářem na míru a vybavenou kvalitními spotřebiči.
Obývací místnosti mají všechny parketové podlahy, v případě dětského pokoje momentálně zakryto kobercem. Kuchyň, předsíň a chodbička mají vinylové podlahy. Koupelna je obložena kvalitním materiálem Rako Defile, stejně tak jsou kvalitní zařizovací předměty.
K bytu patří prostorný balkon (7,2 m²), ideální pro ranní kávu, a sklep (2,5 m²), který nabízí další úložný prostor.
V domě je také možnost používat kolárnu. Dvůr uvnitř vnitrobloku je rozsáhlý a umožňuje nejen parkování ale poskytuje prostor i pro další činností (hraní s dětmi, pikniky apod.).
S neustále stoupající hustotou silničního provozu je neocenitelná výhoda možnost parkování v uzavřeném dvoře. Byt je v osobním vlastnictví. Energetický štítek budovy: G (typické pro starší zástavbu).
Property characteristics
| Age | 30 - 50 years |
|---|---|
| Condition | After reconstruction |
| Layout | 3+1 |
| Floor | 3. floor out of 5 |
| Heating | Distance |
| Ownership | Personal |
| Location | Centre |
| Price per unit | CZK 90,625 / m2 |
| Available from | 15/11/2025 |
|---|---|
| Building construction | Brick |
| Fully furnished | Partly |
| Design | Standard |
| Listing ID | 955364 |
| EPC | G - Extremely uneconomical |
| Usable area | 64 m² |
Are you choosing a apartment?
Make sure you have all the important information!
What does this listing have to offer?
| Balcony: 7.22 m² | |
| Lift | |
| MHD 3 minutes on foot |
| Basement: 2.48 m² | |
| Parking |
What you will find nearby
Still looking for the right one?
Set up a watchdog. You will receive a summary of your customized offers 1 time a day by email. With the Premium profile, you have 5 watchdogs at your fingertips and when something comes up, they notify you immediately.



















