Commercial property to rent • 270 m² without real estateWartburgstr. 5, , Thuringia
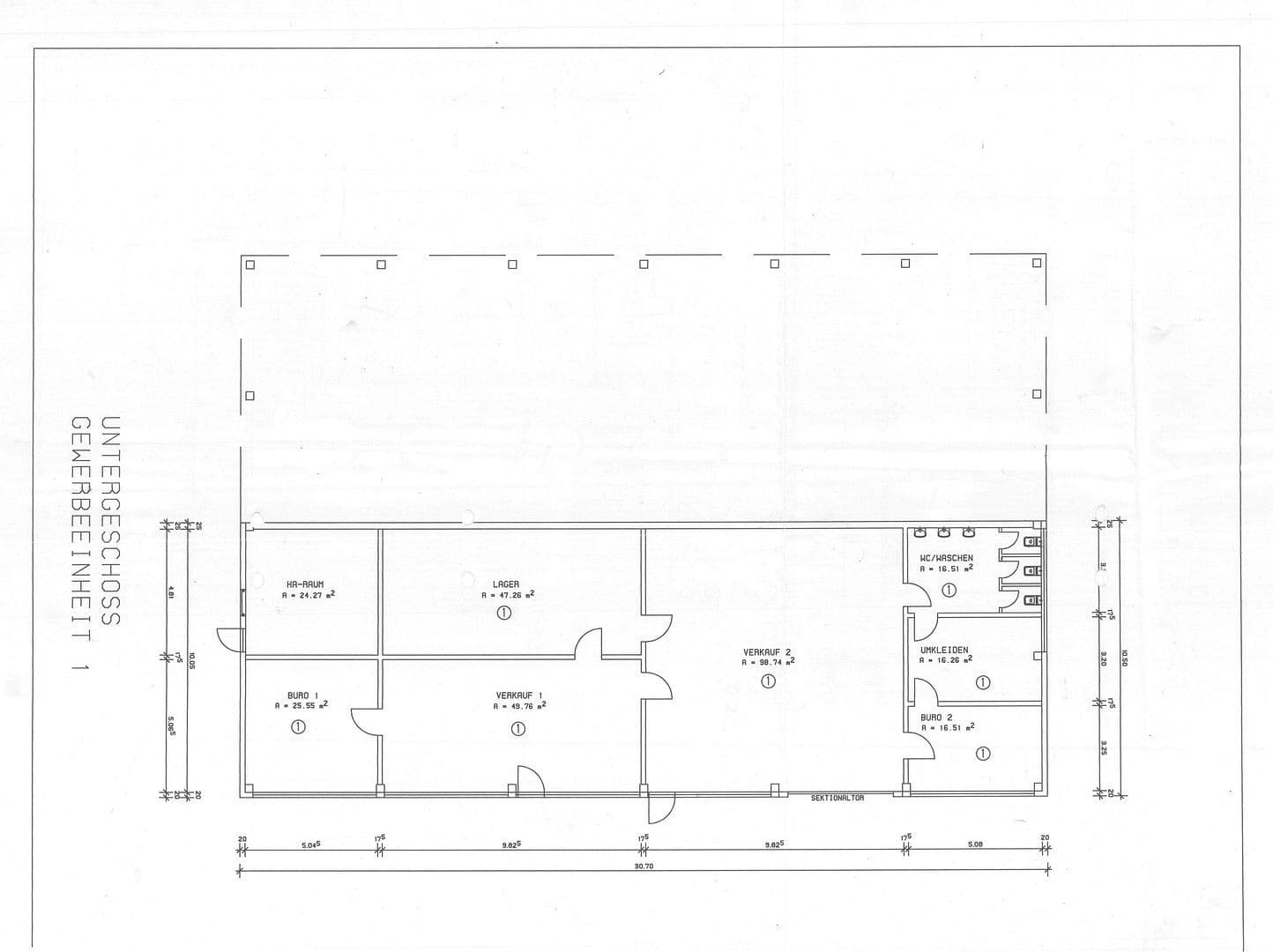
Wartburgstr. 5, , ThuringiaPublic transport 1 minute of walkingThe offered commercial unit is located in a building complex constructed in 1992 on the ground floor and comprises approximately 270 m² of usable space. On an associated plot of land of about 1,000 m², the future tenant also has access to roughly 300 m² of lawn area (NOT INCLUDED IN THE RENT. PRICE: €1.00/m²) and approximately 300 m² of paved parking spaces. The commercial unit is on the ground floor and is completely separated from two other leased commercial units (a sports and physiotherapy studio + a toolmaker) that are situated at the back of the building. The usable area is divided into 7 rooms:
1. Sanitary room, approx. 16.5 m², with 3 toilets and 3 washbasins
2. Changing room, approx. 16 m²
3. Office/kitchen, approx. 16.5 m², with a tiled backsplash and connections for a kitchen
4. Exhibition/production/sales area, approx. 100 m², with a fully glazed front window
5. Exhibition/sales/consultation area, approx. 50 m², with a fully glazed front window
6. Storage/production area, approx. 50 m²
7. Office/sales area, approx. 25 m²
The approximately 30 m of glazed front windows and other windows provide an unobstructed view of undeveloped countryside. The commercial unit is highly versatile due to its layout, location, and facilities. Up to now, the premises have been used as sales and exhibition areas for furniture.
Facilities:
The offered commercial spaces are located in Stedtfeld OT Eisenach/Gewerbepark. The rooms are directly located on Oberlandstr./Wartburgstr., making them very central. The nearest junctions of BA 4 are Eisenach-West and Herleshausen (approximately an 8-minute drive). The bus stop is located right next to the commercial property. The brand new bicycle path (50 m away) leads along the river to Eisenach.
Floor finishes include laminate and tiles.
There are outdoor awnings and indoor blinds.
Heating: District heating.
Hot water: Instant water heater or district heating boiler.
Fiber-optic cables have already been laid into the building and will be connected soon.
A newly installed photovoltaic system with an output of approximately 30 kW offers the possibility of low-cost electricity.
Property characteristics
| Age | Over 5050 years |
|---|---|
| Listing ID | 955267 |
| Land space | 1,000 m² |
| Condition | Good |
|---|---|
| Land non-residential space | 270 m² |
| Price per unit | €6 / m2 |
What does this listing have to offer?
| MHD 1 minute on foot |
What you will find nearby
Still looking for the right one?
Set up a watchdog. You will receive a summary of your customized offers 1 time a day by email. With the Premium profile, you have 5 watchdogs at your fingertips and when something comes up, they notify you immediately.



























