
Flat to rent 2 bedroom • 41 m² without real estateLutherstr.6 Magedburg Sudenburg Sachsen-Anhalt 39882
Lutherstr.6 Magedburg Sudenburg Sachsen-Anhalt 39882Public transport 6 minutes of walkingThis great 2-room apartment has been freshly renovated and is currently being fully furnished. In this way, for example, a young couple can move into a ready-made nest without having to worry about furnishing it themselves. Even for those living alone, this apartment can be a great start.
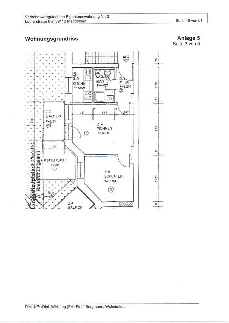
Photos of the fully furnished apartment will follow soon. You can already get a first impression from the pictures.
The bathroom is equipped with a mirrored cabinet, shower, and washing machine. The living room is currently being furnished with a dining table, sofa, cabinet, and shelves, and from there you have direct access to your own balcony.
The fitted kitchen naturally includes an oven, refrigerator, and an extractor hood.
The bedroom features a king-size double bed and will also receive matching wardrobes. The apartment is located on the raised ground floor of the rear building in a quiet residential area, ensuring that no street traffic or other noises from the street are audible.
Within walking distance, you'll find everything you need for daily life (supermarket, discount store, pharmacy, primary school, doctor, fitness center). Bus and tram stops are reachable in less than 10 minutes.
Since the apartment is currently being furnished, the photos are not final yet. The planning layout gives you an approximate idea of what it will eventually look like.
Property characteristics
| Age | Over 5050 years |
|---|---|
| Condition | After reconstruction |
| Listing ID | 955147 |
| Price per unit | €11 / m2 |
| Available from | 25/10/2025 |
|---|---|
| Layout | 2 bedroom |
| Usable area | 41 m² |
What does this listing have to offer?
| Balcony | |
| MHD 6 minutes on foot |
| Basement |
What you will find nearby
Still looking for the right one?
Set up a watchdog. You will receive a summary of your customized offers 1 time a day by email. With the Premium profile, you have 5 watchdogs at your fingertips and when something comes up, they notify you immediately.















