
Flat to rent 2 bedroom • 57 m² without real estateAm Brüggeberge 14, , Lower Saxony
Am Brüggeberge 14, , Lower SaxonyPublic transport 5 minutes of walking • LiftApartment 11 – exclusive, spacious, light-filled
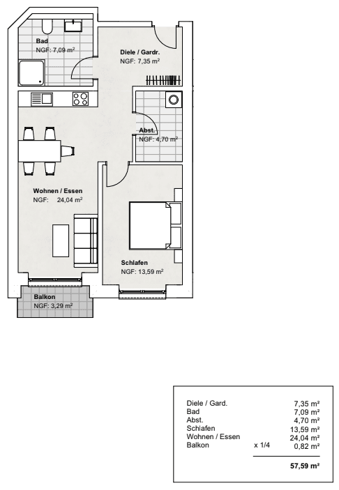
The new construction project offers modern living space with a high quality of life. Each apartment features an open living and dining area with an adjacent kitchen, a modern bathroom with either a shower or bathtub, as well as a separate bedroom. Additionally, a practical storage room within the apartment is available—a real bonus for everyday life and organization.
The apartments are located on the 1st and 2nd floors and come with spacious balconies facing southwest—ideal for relaxing in the greenery.
Thanks to the barrier-reduced design, the elevator in the building, and low-threshold entryways, the property is also perfectly suited for older people or those with limited mobility. The fittings are modern, low-maintenance, and designed to create a pleasant living environment.
In the outdoor area, well-maintained paths, predominantly covered parking spaces with infrastructure prepared for e-mobility add extra comfort and sustainability.
Fümmelse is only a few minutes by car from the center of Wolfenbüttel and at the same time offers all the advantages of a quiet residential environment. The area is characterized by single-family homes, small multi-family houses, and a friendly neighborhood – ideal for families with children and for those enjoying their retirement in a pleasant atmosphere.
All the essential facilities are in the immediate vicinity:
- A primary school is reachable within a few minutes’ walk
- A kindergarten and an ASB day care center are located right in the neighborhood
- A playground is situated opposite the property – perfect for young families
- Shopping opportunities, doctors, and other service providers are easily accessible
- Very good connections to downtown Wolfenbüttel and the B79
In Fümmelse, you will find a quiet residential location with all the advantages of being close to the city – nestled in a green environment that offers a great quality of life.
Bright rooms with modern layouts
Barrier-reduced access and an elevator in the building
Modern bathroom with a shower or bathtub
Storage room within the apartment
First occupancy, high-quality floor and wall coverings
Underfloor heating
Interested? We would be happy to send you a detailed exposé with all the information on the apartment, floor plans, and lease conditions – just send us a short message.
Property characteristics
| Age | Over 5050 years |
|---|---|
| Condition | New-build |
| Listing ID | 953677 |
| Price per unit | €14 / m2 |
| Available from | 01/01/2026 |
|---|---|
| Layout | 2 bedroom |
| Usable area | 57 m² |
What does this listing have to offer?
| Lift | |
| Terrace |
| MHD 5 minutes on foot |
What you will find nearby
Still looking for the right one?
Set up a watchdog. You will receive a summary of your customized offers 1 time a day by email. With the Premium profile, you have 5 watchdogs at your fingertips and when something comes up, they notify you immediately.









