
Flat to rent 3+1 • 83 m² without real estateAm Brüggeberge 14, , Lower Saxony
Am Brüggeberge 14, , Lower SaxonyPublic transport 5 minutes of walking • LiftApartment 1 – Spacious Living for Couples, Families, and Seniors
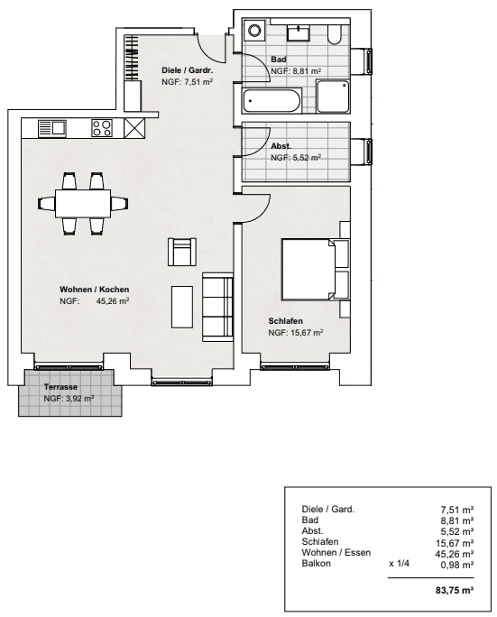
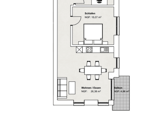
The new construction project offers modern living space with a high quality of stay. Every apartment features an open living and dining area with an adjoining kitchen, a modern bathroom with either a shower or a bathtub, as well as one to two bright, sunlight-filled bedrooms. In addition, a practical storage room is available within the apartment – a real bonus for everyday life and organization.
The apartments are located on the 1st and 2nd floors and feature generous balconies that face southwest – ideal for relaxing in a green setting. The ground floor apartments feature terraces that invite you to linger.
Thanks to the barrier-reduced design, the building’s elevator, and step-free access, the property is also ideally suited for elderly people or those with limited mobility. The fittings are modern, easy to maintain, and designed to create a pleasant living atmosphere.
In the exterior area, well-kept paths, mostly covered parking spaces with prepared infrastructure for e-mobility provide additional comfort and sustainability.
Fümmelse is just a few minutes’ drive from the center of Wolfenbüttel while offering all the advantages of a quiet residential environment. The area is characterized by single-family homes, small multi-family houses, and a friendly neighborhood – perfect for families with children and for people looking to enjoy their retirement in a pleasant atmosphere.
All important facilities are located in the immediate vicinity:
- An elementary school is reachable within a few minutes on foot.
- A kindergarten and a day care center of the ASB are located right in the neighborhood.
- A playground is located opposite the property – perfect for young families.
- Shopping options, doctors, and other service providers are easily accessible.
- Very good connections to downtown Wolfenbüttel and the B79.
In Fümmelse you will find a quiet residential area with all the advantages of being near the city – nestled in a green environment with plenty of quality of life.
Bright rooms with modern floor plans
Barrier-reduced access and an elevator in the building
Modern bathroom with shower or bathtub
Storage room within the apartment
First occupancy, high-quality floor and wall finishes
Underfloor heating
Interested? We would be happy to send you a detailed exposé with all the information on the apartment, floor plan, and rental conditions – just send us a short message.
Property characteristics
| Age | Over 5050 years |
|---|---|
| Layout | 3+1 |
| Usable area | 83 m² |
| Available from | 01/01/2026 |
|---|---|
| Listing ID | 953676 |
| Price per unit | €13 / m2 |
What does this listing have to offer?
| Balcony | |
| MHD 5 minutes on foot |
| Lift | |
| Terrace |
What you will find nearby
Still looking for the right one?
Set up a watchdog. You will receive a summary of your customized offers 1 time a day by email. With the Premium profile, you have 5 watchdogs at your fingertips and when something comes up, they notify you immediately.








