House for sale 6+kk • 191 m² without real estate, Baden-Württemberg
, Baden-WürttembergPublic transport 1 minute of walking • ParkingYour new home
In a popular family residential area in Leingarten, we can offer you this beautiful semi-detached house with an above-average amount of space and rooms.
The semi-detached house and ancillary apartment were renovated in 2017. In 2022, the façade was repainted.
The place to feel at home
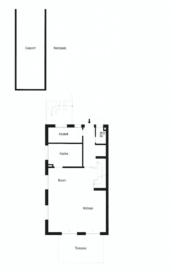
The house was built in 1999/2000 with a total of approximately 190.52 m² of living space and is located on a quiet residential street.
Up to the attic, you can make use of up to 5 bedrooms and one bathroom as well as a kitchen, a spacious storage room, the guest WC, and the large, bright living/dining area spread over three floors.
In addition, if needed, a small 1.5-room ancillary apartment in the basement can be rented separately.
You will appreciate a south-facing garden with a large sun terrace that invites you to relax in the greenery.
Leingarten is a popular and attractive town with currently around 12,500 inhabitants. Its proximity to Heilbronn with the S-Bahn connection, as well as the excellent infrastructure, offers a high quality of living.
Set in a scenically attractive area around the Heuchelberg, with viticulture and many sports and recreational facilities as well as an active community life, Leingarten guarantees a high leisure value.
Numerous doctors, pharmacies, and health and care facilities are located in Leingarten. In addition, several bakeries, butcher shops, supermarkets, and discount stores provide excellent services.
Families benefit from 10 kindergartens, two primary schools, as well as a comprehensive school.
Equipment
- Fitted kitchen
- Water softening system (2018)
- 1 carport with extension
- 2 parking spaces
- Prepared for solar thermal
Ancillary apartment approx. 31 m²
- Separate entrance
- Kitchenette
- Storage room with space for a shelf, washing machine, and dryer
- Living/sleeping area
- Bathroom
The ancillary apartment is currently rented.
For a viewing, we ask for a financing confirmation in advance and thank you for your understanding.
If you have any further questions, please just get in touch.
Property characteristics
| Age | Over 5050 years |
|---|---|
| Layout | 6+kk |
| EPC | B - Very economical |
| Land space | 256 m² |
| Price per unit | €3,636 / m2 |
| Condition | Good |
|---|---|
| Listing ID | 952478 |
| Usable area | 191 m² |
| Total floors | 3 |
What does this listing have to offer?
| Basement | |
| MHD 1 minute on foot |
| Parking | |
| Terrace |
What you will find nearby
Still looking for the right one?
Set up a watchdog. You will receive a summary of your customized offers 1 time a day by email. With the Premium profile, you have 5 watchdogs at your fingertips and when something comes up, they notify you immediately.





