
This listing is no longer active
House for sale 4+1 • 98 m² without real estateKreisauer Straße 3 Memmingen Memmingen Bayern 87700
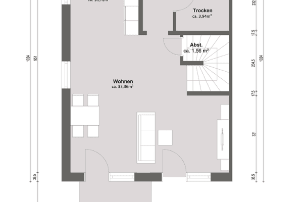
Kreisauer Straße 3 Memmingen Memmingen Bayern 87700Public transport less than a minute of walking • ParkingThe offered terraced townhouse on Kreisauer Straße in Memmingen features a living area of approximately 100 m² spread over two floors. The floor plan is clearly structured and offers an open living and dining area on the ground floor with access to the south terrace and garden. On the upper floor, the bedrooms and a modern bathroom are located.
In front of the house there is a carport parking space as well as several public parking spaces directly opposite.
The terraced townhouse is situated in the Römersiedlung, a popular and family-friendly residential area in the south of Memmingen. In the surrounding neighborhood, there are primarily single-family and two-family houses.
The street is traffic-calmed and free of through traffic.
Directly adjacent is a forest area, and in the immediate vicinity there are shops, schools, and public transportation.
The terraced townhouse is equipped with triple-glazed plastic windows and electric shutters. In the living areas, there is underfloor heating with individual room control. The floor coverings consist of parquet, laminate or vinyl, with tiles in the bathroom and WC. The construction corresponds to the KfW-40 standard and utilizes an air-to-water heat pump.
Imprint:
Immo-Team Allgäu GmbH
Managing Director: Georg Merk
Gewerbestraße 8
87787 Wolfertschwenden
Phone: 08334 / 9894930
Email: info@immoteam.info
Website: www.immoteam.info
Managing Director: Georg Merk
Legal Form: Limited Liability Company
Registry Court: Local Court of Memmingen
Register Number: HRB 18757
Registered Office of the GmbH: 87787 Wolfertschwenden
VAT Identification Number in accordance with § 27 a of the German VAT Act: DE 297 133 487
Property characteristics
| Age | Over 5050 years |
|---|---|
| Condition | New-build |
| Listing ID | 950834 |
| Land space | 136 m² |
| Price per unit | €5,092 / m2 |
| Available from | 30/09/2026 |
|---|---|
| Layout | 4+1 |
| Usable area | 98 m² |
| Total floors | 2 |
What does this listing have to offer?
| Parking | |
| Terrace |
| MHD 0 minutes on foot |
What you will find nearby
Still looking for the right one?
Set up a watchdog. You will receive a summary of your customized offers 1 time a day by email. With the Premium profile, you have 5 watchdogs at your fingertips and when something comes up, they notify you immediately.