
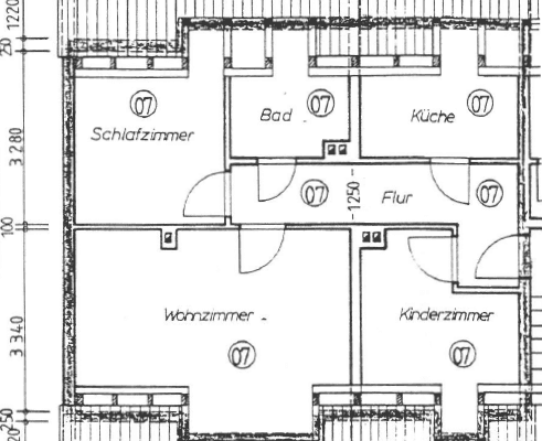
Flat to rent 3+1 • 61 m² without real estateKarl-Marx-Str. 1b, , Saxony
Karl-Marx-Str. 1b, , SaxonyPublic transport 2 minutes of walkingWe present to you a charming 3-room apartment in a well-maintained multi-family building from the 1960s, ideal for a family with one child. The building spans four residential floors and offers a pleasant living atmosphere in Delitzsch. A particular highlight is the community garden with a practical laundry area, providing space for outdoor relaxation.
The property impresses with its central location in Delitzsch, which offers excellent access to public transportation and thus ensures hassle-free reach to the city center and other destinations. Despite its proximity to the main road, you can enjoy a beautiful view of greenery that creates a welcome oasis of calm in an urban environment. The combination of a central location and a nature-oriented ambiance makes this apartment particularly attractive.
This freshly renovated apartment stands out through its high-quality, modern features. The bathroom is equipped with a bathtub that also serves as a shower and features a towel radiator for added comfort. Attractive laminate flooring with a wood look has been installed in all rooms, creating a warm and inviting atmosphere. For optimal sleep comfort and privacy, external blackout blinds are installed in every room. Conveniently, a washing machine can be placed directly in the bathroom, in the kitchen, or in the communal laundry room in the basement. The current apartment renovation includes the complete redesign of the bathroom, renewal of the electrical installations, partial reinstallation of radiators, wallpapering of the walls, as well as new flooring and door installations, ensuring that the apartment is handed over in a nearly new condition.
DZI GmbH
Am Wallgraben 33
04509 Delitzsch
District Court Leipzig
HRB 44496
Managing Director Florian Thiel
florian.thiel.dzi@web.de
Property characteristics
Age | Over 5050 years |
---|---|
Condition | After reconstruction |
Floor | 1. floor out of 4 |
EPC | C - Economical |
Price per unit | €9 / m2 |
Available from | 14/10/2025 |
---|---|
Layout | 3+1 |
Listing ID | 950164 |
Usable area | 61 m² |
What does this listing have to offer?
Basement |
MHD 2 minutes on foot |
What you will find nearby
Still looking for the right one?
Set up a watchdog. You will receive a summary of your customized offers 1 time a day by email. With the Premium profile, you have 5 watchdogs at your fingertips and when something comes up, they notify you immediately.