
Flat to rent 2 bedroom • 71 m² without real estateFrankfurter Str. 147, , Hesse
Frankfurter Str. 147, , HessePublic transport 2 minutes of walking • Lift • ParkingLiving in South Frankfurt – the Perfect Choice!
Located conveniently for transport to Frankfurt City and the airport, and in the very central location (Frankfurter Strasse) of Neu-Isenburg.
Allocation Criteria of the Property Management:
- Maximum 2 persons
- Sufficient income from employment, i.e. full-time work with a combined net income of at least €2,000
- Soon-to-commence tenancy
- No negative credit history
Frankfurter Strasse in Neu-Isenburg near Hugenottenhalle / Isenburg-Zentrum, meaning plenty of shopping and nightlife options are within short walking distance.
Neu Isenburg is not only in a good location in the south of Frankfurt (separated from Sachsenhausen only by the Stadtwald), but it also delights with its convenient transport connections:
Only a 10-minute drive to the airport and 500m to the tram connection to Frankfurt. S-Bahn connections to Frankfurt and Darmstadt. You quickly get on the highways A3, A5 and A661 or reach the airport!
This apartment is located in a building with an elevator and caretaker service.
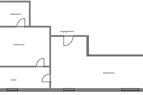
- Living room with open kitchen area, 25m²
- Fitted kitchen and/or washing machine can be taken over for a fee.
- Bedroom of 19m² plus a small hallway (4m²) for a wardrobe
- Hallway with seating/spot area (3m²)
- All living areas have laminate flooring
- Modern bathrooms with white tiles, the larger (5m²) with a bathtub, daylight and washing machine connection. The smaller (3m²) with a toilet and shower, also usable as a guest WC
In addition, there is a large balcony facing the quiet inner courtyard (accessible from the living room) of around 10m² in an ideal southwest direction to enjoy your evenings.
Despite the central location, parking is not a problem. For €50 per month, you can rent a parking space in the inner courtyard.
The lease contract provides for a minimum term of 18 months. The base rent will be increased by 1.5% annually, and further increases in the base rent are excluded in the future.
All information provided about the apartment is from the landlord. Despite commercial diligence, no guarantee can be given. Typographical errors, mistakes, and subletting reservations remain reserved. By submitting an inquiry about the property, the interested party expressly agrees to be contacted via email, mail, or telephone by us. Our General Terms and Conditions apply, which can be viewed on our homepage www.strack-immobilien.de
Legal Notice:
Dr. Strack-Immobilien, Rupt sur Moselle Str. 12, 55271 Stadecken-Elsheim, Fax: 06130-940811, E-Mail: info(a)strack-immobilien.de, Homepage: http://www.strack-immobilien.de, VAT-ID: DE247438718, Authorized representative: Kurt Strack
Responsible supervisory authority for activities under § 34 c GewO: Verbandsgemeinde Nieder-Olm, Pariser Straße 110, 55268 Nieder-Olm
Consumer information on alternative dispute resolution (Art 14 (1) ODR-VO and § 36 VSBG): The European Union’s online dispute resolution platform (the so-called “ODR platform”) for consumers is available at the following link: http://ec.europa.eu/consumers/odr
We do not participate in dispute resolution proceedings before a consumer arbitration board.
Property characteristics
Age | Over 5050 years |
---|---|
Condition | After reconstruction |
Floor | 4. floor out of 5 |
Usable area | 71 m² |
Available from | 01/11/2025 |
---|---|
Layout | 2 bedroom |
Listing ID | 947622 |
Price per unit | €12 / m2 |
What does this listing have to offer?
Balcony | |
Parking |
Lift | |
MHD 2 minutes on foot |
What you will find nearby
Still looking for the right one?
Set up a watchdog. You will receive a summary of your customized offers 1 time a day by email. With the Premium profile, you have 5 watchdogs at your fingertips and when something comes up, they notify you immediately.