
This listing is no longer active
Flat for sale 3+1 • 110 m² without real estateMünchen Isarvorstadt Bayern 80337
München Isarvorstadt Bayern 80337Public transport less than a minute of walkingAttic Apartment with Penthouse Flair – with Balcony & Greened HOA Courtyard, Offering More Than “Four Walls.”
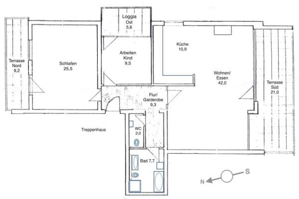
Bright apartment on the 4th floor plus a green courtyard in a central location in Munich’s Isarvorstadt on the trendy Maistraße. It boasts 110 square meters of living space according to WoFlV on a usable area of 120 m² (due to the slight roof pitch of the Mansard roof) with a flexibly arranged floor plan: three rooms, a spacious combined living-dining room featuring a custom carpentry kitchen block, a bathroom with toilet and washing machine, a guest toilet, hallway, storage room, balcony, and a basement compartment. The room geometry is unique – with exposed beams and supports featuring decorative headbands as design elements. Only a few interior walls are load-bearing (non-load-bearing walls can be replaced, repositioned, or opened up as needed).
The heart of this quiet apartment is its 35-square-meter living-dining room, which is both charming and cozy. The daylight bathroom is equipped with a shower-bathtub. The balcony offers a 240° panoramic view of the surrounding rooftop landscape of the neighborhood, looking out onto Maistraße and the courtyard – and there’s an additional plus: a greened HOA courtyard featuring seating areas, play zones, and bicycle parking.
A subterranean parking space next door can be rented starting in 2026 (following the current renovation), and car-sharing parking spaces are also very nearby.
The location blends urban living with a relaxed retreat right in the heart of the city – simply unbeatable.
Micro-Location & Orientation: Sunlight from the east-south-west; a party wall to the neighbor in the north, and a quiet inner courtyard oasis.
Isarvorstadt has evolved into a much sought-after residential area for a younger demographic. The central city location combined with proximity to the Isar River and adjacent to the Glockenbach and Schlachthof districts makes the area very popular.
On the vibrant yet remarkably quiet Maistraße you’ll find restaurants, pubs, cafés, shops, and courtyard stores – and within a few minutes’ walk lies the Viktualienmarkt. Doctors and daily services are abundantly available.
Daycare centers, kindergartens, after-school care facilities, and all schools (from primary to high school) are within walking distance. Bus and tram lines, subway stops, and the central hubs of Marienplatz, Viktualienmarkt, and Isartor are just minutes away on foot.
Macro-Location: Central Munich.
Preliminary Note: The owner was young and passed away unexpectedly; the heirs are now selling. The attic apartment is in overall well-maintained condition, although it has not been prepped for an ownership change due to the impending quick sale. Minor updates would further enhance the beautiful apartment (e.g., replacing laminate flooring in two children’s rooms with hardwood parquet—as in the other living areas, upgrading the guest toilet, and improving the DFF) – these have already been factored into the pricing (with a reduction of €40,000). Otherwise, the apartment features partly high-quality fittings and details: parquet/hardwood flooring, custom-built installations in the kitchen and bathroom, Miele appliances, etc.
Energy & Indoor Climate: Flat gas boiler Vaillant atmoTEC (from 2016), with a gas consumption of about 12,000 kWh per annum = Energy Efficiency Class C (for the attic apartment only) = moderate heating costs. NOTE: The energy certificate for the entire building at Maistraße 32, comprising a total of 5 units, is in preparation with the collected information on its way. The energy certificate for the building “Maistraße 32” will be presented during viewings.
Balcony PV system on the roof. Fiber optic connectivity in the building. Moderate service charges with sufficient reserves (without any overdue renovations).
Thermal upgrades are worth considering, though not essential (e.g., renewing some of the roof window sashes with modern triple glazing, or adding additional blown insulation in the roof apex): The attic apartment – including the top floor, which serves as a common HOA area – is insulated. The indoor climate is good, though during prolonged heat periods it can get warm under the metal roof. In addition to enhancing heat protection, a cross ventilation in the morning and/or a portable air conditioner can be helpful on the few particularly hot days each year.
Please note: inquiries without name, address, and telephone number will not receive a response; no viewing appointments will be scheduled without a brief note regarding planned financing; no viewings without an appointment – please respect the HOA’s privacy.
Property characteristics
Age | Over 5050 years |
---|---|
Layout | 3+1 |
Listing ID | 946601 |
Usable area | 110 m² |
Condition | Good |
---|---|
Floor | 4. floor out of 1 |
EPC | C - Economical |
Price per unit | €11,636 / m2 |
What does this listing have to offer?
Balcony | |
MHD 0 minutes on foot |
Basement |
What you will find nearby
Still looking for the right one?
Set up a watchdog. You will receive a summary of your customized offers 1 time a day by email. With the Premium profile, you have 5 watchdogs at your fingertips and when something comes up, they notify you immediately.