
Plot for sale • 1630 m² without real estateStrančice - Předboř u Prahy, Středočeský Region
Strančice - Předboř u Prahy, Středočeský RegionPublic transport less than a minute of walkingProdej stavebního pozemku včetně platného SP na stavbu rodinného domu , 10min autem na metro Chodov,lze na hypotéku, znalecký posudek k dispozici, včetně povolení přípojek a domovních rozvodů vody, kanalizace, elektro, rozvodů teplovodního podlahového vytápění, stavby studny, stavby žumpy, stavby akumulační jímky dešťových vod opatřené přepadem do vsaku.
V současnosti RD nelze napojit na obecní kanalizaci, plyn ani vodovodní řád.
Platné věcné břemeno fa „ČEZ“ s provozem distribuce elektřiny pro dům již na pozemku zbudován.
Platný projekt vrtané studny a hydrologické posouzení včetně platného povolení SÚ.
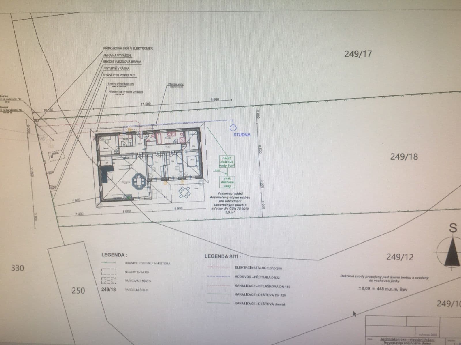
Platná projektová dokumentace novostavby RD půdorysně ve tvaru „L“ o rozměrech 17,5 x 11,5 m.
Přístup přes obecní komunikaci parc.č. 330, kat.území Předboř u Prahy, obec Strančice, včetně povolení obce s vjezdem.
Vlastník prodává pozemek parc.č. 249/18 o výměře 1630 m2, katastrální území Předboř u Prahy, obec Strančice.
Kupní cena k jednání je 4. 750.000,- Kč.
Cena je stanovena s ohledem na náklady pro kupujícího – stavebníka na sítě, které jsou nezbytné při výstavbě.
Podklady budou na základě tel.dohody, do mailu zaslány.
Property characteristics
| Available from | 15/09/2025 |
|---|---|
| Land type | Building |
| Location | Quiet area |
| Price per unit | CZK 2,914 / m2 |
| Listing ID | 945022 |
|---|---|
| Ownership | Personal |
| Land space | 1,630 m² |
What does this listing have to offer?
| MHD 0 minutes on foot |
What you will find nearby
Still looking for the right one?
Set up a watchdog. You will receive a summary of your customized offers 1 time a day by email. With the Premium profile, you have 5 watchdogs at your fingertips and when something comes up, they notify you immediately.












