
House for sale • 175 m² without real estateMainz Mainz Rheinland-Pfalz 55124
*** Generous Living in the Historic Heart of Gonsenheim! ***
This sought-after single-family house has been transformed into a modern, open home with great attention to detail and thoughtful planning. With a total of 9 rooms, the house is ideally suited for families, couples, or even as a multi-generation home.
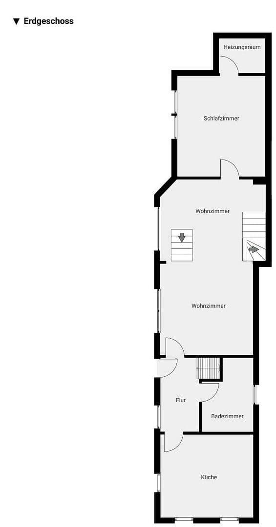
The ground floor impresses with a large living room, a bright kitchen, and a modern bathroom. An additional room can be flexibly used as a guest room, office, or bedroom. Here, you also have access to the secluded, spacious, and sunny courtyard garden, where you can enjoy quality time with your loved ones.
On the first floor there are three bedrooms, an additional gallery room, and a shower room.
The attic offers three further rooms that can serve as bedrooms or workspaces.
The typical vaulted cellar is a real gem – ideal for wine lovers or as a storage room.
This gem is a rarity in the much-desired Gonsenheim location and looks forward to meeting you!
This house is situated in the coveted historic heart of Gonsenheim, known for its high quality of life, excellent infrastructure, and green surroundings. Gonsenheim combines the charm of an established residential area with proximity to downtown Mainz and first-class transport connections.
The micro-location is perfect for families: kindergartens as well as primary and secondary schools are partly within walking distance or just a few stops away. The Gonsenheim town center, just two blocks away, offers its own small downtown with shops, boutiques, restaurants, and supermarkets – a charming environment that makes life here especially livable!
Also, the Mainz University of Applied Sciences, Johannes Gutenberg University, and the University Hospital are quickly reachable thanks to direct public transport connections.
For nature lovers, the nearby Gonsenheim Forest nature reserve offers expansive walking and cycling paths, as well as the popular Mainz-Gonsenheim Wildlife Park. In addition, the indoor and outdoor swimming pools as well as the district sports facility are conveniently reachable by bike.
Playgrounds and a youth center are also easily accessible in the neighborhood.
OPTIMAL TRANSPORT LINKS:
A bus stop is within walking distance, and tram lines 50/51 connect Gonsenheim directly with downtown Mainz and the main train station. The house is also ideally located for car drivers – highways A60 and A643 can be reached within a few minutes and offer quick connections to Wiesbaden, Frankfurt, and the entire Rhine-Main area.
Thanks to the excellent infrastructure and superb transport connections in a natural setting, this home offers the perfect combination of peaceful living and urban lifestyle.
+++ LIKE NEW: First occupancy after complete renovation
+++ VERSATILE: Highly flexible floor plan for all needs
+++ LOCATION: Quiet yet excellently connected
+++ COST- and STRESS-SAVING: No brokerage fees and no renovation expenses
Property characteristics
| Listing ID | 944313 |
|---|---|
| Land space | 284 m² |
| EPC | D - Less economical |
| Total floors | 3 |
| Usable area | 175 m² |
|---|---|
| Condition | After reconstruction |
| Age | Over 5050 years |
| Price per unit | €5,137 / m2 |
What does this listing have to offer?
| Terrace | |
| Parking |
| Basement | |
| MHD 3 minutes on foot |
What you will find nearby
Still looking for the right one?
Set up a watchdog. You will receive a summary of your customized offers 1 time a day by email. With the Premium profile, you have 5 watchdogs at your fingertips and when something comes up, they notify you immediately.















