
Flat for sale 2 bedroom • 54 m² without real estateSládkova, Úpice - Úpice, Královéhradecký Region
Sládkova, Úpice - Úpice, Královéhradecký RegionPartially equipped • Parking • Cellar 4 m²Prodej zděného bytu 2+1, 54 m² v osobním vlastnictví – po rekonstrukci, ihned k nastěhování
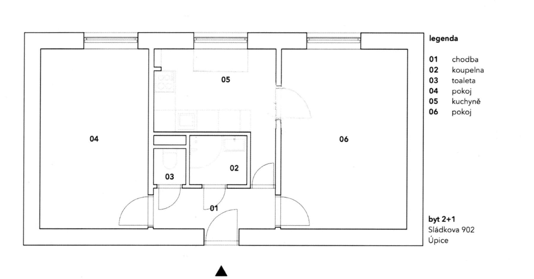
Nabízíme k prodeji světlý byt v klidné části města, v osobním vlastnictví, 2+1 o velikosti 54 m². Byt se nachází v kompletně zrekonstruovaném a zatepleném cihlovém domě. Byt je orientovaný na jih, což zaručuje dostatek denního světla po celý den.
Byt prošel rekonstrukcí – nové rozvody elektřiny v mědi, plastová okna, rozvody vody a odpadu v plastu. Nové vnitřní dveře a světla. Koupelna je moderně zrekonstruovaná, vybavená novým sprchovým koutem, umyvadlem a velkoformátovými obklady. Ohřev vody je zajištěn vlastním plynovým kotlem.
Kuchyň je vybavena novým kombinovaným sporákem (plyn + elektřina) a má, stejně jako zbytek bytu, dostatek úložných prostor. Obývací část a ložnice mají zrestaurované dřevěné parkety, které dodávají interiéru příjemný charakter.
K bytu náleží sklep o rozloze 4m². Možnost využívat společnou kolárnu (kola, koloběžky, kočárky).
Dům, v kterém se byt nachází, má novou fasádu, opravenou střechu, plastová okna a díky těmto úpravám nabízí nízké náklady na vytápění. Měsíční platba do fondu oprav činí pouhých 900,-Kč/měsíc.
BYT JE PŘIPRAVEN K OKAMŽITÉMU NASTĚHOVÁNÍ A UŽÍVÁNÍ - BEZ NUTNOSTI DALŠÍCH INVESTIC.
Prosíme, RK nevolat.
Výhody bytu:
- Zateplený cihlový dům po rekonstrukci
- Nízký fond oprav – pouze 900 Kč/měsíc
- Orientace na jih
- Vlastní plynový kotel
- Kompletně zrekonstruovaný byt
- K bytu náleží sklep o výměře 4 m²
- Možnost využívat společnou kolárnu (úložný prostor pro kola, koloběžky, kočárky)
- Klidná lokalita s veškerou občanskou vybaveností
Lokalita:
Byt se nachází ve vyhledávané a klidné čtvrti – v docházkové vzdálenosti je zastávka MHD, obchod s potravinami i lesopark hned za domem. Všechny potřebné služby jsou dostupné ve městě.
Neváhejte nás kontaktovat pro více informací nebo si rovnou domluvte prohlídku!
Property characteristics
| Available from | 02/09/2025 |
|---|---|
| Building construction | Brick |
| Fully furnished | Partly |
| Listing ID | 940161 |
| EPC | G - Extremely uneconomical |
| Usable area | 54 m² |
| Condition | Very good |
|---|---|
| Layout | 2 bedroom |
| Floor | 4. floor out of 4 |
| Ownership | Personal |
| Location | Quiet area |
| Price per unit | CZK 46,111 / m2 |
Are you choosing a apartment?
Make sure you have all the important information!
What does this listing have to offer?
| Basement: 4 m² |
| Parking |
What you will find nearby
Still looking for the right one?
Set up a watchdog. You will receive a summary of your customized offers 1 time a day by email. With the Premium profile, you have 5 watchdogs at your fingertips and when something comes up, they notify you immediately.








