Plot for sale • 6802 m² without real estateMěstec Králové - Městec Králové, Středočeský Region
Městec Králové - Městec Králové, Středočeský RegionNabízíme k prodeji pozemky v osobním vlastnictví o celkové výměře 6802m²určené k zástavbě v k.ú. Městec Králové
LV 2037
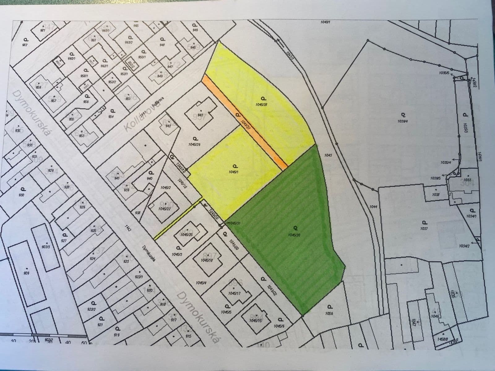
parcela 1045/1 o výměře 1585m² ( nyní - zahrada )
parcela 1045/28 o výměře 1776m² ( nyní -zahrada )
LV 2038
parcela 1045/20 o výměře 3144m² ( nyní - ovocný sad )
LV1019
parcela 1045/27 o výměře 297m² ( nyní - zahrada )
Cena k jednání je 2.990Kč za 1m²
Zájemci, kteří chtějí využít této příležitosti, mě prosím kontaktujte skrz zprávy na této komunikační platformě. Rád poskytnu další informace a domluvím se na osobní prohlídce.
Property characteristics
| Available from | 01/09/2025 |
|---|---|
| Land type | Building |
| Land space | 6,802 m² |
| Listing ID | 938308 |
|---|---|
| Ownership | Personal |
| Price per unit | CZK 0 / m2 |
What you will find nearby
Still looking for the right one?
Set up a watchdog. You will receive a summary of your customized offers 1 time a day by email. With the Premium profile, you have 5 watchdogs at your fingertips and when something comes up, they notify you immediately.


