
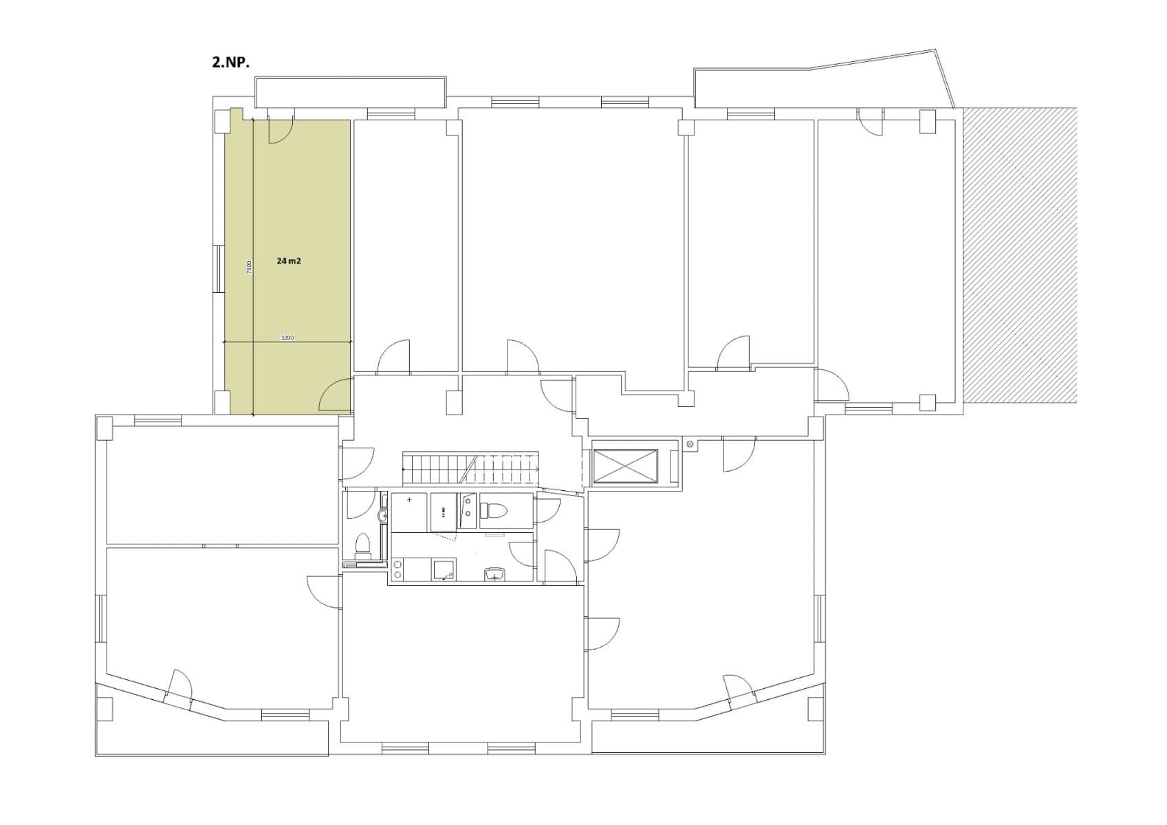
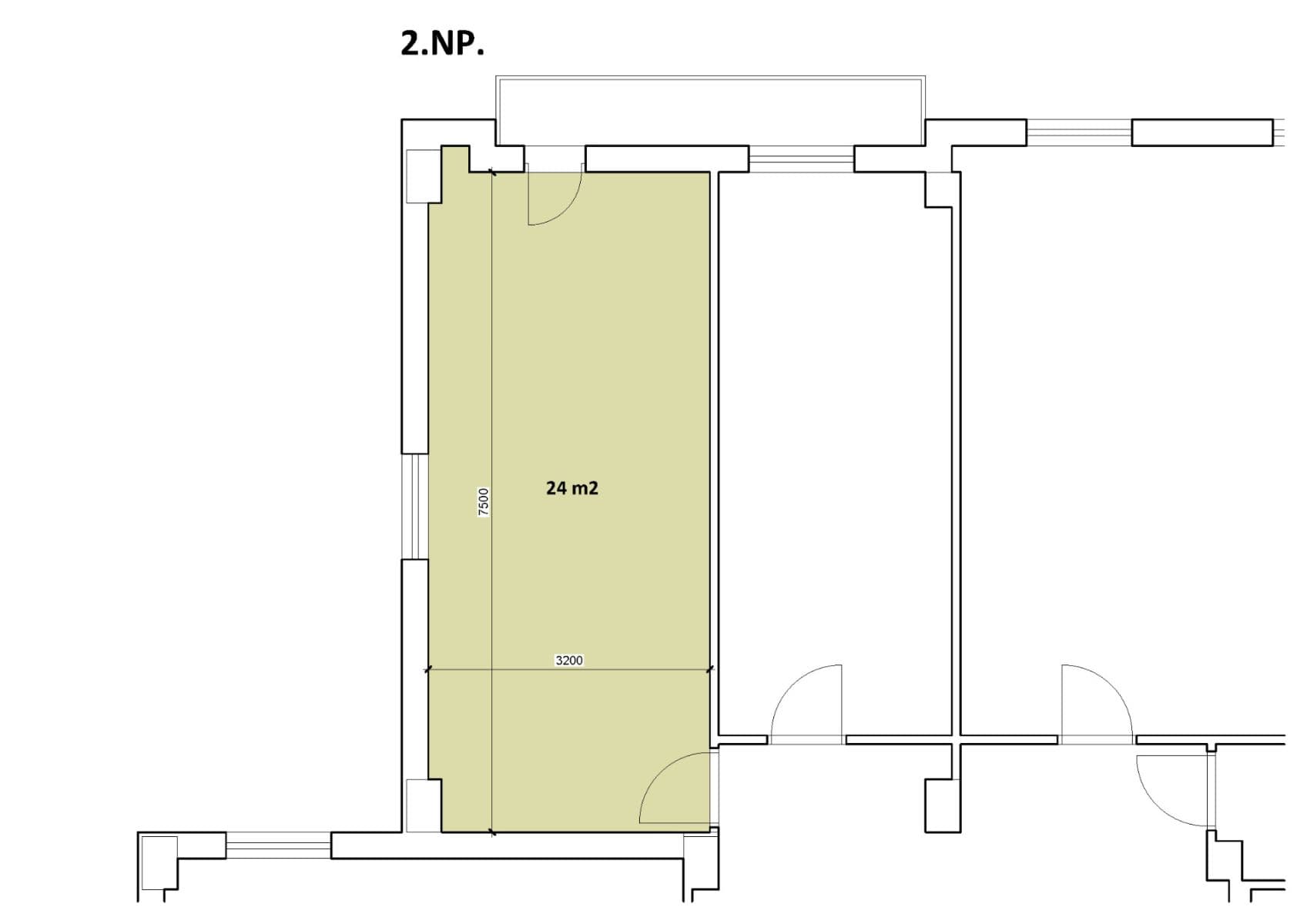
Office to rent • 24 m² without real estateNový Zlíchov, Prague - Smíchov
Interested?
Communicate all private owners and save CZK 5,500 on commissions.
Nabízíme k pronájmu kancelář o rozloze 24 m², situovanou ve druhém patře cihlové budovy, která celkově čítá pět podlaží. Nemovitost je v dobrém stavu a představuje ideální základ pro podnikatelské využití či administrativní činnost. Prostor je nevybavený, což umožňuje přizpůsobit interiér přesně podle Vašich představ a potřeb. Budova disponuje výtahem, který zajišťuje snadnou dostupnost kanceláře a zvýší komfort každodenního provozu.
Před objektem je možnost parkování na ulici. Ulice je neprůjezdná a velice klidná.
V případě zájmu o bližší informace nebo sjednání prohlídky mě neváhejte kontaktovat prostřednictvím zpráv na komunikační platformě.
Property characteristics
| Available from | 13/08/2025 |
|---|---|
| Building construction | Brick |
| Floor | 2. floor out of 5 |
| Location | Quiet area |
| Price per unit | CZK 229 / m2 |
| Condition | Good |
|---|---|
| Fully furnished | Unfurnished |
| Listing ID | 932702 |
| Land office | 24 m² |
What does this listing have to offer?
| Lift |
What you will find nearby
Interested?
Communicate all private owners and save CZK 5,500 on commissions.
Still looking for the right one?
Set up a watchdog. You will receive a summary of your customized offers 1 time a day by email. With the Premium profile, you have 5 watchdogs at your fingertips and when something comes up, they notify you immediately.






