House to rent 2+kk • 72 m²Na Poříčí, Králův Dvůr - Králův Dvůr, Středočeský Region
Na Poříčí, Králův Dvůr - Králův Dvůr, Středočeský RegionPublic transport 2 minutes of walkingVzhledem ke zvýšené poptávce o námi nabízené nemovitosti prosíme všechny vážné zájemce, aby nás pro rychlé vyřízení kontaktovali pomocí odpovědního formuláře u inzerátu. Následně vám zašleme e-mail s odkazem na krátký osobní dotazník. Po jeho vyplnění se vám ozveme a domluvíme se na dalším postupu a termínu prohlídky.
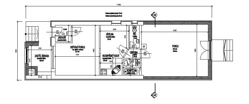
K podnájmu nabízíme přízemní část rodinného domu o dispozici 2+kk s podlahovou plochou 72 m² a zahradou o výměře 25 m². Dům se nachází v klidné části Králova Dvora – Karlova Huť, v ulici Na Poříčí. Součástí je venkovní posezení, které poskytuje příjemné místo k odpočinku. Zahrada je vhodná k pěstování bylinek, rajčat, paprik nebo jiné zeleniny, což je velkou výhodou zejména pro ty, kteří si rádi vypěstují něco vlastního. Zvířata jsou povolena po předchozí domluvě.
Dům je čistý, velmi dobře udržovaný a vybavený základním nábytkem. V kuchyňském koutě se nachází kuchyňská linka se sporákem a troubou. V obytné části jsou krbová kamna, která prostor příjemně zateplí a zútulní. K dispozici je koupelna s vanou a toaletou. Výhodou jsou také praktické úložné prostory a výhled do zeleně.
Lokalita Karlova Huť nabízí klidné a zároveň dobře dostupné bydlení. Jen 150 metrů od domu se nachází zastávka MHD, odkud je snadné spojení do centra Králova Dvora i do okolí. Dům leží nedaleko nájezdu na dálnici D5, poblíž které právě probíhá výstavba velkého obchodního centra. V centru Králova Dvora najdete veškerou občanskou vybavenost – poštu, kavárnu, prodej zmrzliny, drogerii, sportovní centrum se stadionem, pizzerii, kebab, školu i školku. Vlaková zastávka je vzdálena přibližně 1 kilometr, což je ideální pro ty, kteří dojíždějí za prací či studiem.
Byt je volný k nastěhování ihned.
Uvádíme energetickou náročnost G – jelikož nemáme doložen PENB.
VS: 922
Property characteristics
| Available from | 24/07/2025 | 
|---|---|
| Building construction | Brick | 
| Fully furnished | Unfurnished | 
| EPC | G - Extremely uneconomical | 
| Usable area | 72 m² | 
| Water | From a public source | 
| Condition | Very good | 
|---|---|
| Layout | 2+kk | 
| Listing ID | 927356 | 
| Sewage | Public sewage | 
| Land space | 25 m² | 
| Price per unit | CZK 229 / m2 | 
What does this listing have to offer?
| MHD 2 minutes on foot | 
What you will find nearby
Still looking for the right one?
Set up a watchdog. You will receive a summary of your customized offers 1 time a day by email. With the Premium profile, you have 5 watchdogs at your fingertips and when something comes up, they notify you immediately.

























