Commercial property to rent • 400 m² without real estateSlužeb, Prague - Strašnice
Don’t miss out
Služeb, Prague - StrašniceMonthly rentCZK 200
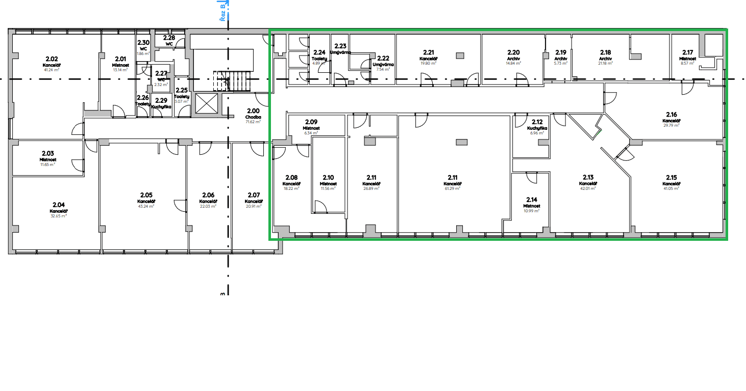
Nabízím nebytové prostory (kanceláře, sklady, provozně-výrobní prostory,) až 415m2 - 5 minut chůzí od metra Depo Hostivař Praha 10. Prostory jsou klimatizovány, možnost parkování, provoz 24/7, hlídací služba. Cena 200Kč/m2 + služby (placené paušálem). Volné od 01.09.2025.
Prostor vyznačen zeleně na půdorysu se pronajímá v celku, nebo lze rozdělit (min 150m2)
Property characteristics
| Available from | 02/07/2025 |
|---|---|
| Building construction | Skeleton |
| Listing ID | 920532 |
| Land non-residential space | 400 m² |
| Condition | Good |
|---|---|
| Fully furnished | Unfurnished |
| Location of the commercial space | Separate |
| Price per unit | CZK 1 / m2 |
What you will find nearby
How far to…:
Monthly rentCZK 200
Still looking for the right one?
Set up a watchdog. You will receive a summary of your customized offers 1 time a day by email. With the Premium profile, you have 5 watchdogs at your fingertips and when something comes up, they notify you immediately.



