
House for sale 5+kk • 145 m² without real estatePřevýšov - Převýšov, Královéhradecký Region
Https://my.matterport.com/show/?m=waBso7fEA32
Prodám RD v Převýšově (okr. Hradec Králové). Samostatně stojící, podsklepený rodinný dům, s částečně využitím podkrovím, zkolaudovaný v roce 1988. Tento dům o zastavěné ploše 145 m2 s pozemkem 1439 m2 se nachází v okrajové klidné části obce.
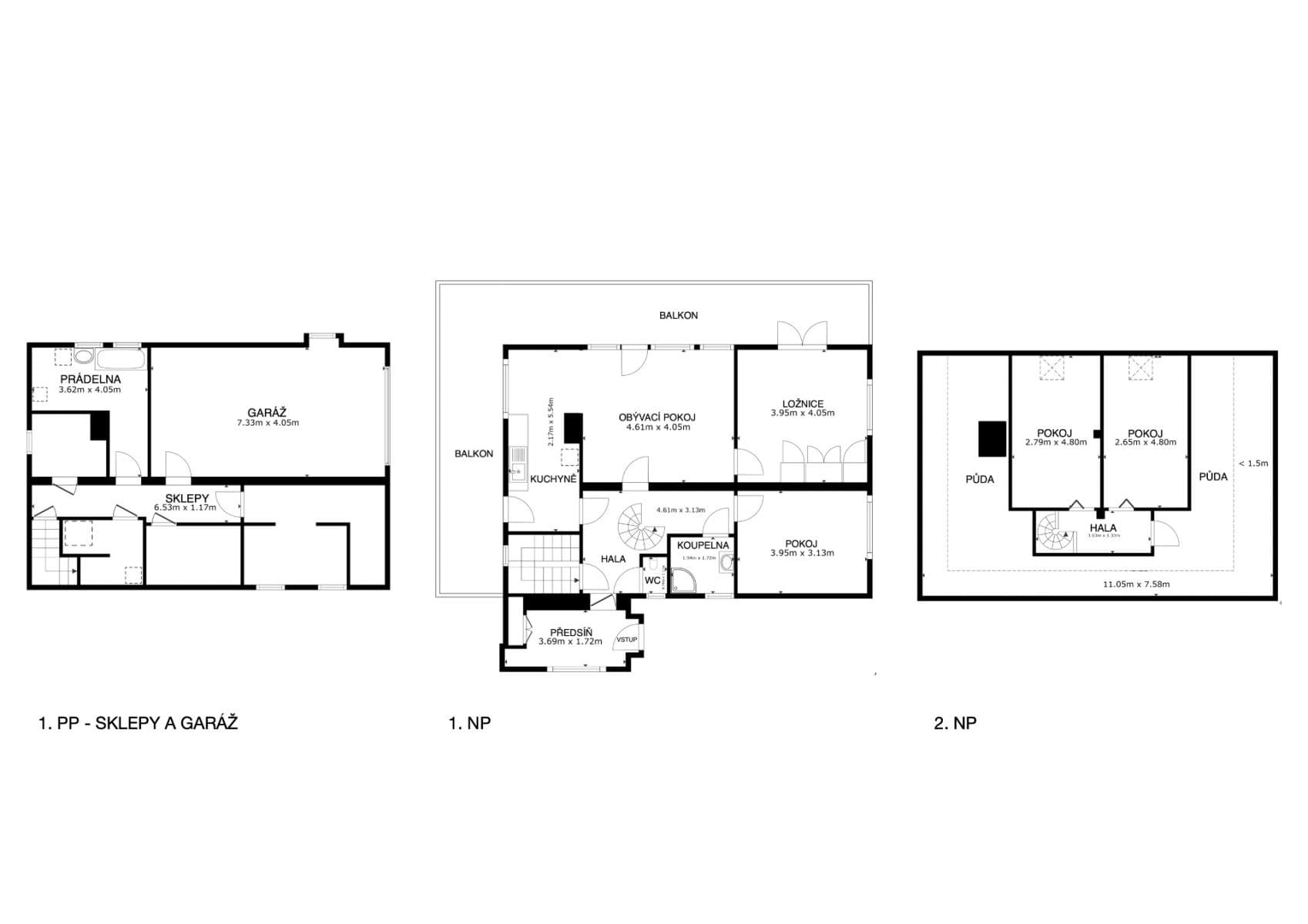
Dispozice domu: v 1.PP (37 m2) se nachází technické zázemí domu (garáž, kotelna, prádelna, sklad uhlí a dřeva, sklep).
V 1.NP (75 m2) se nachází (ložnice, dětský pokoj, obývací pokoj s kuchyní a spíží, chodba, koupelna a WC. Z obývacího pokoje je vstup na prostornou terasu s výhledem do zahrady.
2. NP (25 m2) je jen částečně využité a nachází se zde 2 pokoje s chodbou, která vede na půdu.
V průběhu let prošel dům rekonstrukcí (nová okna v plastu s izolačním zasklením, výměna podlah, obkladů, dveří, rekonstrukce kuchyně, koupelny a WC, nový kotel, voda je vedena v plastových trubkách, nová vodárna, nové sání do studny, alarm.
Dům je napojen na inženýrské sítě (voda, elektřina). Vytápění je kotlem na tuhá paliva. Vlastní studna, odkanalizování domu do vlastní jímky. Možné napojení na obecní plyn a kanalizaci.
K domu náleží pozemek 559 m2. Vedle domu je další parkovací stání. Součástí pozemku je okrasná zahrada, dřevěná zastřešená pergola se zahradním krbem, venkovní krytý bazén se zastřešením a skleník. Okolo RD je zavlažování.
K prodávané nemovitosti náleží a je velkou předností rovinatá rozlehlá zahrada o rozloze 880 m2 na které je zděné hospodářské stavení, které je momentálně využíváno jako dílna a zahradní domek se sklípkem na ovoce, na zahradě jsou ovocné stromy a přípojky na vodní zásuvku.
Velkou výhodou je kompletní občanská vybavenost v místě – školka, dětské hřiště, obchod, hospoda. Výborná dopravní dostupnost: autobus, vlak, rychlé napojení na dálnici D11 Praha–Hradec Králové (cca 2 km).
Majitel si vyhrazuje právo vybrat kupujícího s nejvýhodnější nabídkou kupní ceny.
RK NEVOLAT!
Property characteristics
| Age | 30 - 50 years |
|---|---|
| Condition | Po částečné rekonstrukci |
| Layout | 5+kk |
| Heating | Other |
| Ownership | Personal |
| Location of the house | Separate |
| Usable area | 145 m² |
| Total floors | 3 |
| Available from | 01/03/2026 |
|---|---|
| Building construction | Mixed |
| Fully furnished | Partly |
| Listing ID | 913856 |
| EPC | G - Extremely uneconomical |
| Location | Quiet area |
| Land space | 1,584 m² |
| Price per unit | CZK 58,614 / m2 |
What does this listing have to offer?
| Basement: 37.05 m² | |
| Parking |
| Garage |
What you will find nearby
Still looking for the right one?
Set up a watchdog. You will receive a summary of your customized offers 1 time a day by email. With the Premium profile, you have 5 watchdogs at your fingertips and when something comes up, they notify you immediately.



















