
Flat to rent 2+kk • 45 m² without real estateChvalova, Prague - Žižkov
Chvalova, Prague - ŽižkovPartially equipped • Lift • Parking • Garage • Cellar 5 m²Interested?
Communicate all private owners and save CZK 28,000 on commissions.
Pronájem unikátního bytu 2+kk bez RK - v nádherné části Prahy blízko Náměstí Jiřího z Poděbrad – možnost parkování přímo v domě ve vlastní garáži.
Cena za měsíc: 28.000 Kč + poplatky za elektřinu a vodu (ostatní poplatky v ceně) – od vlastníka, neplatíte provizi, pouze dlouhodobý pronájem;
- byt je nový, celý dům prošel rekonstrukcí
- k bytu je možné pronajmout garáž přímo v domě přístupnou z ulice – za 10000 Kč / měsíc – můžete parkovat i před garáží
nebo parkovací místo ve společné garáži 700 m od bytu - za 4000 Kč / měsíc
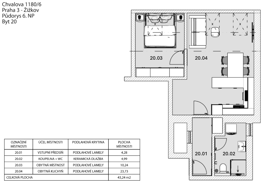
- byt se nachází v Chvalově ulici, v 6. NP domu s výtahem
- má 45 m2
- v bytě je předsíň, obývací pokoj + kuchyně (v kuchyni je myčka nádobí, trouba, lednice s mrazákem…), ložnice, koupelna (sprchový kout, mycí toaleta)
- v celém bytě je luxusní vestavný nábytek od truhláře a klimatizace
- výborná dopravní dostupnost: zastávka tramvaje Lipanská / Seifertova (300 m), METRO A / tramvaj J. z P. (1200 m / 15 min chůze)
- v blízkosti bytu najdete: farmářské trhy, nákupní centrum FLORA s kinem (1200m), Riegrovy sady (550m), sportcentrum Olšanka (600m), v okolí nespočet restaurací, hospůdek, kaváren, vináren…
- K bytu náleží sklep.
Byt je k dispozici od 1.6.2026 / dle domluvy je možné i od 1.5.2026. Prohlídky jsou již možné. Provizi neplatíte, jsme přímí majitelé bytu.
Kauce 56.000,- z důvodu standardu tohoto bytu.
2kk new apartment for rent– close to Jiřího z Poděbrad, Chvalova street
28.000 CZK / month + electricity, water (other services included) – from direct owner so you don’t pay provision, long-term only
- flat is situated on the sixth floor of traditional building with lift (the building itself is very nice and the apartment is quiet)
- it has 43 m2
- there is an entrance room, living room + kitchen (w. oven, dishwasher, fridge w. freezer…), bedroom, bathroom (shower, washing toilet)
- apartment has lot of luxury built-in wardrobe and air conditioning
- there is a great public transport (300 m to tram stop or 1200 m from metro A subway)
- in close proximity: Riegrovy sady (550m for a nice walk or jogging), shopping centre Flora w. cinema (1200m), hotel Olšanka with many sport options (600m), farmer markets, restaurants, cafes...
- The flat has a cellar.
- It is possible to rent a garage as well (for extra fee).
56.000 CZK as a deposit is required due to standards of this apartment. No commission.
It is possible to move in from 1st June 2026 (or even 1st May) or based on agreement. Viewings of the flat can be arranged.
Property characteristics
| Available from | 01/06/2026 |
|---|---|
| Building construction | Brick |
| Fully furnished | Partly |
| Listing ID | 902881 |
| Usable area | 45 m² |
| Condition | New-build |
|---|---|
| Layout | 2+kk |
| Floor | 6. floor out of 7 |
| Location | Centre |
| Price per unit | CZK 622.22 / m2 |
What does this listing have to offer?
| Basement: 5 m² | |
| Lift |
| Garage | |
| Parking |
What you will find nearby
Interested?
Communicate all private owners and save CZK 28,000 on commissions.
Still looking for the right one?
Set up a watchdog. You will receive a summary of your customized offers 1 time a day by email. With the Premium profile, you have 5 watchdogs at your fingertips and when something comes up, they notify you immediately.














