
Flat for sale 3+kk • 66 m² without real estateŽiželická, Prague - Újezd nad Lesy
Nabízím k prodeji atypický byt 3+kk o celkové ploše 72 m², umístěný v 5. NP zděné nástavby zrevitalizovaného a velmi klidného menšího domu bez výtahu. Byt je orientovaný na jihovýchod a zaujme prostorným obývacím pokojem s kuchyňským koutem a francouzským oknem se vstupem na lodžii. Díky poloze v posledním patře nabízí mimořádný klid, soukromí, výhled do krajiny, příjemné denní světlo a také vlastní půdní prostor, který je jeho velkým benefitem. Půda je přístupná přímo z bytu a poskytuje komfortní úložné možnosti pro sezónní věci či hobby vybavení.
Vytápění je řešeno radiátory, rozvody jsou v mědi, do kuchyně je zavedený plyn a ve dvou pokojích a na chodbě je dubová podlaha.
Dům má vlastní plynovou kotelnu, je zateplený, průběžně udržovaný a vybavený zabezpečeným vstupem s kamerovým systémem.
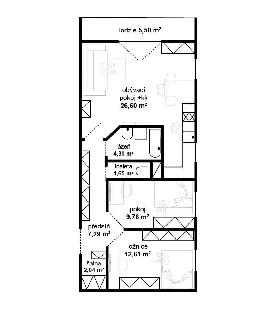
Dispozice bytu
• obývací pokoj + kuchyňský kout – 26,60 m²
• ložnice – 12,61 m²
• pokoj – 9,76 m²
• chodba – 7,29 m²
• šatna – 2,04 m²
• koupelna – 4,30 m²
• samostatné WC – 1,65 m²
• lodžie – 5,50 m²
• sklep – 2 m²
• vlastní půdní prostor (12m²+)
Lokalita
Dům se nachází v klidné a bezpečné části sídliště Rohožník, které umožňuje každodenní kontakt s přírodou. V okolí je výjimečné množství menších hřišť a sportovišť, včetně pumptracku, lanovky, venkovní posilovny či Rákosníčkova hřiště. Na kole nebo pěšky jste za pár minut v přírodním parku Škvorecká obora/Králičina navazujícím na Klánovický les. Cyklotrasa A25 vás dovede až do centra města.
Dopravní dostupnost
Praktické spojení: kyvadlová doprava na vlak (S1, S2, S61), autobusy k metru (A, B), carsharing Car4Way, nabíjecí stanice pro elektromobily, bezproblémové parkování bez zón. Dokončení přeložky 1/12 v roce 2027 zlepší spojení do centra.
Občanská vybavenost
Přímo na sídlišti: obchody, školka, zdravotnické středisko, restaurace. V Újezdě nad Lesy: lesní školka, ZŠ, supermarkety, městský úřad a další služby.
Plánovaná revitalizace Rohožníku (studie z r. 2022) činí tuto nabídku velmi perspektivní investicí.
O studii: https://www.praha21.cz/aktuality/8070-budoucnost-verejnych-prostranstvi-sidliste-rohoznik
Realitní kanceláře prosím nevolat.
.
.
.
„Pro ty, kteří vědí...“
Property characteristics
| Age | 10 to 30 years |
|---|---|
| Condition | Very good |
| Layout | 3+kk |
| Floor | 5. floor out of 5 |
| Listing ID | 883848 |
| EPC | C - Economical |
| Usable area | 66 m² |
| Available from | 01/03/2026 |
|---|---|
| Building construction | Brick |
| Fully furnished | Partly |
| Heating | Central |
| Ownership | Personal |
| Location | Residences |
| Price per unit | CZK 110,455 / m2 |
Are you choosing a apartment?
Make sure you have all the important information!
What does this listing have to offer?
| Basement: 2.4 m² | |
| Parking |
| Loggia balcony: 5.5 m² |
What you will find nearby
Still looking for the right one?
Set up a watchdog. You will receive a summary of your customized offers 1 time a day by email. With the Premium profile, you have 5 watchdogs at your fingertips and when something comes up, they notify you immediately.
























