
Flat to rent 2+kk • 54 m² without real estateBratislavská, Prague - Hostivař
Interested?
Communicate all private owners and save CZK 21,000 on commissions.
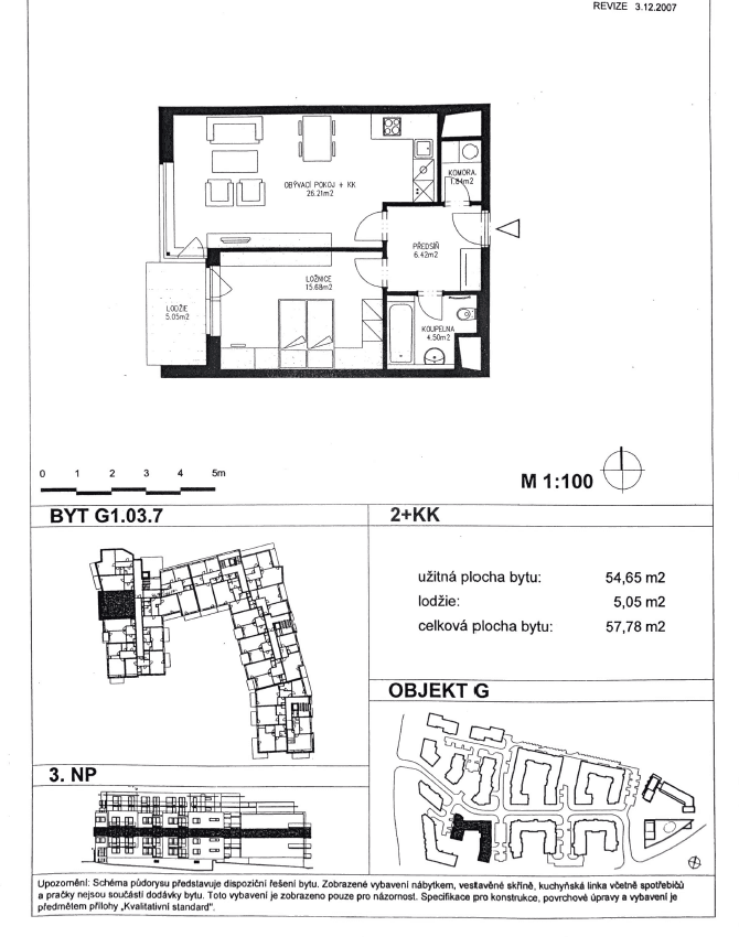
K dlouhodobému pronájmu nabízíme prostorný byt 2+kk (54,6 m²) v klidné lokalitě Praha 10 – Hostivař, Slunečný vršek. Pronájem přímo od majitele, bez provize.
Byt se nachází ve 3. patře a součástí nájmu je kryté garážové stání a sklep.
Byt je nezařízený – zůstává pouze skříň v ložnici a jídelní stůl se židlemi v kuchyni. Pračka, sušička i myčka z fotografií nejsou součástí vybavení, vše instaloval nájemce na svoje náklady (po dohodě lze ponechat erární pračku).
Dispozice: neprůchozí ložnice, obývací pokoj s kuchyňským koutem, koupelna s WC, samostatná komora s přípojkou na pračku a balkon. Součástí bytu je kuchyňská linka s elektrickým sporákem, troubou a lednicí. Ohřev teplé vody v kuchyni je řešen samostatným ohřívačem pod dřezem, plně funkční.
Měsíční nájem činí 21 000 Kč, poplatky 3500 Kč + elektřina se převádí na nájemníka cca 1500 Kč. Vratná kauce je stanovena na 21 000 Kč. Internet si nájemce zařizuje sám. Byt bude k dispozici od 1. března 2026 nebo po dohodě i dřívě (nájemnice spěchá na odstěhování).
Prohlídky budou možné v odpoledních hodinách nebo o víkendu po domluvě s vybranými zájemci.
V okolí najdete veškerou občanskou vybavenost a Hostivařský lesopark s vodní nádrží, ideální pro procházky, sport a odpočinek. Lokalita nabízí skvělou dostupnost do centra města.
Property characteristics
| Available from | 01/03/2026 |
|---|---|
| Building construction | Brick |
| Fully furnished | Unfurnished |
| Listing ID | 881811 |
| EPC | G - Extremely uneconomical |
| Usable area | 54 m² |
| Condition | Very good |
|---|---|
| Layout | 2+kk |
| Floor | 3. floor out of 5 |
| Ownership | Personal |
| Location | Quiet area |
| Price per unit | CZK 389 / m2 |
What does this listing have to offer?
| Balcony: 5.85 m² | |
| Basement: 2 m² | |
| Lift |
| Wheelchair accessible | |
| Garage |
What you will find nearby
Interested?
Communicate all private owners and save CZK 21,000 on commissions.




Flat to rentZdeňka Lhoty, Černošice - Černošice, Středočeský Region- 2 bedroom
- 65 m²
CZK 25,000 + CZK 6,600
Still looking for the right one?
Set up a watchdog. You will receive a summary of your customized offers 1 time a day by email. With the Premium profile, you have 5 watchdogs at your fingertips and when something comes up, they notify you immediately.













